|
|
|
| Larry Stein Oklahoma County Assessor (405) 713-1200 - Public Access System |
|
|
|
|
|
|
| Real Property Display - Screen Produced 4/1/2026 7:14:22 PM | ||||
|---|---|---|---|---|
| Account: R150511290 | Type: Residential | Location: |
404 E JARMAN DR |
|
| Building Name/Occupant: |
|
MIDWEST CITY |
||
| Owner Name 1: | ELDER JAMES |
Parcel PIN#: |
1410-15-051-1290 |
|
| Owner Name 2: | 1/4 section #: |
1410 |
||
| Owner Name 3: | Parent Acct: |
|
||
| Billing Address: | 601 S I 35 SERVICE RD, Unit 8253 | Tax District: |
|
|
| City, State, Zip | MOORE, OK 73160 | School System: |
Mid-Del #52 |
|
|
Country: (If noted) |
Land Size: |
0.1484 Acres |
||
|
Land Value: 18,428 |
|
|||
|
Sect 3-T11N-R2W Qtr SE |
COUNTRY ESTATES 4TH
Block
005
Lot
005
|
|||
| Full Legal Description: COUNTRY ESTATES 4TH 005 005 |
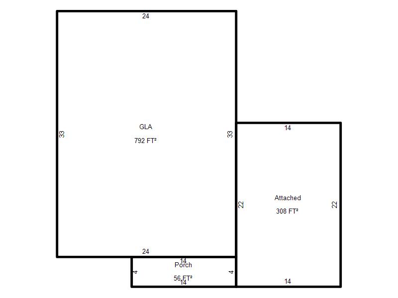
| Photo & Sketch (if available) | Comp Sales (ordered by relevancy) |
|
||||||||||||||||||
|
||||||||||||||||||||
| Value History (*The County Treasurer 405-713-1300 posts & collects actual tax amounts. Contact information HERE) | |||||||||||||
|---|---|---|---|---|---|---|---|---|---|---|---|---|---|
| Year | Market Value | Taxable Mkt Value | Gross Assessed | Exemption | Net Assessed | Millage | Est. Tax | Tax Savings | |||||
|
2026 |
90,500 |
90,500 |
9,955 |
0 |
9,955 |
119.58 |
$1,190 |
$0 |
|||||
|
2025 |
90,500 |
68,917 |
7,579 |
0 |
7,579 |
119.58 |
$907 |
$284 |
|||||
|
2024 |
85,000 |
65,636 |
7,219 |
0 |
7,219 |
122.51 |
$885 |
$261 |
|||||
|
2023 |
77,500 |
62,511 |
6,875 |
0 |
6,875 |
117.71 |
$809 |
$194 |
|||||
|
2022 |
69,500 |
59,535 |
6,548 |
0 |
6,548 |
116.64 |
$764 |
$128 |
|||||
| Property Account Status/Adjustments/Exemptions | ||||||
|---|---|---|---|---|---|---|
| Account # | Exemption Description | Amount | ||||
| No adjustment/exemption records returned. | ||||||
| Property Deed Transaction History (Recorded in the County Clerk's Office) | ||||||||||
|---|---|---|---|---|---|---|---|---|---|---|
| Date | Type | Book | Page | Price | Grantor | Grantee | ||||
|
12/31/2025 |
|
Deeds |
$42,500 |
GLIDEWELL LARRY |
ATLAS ACQUISITIONS LLC |
|||||
|
12/31/2025 |
|
Deeds |
$60,000 |
ATLAS ACQUISITIONS LLC |
ELDER JAMES |
|||||
|
1/26/2005 |
|
Deeds |
$36,000 |
SFJV 2003 1 LLC |
GLIDEWELL LARRY |
|||||
|
10/13/2004 |
|
Other |
$0 |
LITTLEWALKER ANNA-MARI BOUCHER EDWARD J |
SFJV 2003 1 LLC |
|||||
|
1/18/1996 |
|
Historical |
$0 |
SECRETARY OF HOUSING |
LITTLEWALKER ANNA-MARI |
|||||
| Last Mailed Notice of Value (N.O.V.) Information/History | ||||||||
|---|---|---|---|---|---|---|---|---|
| Year | Date | Market Value | Taxable Market Value | Gross Assessed | Exemption | Net Assessed | ||
|
2026 |
02/06/2026 |
90,500 |
90,500 |
9,955 |
0 |
9,955 |
||
|
2025 |
01/31/2025 |
90,500 |
68,917 |
7,579 |
0 |
7,579 |
||
|
2024 |
01/22/2024 |
85,000 |
65,636 |
7,219 |
0 |
7,219 |
||
|
2023 |
01/23/2023 |
77,500 |
62,511 |
6,875 |
0 |
6,875 |
||
|
2022 |
02/22/2022 |
69,500 |
59,535 |
6,548 |
0 |
6,548 |
||
| Property Building Permit History | |||||||||||
|---|---|---|---|---|---|---|---|---|---|---|---|
| Issued | Permit # | Provided by | Bldg # | Description | Est Construction Cost | Status | |||||
| No Building Permit records returned. | |||||||||||
| Click button on building number to access detailed information: | ||||||
|---|---|---|---|---|---|---|
| Bldg # | Vacant/Improved Land | Bldg Description | Year Built | SqFt | # Stories | |
|
1 |
Improved |
Ranch 1 Story |
1950 |
792 |
1 Stories |
|