|
|
|
| Larry Stein Oklahoma County Assessor (405) 713-1200 - Public Access System |
|
|
|
|
|
|
| Real Property Display - Screen Produced 4/1/2026 7:13:18 PM | ||||
|---|---|---|---|---|
| Account: R150511430 | Type: Residential | Location: |
300 E JARMAN DR |
|
| Building Name/Occupant: |
|
MIDWEST CITY |
||
| Owner Name 1: | DELACRUZ LINDA TRS |
Parcel PIN#: |
1410-15-051-1430 |
|
| Owner Name 2: | DELACRUZ LINDA LIVING TRUST | 1/4 section #: |
1410 |
|
| Owner Name 3: | Parent Acct: |
|
||
| Billing Address: | 2100 N KEY BLVD | Tax District: |
|
|
| City, State, Zip | MIDWEST CITY, OK 73110-4614 | School System: |
Mid-Del #52 |
|
|
Country: (If noted) |
Land Size: |
0.1928 Acres |
||
|
Land Value: 23,940 |
|
|||
|
Sect 3-T11N-R2W Qtr SE |
COUNTRY ESTATES 4TH
Block
005
Lot
019
|
|||
| Full Legal Description: COUNTRY ESTATES 4TH 005 019 |
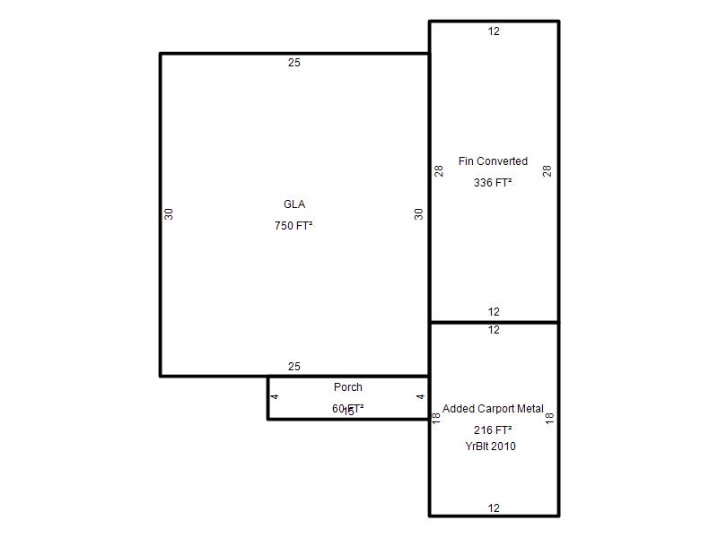
| Photo & Sketch (if available) | Comp Sales (ordered by relevancy) |
|
||||||||||||||||||
|
||||||||||||||||||||
| Value History (*The County Treasurer 405-713-1300 posts & collects actual tax amounts. Contact information HERE) | |||||||||||||
|---|---|---|---|---|---|---|---|---|---|---|---|---|---|
| Year | Market Value | Taxable Mkt Value | Gross Assessed | Exemption | Net Assessed | Millage | Est. Tax | Tax Savings | |||||
|
2026 |
108,000 |
77,053 |
8,475 |
0 |
8,475 |
119.58 |
$1,014 |
$407 |
|||||
|
2025 |
108,000 |
73,384 |
8,071 |
0 |
8,071 |
119.58 |
$965 |
$455 |
|||||
|
2024 |
98,500 |
69,890 |
7,687 |
0 |
7,687 |
122.51 |
$942 |
$386 |
|||||
|
2023 |
86,000 |
66,562 |
7,321 |
0 |
7,321 |
117.71 |
$862 |
$252 |
|||||
|
2022 |
75,000 |
63,393 |
6,973 |
0 |
6,973 |
116.64 |
$813 |
$149 |
|||||
| Property Account Status/Adjustments/Exemptions | ||
|---|---|---|
| Account # | Exemption Description | Amount |
|
R150511430 |
5% Capped Account |
0 |
| Property Deed Transaction History (Recorded in the County Clerk's Office) | |||||||
|---|---|---|---|---|---|---|---|
| Date | Type | Book | Page | Price | Grantor | Grantee | |
|
9/18/2007 |
|
Deeds |
$0 |
DELACRUZ LINDA P |
DELACRUZ LINDA TRS |
||
|
1/4/2001 |
|
Deeds |
$0 |
DELA CRUZ AMADO S & LINDA P |
DELA CRUZ LINDA P |
||
|
5/20/1988 |
|
Historical |
$11,500 |
ADMR OF VETERANS AFFAIRS |
DELA CRUZ LINDA P & AMADO S |
||
|
10/15/1987 |
|
Historical |
$0 |
GRIMES J D HOWARD & JUANITA F |
ADMR OF VETERANS AFFAIRS |
||
|
12/1/1982 |
|
Historical |
$0 |
|
GRIMES J D HOWARD & JUANITA F |
||
| Last Mailed Notice of Value (N.O.V.) Information/History | ||||||||
|---|---|---|---|---|---|---|---|---|
| Year | Date | Market Value | Taxable Market Value | Gross Assessed | Exemption | Net Assessed | ||
|
2026 |
02/06/2026 |
108,000 |
77,053 |
8,475 |
0 |
8,475 |
||
|
2025 |
01/31/2025 |
108,000 |
73,384 |
8,071 |
0 |
8,071 |
||
|
2024 |
01/22/2024 |
98,500 |
69,890 |
7,687 |
0 |
7,687 |
||
|
2023 |
01/23/2023 |
86,000 |
66,562 |
7,321 |
0 |
7,321 |
||
|
2022 |
02/22/2022 |
75,000 |
63,393 |
6,973 |
0 |
6,973 |
||
| Property Building Permit History | |||||||||||
|---|---|---|---|---|---|---|---|---|---|---|---|
| Issued | Permit # | Provided by | Bldg # | Description | Est Construction Cost | Status | |||||
| No Building Permit records returned. | |||||||||||
| Click button on building number to access detailed information: | ||||||
|---|---|---|---|---|---|---|
| Bldg # | Vacant/Improved Land | Bldg Description | Year Built | SqFt | # Stories | |
|
1 |
Improved |
Ranch 1 Story |
1951 |
750 |
1 Stories |
|