|
|
|
| Larry Stein Oklahoma County Assessor (405) 713-1200 - Public Access System |
|
|
|
|
|
|
| Real Property Display - Screen Produced 4/1/2026 6:52:36 PM | ||||
|---|---|---|---|---|
| Account: R267071330 | Type: Residential | Location: |
19308 TG NATION WAY |
|
| Building Name/Occupant: |
|
UNINCORPORATED |
||
| Owner Name 1: | BLEDSOE MICHAEL O & REBECCA I |
Parcel PIN#: |
1039-26-707-1330 |
|
| Owner Name 2: | 1/4 section #: |
1039 |
||
| Owner Name 3: | Parent Acct: |
|
||
| Billing Address: | 19308 TG NATION WAY | Tax District: |
|
|
| City, State, Zip | HARRAH, OK 73045-6352 | School System: |
Choctaw #4 |
|
|
Country: (If noted) |
Land Size: |
1.0100 Acres |
||
|
Land Value: 44,945 |
|
|||
|
Sect 10-T11N-R1E Qtr SW |
WOODBRIDGE ESTATES
Block
001
Lot
034
|
|||
| Full Legal Description: WOODBRIDGE ESTATES BLK 001 LOT 034 |
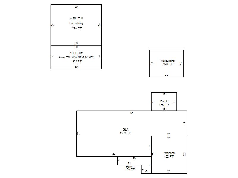
| Photo & Sketch (if available) | Comp Sales (ordered by relevancy) |
|
||||||||||||||||||
|
||||||||||||||||||||
| Value History (*The County Treasurer 405-713-1300 posts & collects actual tax amounts. Contact information HERE) | |||||||||||||
|---|---|---|---|---|---|---|---|---|---|---|---|---|---|
| Year | Market Value | Taxable Mkt Value | Gross Assessed | Exemption | Net Assessed | Millage | Est. Tax | Tax Savings | |||||
|
2026 |
239,000 |
180,788 |
19,886 |
1,000 |
18,886 |
117.21 |
$2,214 |
$868 |
|||||
|
2025 |
236,000 |
175,523 |
19,307 |
1,000 |
18,307 |
117.21 |
$2,146 |
$897 |
|||||
|
2024 |
231,500 |
170,411 |
18,744 |
1,000 |
17,744 |
116.35 |
$2,065 |
$898 |
|||||
|
2023 |
222,500 |
165,448 |
18,199 |
1,000 |
17,199 |
117.10 |
$2,014 |
$852 |
|||||
|
2022 |
181,500 |
160,630 |
17,668 |
1,000 |
16,668 |
115.17 |
$1,920 |
$380 |
|||||
| Property Account Status/Adjustments/Exemptions | ||
|---|---|---|
| Account # | Exemption Description | Amount |
|
R267071330 |
3% Cap Homestead |
0 |
|
R267071330 |
Homestead |
1,000 |
| Property Deed Transaction History (Recorded in the County Clerk's Office) | |||||||
|---|---|---|---|---|---|---|---|
| Date | Type | Book | Page | Price | Grantor | Grantee | |
|
2/24/1992 |
|
Historical |
$0 |
BLEDSOE MICHAEL O & REBECCA I |
BLEDSOE MICHAEL O & REBECCA I |
||
|
5/6/1988 |
|
Historical |
$67,000 |
COTNEY ORVILLE |
BLEDSOE MICHAEL O & REBECCA I |
||
|
3/10/1988 |
|
Historical |
$0 |
TELEPHONE TECHNOLOGY CORP |
COTNEY ORVILLE |
||
|
11/11/1911 |
|
Historical |
$0 |
|
TELEPHONE TECHNOLOGY CORP |
||
| Last Mailed Notice of Value (N.O.V.) Information/History | ||||||||
|---|---|---|---|---|---|---|---|---|
| Year | Date | Market Value | Taxable Market Value | Gross Assessed | Exemption | Net Assessed | ||
|
2026 |
02/06/2026 |
239,000 |
180,788 |
19,886 |
1,000 |
18,886 |
||
|
2025 |
01/31/2025 |
236,000 |
175,523 |
19,307 |
1,000 |
18,307 |
||
|
2024 |
01/22/2024 |
231,500 |
170,411 |
18,744 |
1,000 |
17,744 |
||
|
2023 |
01/23/2023 |
222,500 |
165,448 |
18,199 |
1,000 |
17,199 |
||
|
2022 |
02/22/2022 |
181,500 |
160,630 |
17,668 |
1,000 |
16,668 |
||
| Property Building Permit History | ||||||
|---|---|---|---|---|---|---|
| Issued | Permit # | Provided by | Bldg # | Description | Est Construction Cost | Status |
|
12/10/2010 |
10413311 |
HARRAH |
1 |
Storage Buil |
21,000 |
Inactive |
| Click button on building number to access detailed information: | ||||||
|---|---|---|---|---|---|---|
| Bldg # | Vacant/Improved Land | Bldg Description | Year Built | SqFt | # Stories | |
|
1 |
Improved |
Ranch 1 Story |
1988 |
1,503 |
1 Stories |
|