|
|
|
| Larry Stein Oklahoma County Assessor (405) 713-1200 - Public Access System |
|
|
|
|
|
|
| Real Property Display - Screen Produced 4/4/2026 4:59:22 PM | ||||
|---|---|---|---|---|
| Account: R142551165 | Type: Residential | Location: |
6429 N HARVARD AVE |
|
| Building Name/Occupant: |
|
OKLAHOMA CITY |
||
| Owner Name 1: | WWA LLC |
Parcel PIN#: |
2810-14-255-1165 |
|
| Owner Name 2: | 1/4 section #: |
2810 |
||
| Owner Name 3: | Parent Acct: |
|
||
| Billing Address: | PO BOX 720572 | Tax District: |
|
|
| City, State, Zip | NORMAN, OK 73070-4424 | School System: |
Putnam City #1 |
|
|
Country: (If noted) |
Land Size: |
0.1969 Acres |
||
|
Land Value: 37,734 |
|
|||
|
Sect 3-T12N-R4W Qtr SE |
CULLENS LAKEVIEW
Block
002
Lot
004
|
|||
| Full Legal Description: CULLENS LAKEVIEW 002 004 |
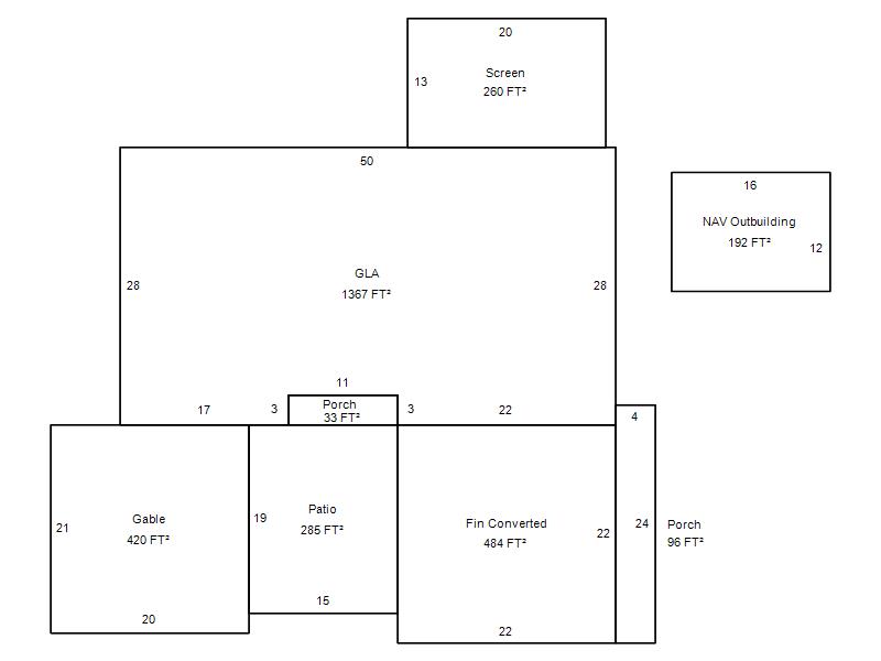
| Photo & Sketch (if available) | Comp Sales (ordered by relevancy) |
|
||||||||||||||||||
|
||||||||||||||||||||
| Value History (*The County Treasurer 405-713-1300 posts & collects actual tax amounts. Contact information HERE) | |||||||||||||
|---|---|---|---|---|---|---|---|---|---|---|---|---|---|
| Year | Market Value | Taxable Mkt Value | Gross Assessed | Exemption | Net Assessed | Millage | Est. Tax | Tax Savings | |||||
|
2026 |
187,500 |
173,599 |
19,095 |
0 |
19,095 |
123.17 |
$2,352 |
$188 |
|||||
|
2025 |
194,500 |
165,333 |
18,186 |
0 |
18,186 |
123.17 |
$2,240 |
$395 |
|||||
|
2024 |
195,000 |
157,460 |
17,319 |
0 |
17,319 |
122.30 |
$2,118 |
$505 |
|||||
|
2023 |
175,500 |
149,962 |
16,495 |
0 |
16,495 |
121.91 |
$2,011 |
$342 |
|||||
|
2022 |
166,000 |
142,821 |
15,709 |
0 |
15,709 |
123.41 |
$1,939 |
$315 |
|||||
| Property Account Status/Adjustments/Exemptions | ||
|---|---|---|
| Account # | Exemption Description | Amount |
|
R142551165 |
5% Capped Account |
0 |
| Property Deed Transaction History (Recorded in the County Clerk's Office) | |||||||
|---|---|---|---|---|---|---|---|
| Date | Type | Book | Page | Price | Grantor | Grantee | |
|
1/6/2026 |
|
Deeds |
$110,000 |
ASHFORD LAURA F TRS ETAL |
WWA LLC |
||
|
10/23/2013 |
|
Deeds |
$0 |
ASHFORD JAMES L |
ASHFORD LAURA F TRS ETAL |
||
|
8/26/2010 |
|
Deeds |
$130,000 |
ASHFORD WILBUR L & VERA F |
ASHFORD JAMES L |
||
|
11/11/1911 |
|
Historical |
$0 |
|
ASHFORD WILBUR L & VERA F |
||
| Last Mailed Notice of Value (N.O.V.) Information/History | ||||||||
|---|---|---|---|---|---|---|---|---|
| Year | Date | Market Value | Taxable Market Value | Gross Assessed | Exemption | Net Assessed | ||
|
2026 |
02/23/2026 |
187,500 |
173,599 |
19,095 |
0 |
19,095 |
||
|
2025 |
02/14/2025 |
194,500 |
165,333 |
18,186 |
0 |
18,186 |
||
|
2024 |
02/13/2024 |
195,000 |
157,460 |
17,319 |
0 |
17,319 |
||
|
2023 |
02/14/2023 |
175,500 |
149,962 |
16,495 |
0 |
16,495 |
||
|
2022 |
03/15/2022 |
166,000 |
142,821 |
15,709 |
0 |
15,709 |
||
| Property Building Permit History | ||||||
|---|---|---|---|---|---|---|
| Issued | Permit # | Provided by | Bldg # | Description | Est Construction Cost | Status |
|
5/28/2003 |
10236259 |
OKLAHOMA CITY |
1 |
Storage Buil |
3,100 |
Inactive |
|
11/16/1992 |
10236258 |
OKLAHOMA CITY |
1 |
Carport |
3,500 |
Inactive |
| Click button on building number to access detailed information: | ||||||
|---|---|---|---|---|---|---|
| Bldg # | Vacant/Improved Land | Bldg Description | Year Built | SqFt | # Stories | |
|
1 |
Improved |
Ranch 1 Story |
1962 |
1,367 |
1 Stories |
|