|
|
|
| Larry Stein Oklahoma County Assessor (405) 713-1200 - Public Access System |
|
|
|
|
|
|
| Real Property Display - Screen Produced 4/4/2026 4:59:21 PM | ||||
|---|---|---|---|---|
| Account: R142553405 | Type: Residential | Location: |
6900 N ANN ARBOR TER |
|
| Building Name/Occupant: |
|
OKLAHOMA CITY |
||
| Owner Name 1: | MCKELLAR SYLVIA LIV TRUST |
Parcel PIN#: |
2810-14-255-3405 |
|
| Owner Name 2: | 1/4 section #: |
2810 |
||
| Owner Name 3: | Parent Acct: |
|
||
| Billing Address: | 6900 N ANN ARBOR TER | Tax District: |
|
|
| City, State, Zip | OKLAHOMA CITY, OK 73132 | School System: |
Putnam City #1 |
|
|
Country: (If noted) |
Land Size: |
0.1835 Acres |
||
|
Land Value: 35,165 |
|
|||
|
Sect 3-T12N-R4W Qtr SE |
CULLENS LAKEVIEW
Block
019
Lot
012
|
|||
| Full Legal Description: CULLENS LAKEVIEW 019 012 |
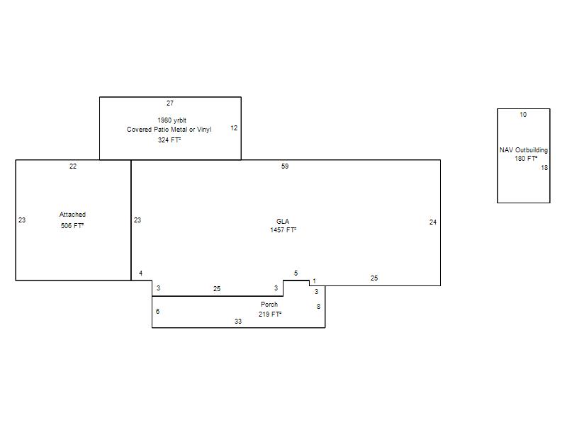
| Photo & Sketch (if available) | Comp Sales (ordered by relevancy) |
|
||||||||||||||||||
|
||||||||||||||||||||
| Value History (*The County Treasurer 405-713-1300 posts & collects actual tax amounts. Contact information HERE) | |||||||||||||
|---|---|---|---|---|---|---|---|---|---|---|---|---|---|
| Year | Market Value | Taxable Mkt Value | Gross Assessed | Exemption | Net Assessed | Millage | Est. Tax | Tax Savings | |||||
|
2026 |
191,000 |
141,553 |
15,570 |
1,000 |
14,570 |
123.17 |
$1,795 |
$793 |
|||||
|
2025 |
195,500 |
141,553 |
15,570 |
1,000 |
14,570 |
123.17 |
$1,795 |
$854 |
|||||
|
2024 |
197,000 |
141,553 |
15,570 |
1,000 |
14,570 |
122.30 |
$1,782 |
$868 |
|||||
|
2023 |
179,000 |
141,553 |
15,570 |
1,000 |
14,570 |
121.91 |
$1,776 |
$624 |
|||||
|
2022 |
168,000 |
137,431 |
15,116 |
1,000 |
14,116 |
123.41 |
$1,742 |
$538 |
|||||
| Property Account Status/Adjustments/Exemptions | ||
|---|---|---|
| Account # | Exemption Description | Amount |
|
R142553405 |
Freeze Senior Valuation |
0 |
|
R142553405 |
3% Cap Homestead |
0 |
|
R142553405 |
Homestead |
1,000 |
| Property Deed Transaction History (Recorded in the County Clerk's Office) | ||||||||||
|---|---|---|---|---|---|---|---|---|---|---|
| Date | Type | Book | Page | Price | Grantor | Grantee | ||||
|
4/23/2020 |
|
Hmstd Off & |
$0 |
SMITH NORMAN R TRS |
MCKELLAR SYLVIA LIV TRUST |
|||||
|
9/3/2014 |
|
Deeds |
$0 |
SMITH NORMAN R |
SMITH NORMAN R TRS |
|||||
|
5/17/2006 |
|
Deeds |
$0 |
SMITH DOROTHY L |
SMITH NORMAN R |
|||||
|
1/7/2005 |
|
Deeds |
$105,000 |
CHESSER IRENE |
SMITH NORMAN R SMITH DOROTHY L |
|||||
|
5/19/1995 |
|
Historical |
$0 |
CHESSER GEORGE & IRENE |
CHESSER IRENE |
|||||
| Last Mailed Notice of Value (N.O.V.) Information/History | ||||||||
|---|---|---|---|---|---|---|---|---|
| Year | Date | Market Value | Taxable Market Value | Gross Assessed | Exemption | Net Assessed | ||
|
2024 |
02/13/2024 |
197,000 |
141,553 |
15,570 |
1,000 |
14,570 |
||
|
2023 |
02/14/2023 |
179,000 |
141,553 |
15,570 |
1,000 |
14,570 |
||
|
2022 |
03/15/2022 |
168,000 |
137,431 |
15,116 |
1,000 |
14,116 |
||
|
2021 |
03/19/2021 |
144,500 |
133,429 |
14,677 |
1,000 |
13,677 |
||
|
2020 |
03/10/2020 |
133,500 |
129,543 |
14,249 |
0 |
14,249 |
||
| Property Building Permit History | |||||||||||
|---|---|---|---|---|---|---|---|---|---|---|---|
| Issued | Permit # | Provided by | Bldg # | Description | Est Construction Cost | Status | |||||
| No Building Permit records returned. | |||||||||||
| Click button on building number to access detailed information: | ||||||
|---|---|---|---|---|---|---|
| Bldg # | Vacant/Improved Land | Bldg Description | Year Built | SqFt | # Stories | |
|
1 |
Improved |
Ranch 1 Story |
1965 |
1,457 |
1 Stories |
|