|
|
|
| Larry Stein Oklahoma County Assessor (405) 713-1200 - Public Access System |
|
|
|
|
|
|
| Real Property Display - Screen Produced 4/5/2026 4:58:05 AM | ||||
|---|---|---|---|---|
| Account: R142554285 | Type: Residential | Location: |
7001 N STANLEY AVE |
|
| Building Name/Occupant: |
|
OKLAHOMA CITY |
||
| Owner Name 1: | SROTYR ALTA M TRS |
Parcel PIN#: |
2810-14-255-4285 |
|
| Owner Name 2: | SROTYR ALTA M KASPAREK REV TRUST | 1/4 section #: |
2810 |
|
| Owner Name 3: | Parent Acct: |
|
||
| Billing Address: | 7001 N STANLEY AVE | Tax District: |
|
|
| City, State, Zip | OKLAHOMA CITY, OK 73132 | School System: |
Putnam City #1 |
|
|
Country: (If noted) |
Land Size: |
0.2204 Acres |
||
|
Land Value: 42,240 |
|
|||
|
Sect 3-T12N-R4W Qtr SE |
CULLENS LAKEVIEW
Block
025
Lot
003
|
|||
| Full Legal Description: CULLENS LAKEVIEW 025 003 |
| Photo & Sketch (if available) | Comp Sales (ordered by relevancy) |
|
||||||||||||||||||
|
||||||||||||||||||||
| Value History (*The County Treasurer 405-713-1300 posts & collects actual tax amounts. Contact information HERE) | |||||||||||||
|---|---|---|---|---|---|---|---|---|---|---|---|---|---|
| Year | Market Value | Taxable Mkt Value | Gross Assessed | Exemption | Net Assessed | Millage | Est. Tax | Tax Savings | |||||
|
2026 |
256,500 |
206,478 |
22,712 |
1,000 |
21,712 |
123.17 |
$2,674 |
$801 |
|||||
|
2025 |
265,000 |
200,465 |
22,050 |
1,000 |
21,050 |
123.17 |
$2,593 |
$998 |
|||||
|
2024 |
269,000 |
194,627 |
21,408 |
1,000 |
20,408 |
122.30 |
$2,496 |
$1,123 |
|||||
|
2023 |
245,000 |
188,959 |
20,785 |
1,000 |
19,785 |
121.91 |
$2,412 |
$873 |
|||||
|
2022 |
230,000 |
183,456 |
20,178 |
1,000 |
19,178 |
123.41 |
$2,367 |
$755 |
|||||
| Property Account Status/Adjustments/Exemptions | ||
|---|---|---|
| Account # | Exemption Description | Amount |
|
R142554285 |
3% Cap Homestead |
0 |
|
R142554285 |
Homestead |
1,000 |
| Property Deed Transaction History (Recorded in the County Clerk's Office) | ||||||||||
|---|---|---|---|---|---|---|---|---|---|---|
| Date | Type | Book | Page | Price | Grantor | Grantee | ||||
|
12/2/2019 |
|
Deeds |
$0 |
SROTYR WAYNE W & ALTA M KASPAREK TRS |
SROTYR ALTA M TRS |
|||||
|
8/26/2009 |
|
Deeds |
$0 |
SROTYR WAYNE W SROTYR ALTA M |
SROTYR WAYNE W & ALTA M KASPAREK TRS |
|||||
|
12/5/2003 |
|
Hmstd Off & |
$0 |
TENNERY JAMES TOM JR TRS TENNERY HELEN ELIZABETH TRS |
TENNERY JAMES T III SUC TRS TENNERY REV FAMILY TRUST |
|||||
|
12/5/2003 |
|
Deeds |
$115,000 |
TENNERY JAMES T III SUC TRS TENNERY REV FAMILY TRUST |
SROTYR WAYNE W SROTYR ALTA M |
|||||
|
4/1/1992 |
|
Historical |
$0 |
TENNERY TOM & ELIZABETH |
TENNERY JAMES TOM JR TRS |
|||||
| Last Mailed Notice of Value (N.O.V.) Information/History | ||||||||
|---|---|---|---|---|---|---|---|---|
| Year | Date | Market Value | Taxable Market Value | Gross Assessed | Exemption | Net Assessed | ||
|
2026 |
02/23/2026 |
256,500 |
206,478 |
22,712 |
1,000 |
21,712 |
||
|
2025 |
02/14/2025 |
265,000 |
200,465 |
22,050 |
1,000 |
21,050 |
||
|
2024 |
02/13/2024 |
269,000 |
194,627 |
21,408 |
1,000 |
20,408 |
||
|
2023 |
02/14/2023 |
245,000 |
188,959 |
20,785 |
1,000 |
19,785 |
||
|
2022 |
03/15/2022 |
230,000 |
183,456 |
20,178 |
1,000 |
19,178 |
||
| Property Building Permit History | |||||||||||
|---|---|---|---|---|---|---|---|---|---|---|---|
| Issued | Permit # | Provided by | Bldg # | Description | Est Construction Cost | Status | |||||
| No Building Permit records returned. | |||||||||||
| Click button on building number to access detailed information: | ||||||
|---|---|---|---|---|---|---|
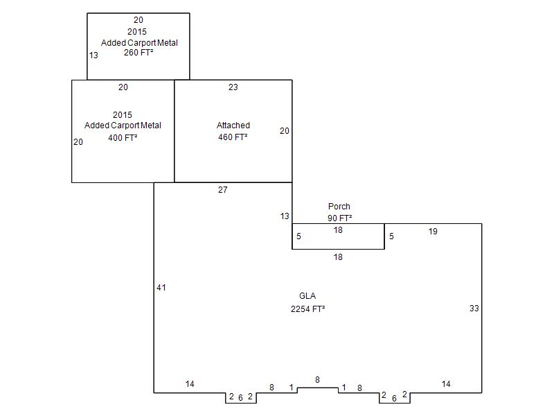
| Bldg # | Vacant/Improved Land | Bldg Description | Year Built | SqFt | # Stories | |
|
1 |
Improved |
Ranch 1 Story |
1970 |
2,254 |
1 Stories |
|