|
|
|
| Larry Stein Oklahoma County Assessor (405) 713-1200 - Public Access System |
|
|
|
|
|
|
| Real Property Display - Screen Produced 4/3/2026 9:24:16 AM | ||||
|---|---|---|---|---|
| Account: R188461910 | Type: Residential | Location: |
5812 NW 72ND ST |
|
| Building Name/Occupant: |
|
WARR ACRES |
||
| Owner Name 1: | PERRY SUE TRS |
Parcel PIN#: |
2812-18-846-1910 |
|
| Owner Name 2: | STAVROS JIM G TRS | 1/4 section #: |
2812 |
|
| Owner Name 3: | STAVROS SUE REV TRUST | Parent Acct: |
|
|
| Billing Address: | 5812 NW 72ND ST | Tax District: |
|
|
| City, State, Zip | OKLAHOMA CITY, OK 73132-6611 | School System: |
Putnam City #1 |
|
|
Country: (If noted) |
Land Size: |
0.1827 Acres |
||
|
Land Value: 40,581 |
|
|||
|
Sect 3-T12N-R4W Qtr NW |
CHEROKEE HILLS SEC 5
Block
023
Lot
005
|
|||
| Full Legal Description: CHEROKEE HILLS SEC 5 023 005 |
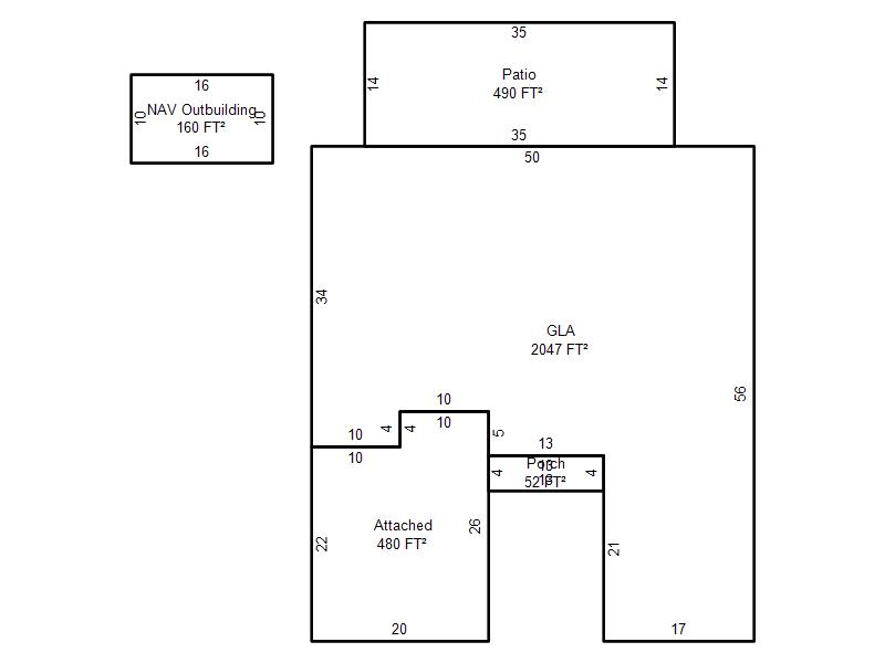
| Photo & Sketch (if available) | Comp Sales (ordered by relevancy) |
|
||||||||||||||||||
|
||||||||||||||||||||
| Value History (*The County Treasurer 405-713-1300 posts & collects actual tax amounts. Contact information HERE) | |||||||||||||
|---|---|---|---|---|---|---|---|---|---|---|---|---|---|
| Year | Market Value | Taxable Mkt Value | Gross Assessed | Exemption | Net Assessed | Millage | Est. Tax | Tax Savings | |||||
|
2026 |
203,500 |
119,077 |
13,098 |
13,098 |
0 |
115.77 |
$0 |
$2,591 |
|||||
|
2025 |
229,500 |
119,077 |
13,098 |
13,098 |
0 |
115.77 |
$0 |
$2,923 |
|||||
|
2024 |
221,500 |
119,077 |
13,098 |
13,098 |
0 |
114.25 |
$0 |
$2,784 |
|||||
|
2023 |
210,000 |
119,077 |
13,098 |
13,098 |
0 |
117.84 |
$0 |
$2,722 |
|||||
|
2022 |
189,000 |
119,077 |
13,098 |
13,098 |
0 |
120.40 |
$0 |
$2,503 |
|||||
| Property Account Status/Adjustments/Exemptions | ||
|---|---|---|
| Account # | Exemption Description | Amount |
|
R188461910 |
100% DAV Exemption |
100 |
|
R188461910 |
DAV Freeze Senior Valuation |
0 |
|
R188461910 |
DAV Homestead |
0 |
| Property Deed Transaction History (Recorded in the County Clerk's Office) | |||||||
|---|---|---|---|---|---|---|---|
| Date | Type | Book | Page | Price | Grantor | Grantee | |
|
2/22/2010 |
|
Deeds |
$0 |
PERRY MARCIA SUE |
PERRY SUE TRS |
||
|
6/23/2006 |
|
Deeds |
$0 |
PERRY MARCIA SUE & BILLY G |
PERRY MARCIA SUE |
||
|
12/28/1999 |
|
Deeds |
$40,000 |
JOHNSON EDWARD J & RUBY M TRS JOHNSON EDWARD J & RUBY M |
PERRY MARCIA SUE & BILLY G |
||
|
11/6/1992 |
|
Historical |
$0 |
JOHNSON EDWARD J & RUBY M |
JOHNSON EDWARD J & RUBY M TRS |
||
|
11/11/1911 |
|
Historical |
$0 |
|
JOHNSON EDWARD J & RUBY M |
||
| Last Mailed Notice of Value (N.O.V.) Information/History | ||||||||
|---|---|---|---|---|---|---|---|---|
| Year | Date | Market Value | Taxable Market Value | Gross Assessed | Exemption | Net Assessed | ||
|
2025 |
02/14/2025 |
229,500 |
119,077 |
13,098 |
13,098 |
0 |
||
|
2024 |
02/13/2024 |
221,500 |
119,077 |
13,098 |
13,098 |
0 |
||
|
2023 |
02/14/2023 |
210,000 |
119,077 |
13,098 |
13,098 |
0 |
||
|
2022 |
03/15/2022 |
189,000 |
119,077 |
13,098 |
13,098 |
0 |
||
|
2021 |
03/19/2021 |
163,000 |
119,077 |
13,098 |
13,098 |
0 |
||
| Property Building Permit History | |||||||||||
|---|---|---|---|---|---|---|---|---|---|---|---|
| Issued | Permit # | Provided by | Bldg # | Description | Est Construction Cost | Status | |||||
| No Building Permit records returned. | |||||||||||
| Click button on building number to access detailed information: | ||||||
|---|---|---|---|---|---|---|
| Bldg # | Vacant/Improved Land | Bldg Description | Year Built | SqFt | # Stories | |
|
1 |
Improved |
Ranch 1 Story |
1969 |
2,047 |
1 Stories |
|