|
|
|
| Larry Stein Oklahoma County Assessor (405) 713-1200 - Public Access System |
|
|
|
|
|
|
| Real Property Display - Screen Produced 4/1/2026 8:54:42 PM | ||||
|---|---|---|---|---|
| Account: R140481260 | Type: Residential | Location: |
6221 NW 75TH ST |
|
| Building Name/Occupant: |
|
OKLAHOMA CITY |
||
| Owner Name 1: | KELLEY MARK C |
Parcel PIN#: |
2813-14-048-1260 |
|
| Owner Name 2: | 1/4 section #: |
2813 |
||
| Owner Name 3: | Parent Acct: |
|
||
| Billing Address: | 6221 NW 75TH ST | Tax District: |
|
|
| City, State, Zip | OKLAHOMA CITY, OK 73132-5631 | School System: |
Putnam City #1 |
|
|
Country: (If noted) |
Land Size: |
0.2528 Acres |
||
|
Land Value: 51,000 |
|
|||
|
Sect 4-T12N-R4W Qtr NE |
ROBERTS BROOKHAVEN
Block
002
Lot
006
|
|||
| Full Legal Description: ROBERTS BROOKHAVEN 002 006 |
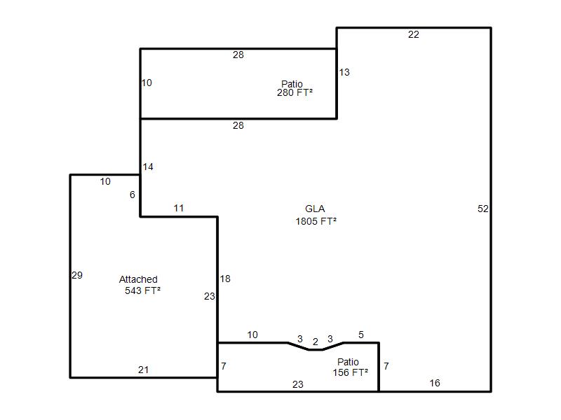
| Photo & Sketch (if available) | Comp Sales (ordered by relevancy) |
|
||||||||||||||||||
|
||||||||||||||||||||
| Value History (*The County Treasurer 405-713-1300 posts & collects actual tax amounts. Contact information HERE) | |||||||||||||
|---|---|---|---|---|---|---|---|---|---|---|---|---|---|
| Year | Market Value | Taxable Mkt Value | Gross Assessed | Exemption | Net Assessed | Millage | Est. Tax | Tax Savings | |||||
|
2026 |
230,500 |
207,579 |
22,833 |
0 |
22,833 |
123.17 |
$2,812 |
$311 |
|||||
|
2025 |
236,500 |
197,695 |
21,745 |
0 |
21,745 |
123.17 |
$2,679 |
$526 |
|||||
|
2024 |
234,500 |
188,281 |
20,710 |
0 |
20,710 |
122.30 |
$2,533 |
$622 |
|||||
|
2023 |
220,000 |
179,316 |
19,724 |
0 |
19,724 |
121.91 |
$2,405 |
$546 |
|||||
|
2022 |
193,000 |
170,778 |
18,784 |
0 |
18,784 |
123.41 |
$2,318 |
$302 |
|||||
| Property Account Status/Adjustments/Exemptions | ||
|---|---|---|
| Account # | Exemption Description | Amount |
|
R140481260 |
5% Capped Account |
0 |
| Property Deed Transaction History (Recorded in the County Clerk's Office) | |||||||
|---|---|---|---|---|---|---|---|
| Date | Type | Book | Page | Price | Grantor | Grantee | |
|
4/15/2015 |
|
Deeds |
$126,000 |
PICCOLO GARY T & NANCY E |
KELLEY MARK C |
||
|
11/11/1911 |
|
Historical |
$0 |
|
PICCOLO GARY T & NANCY E |
||
| Last Mailed Notice of Value (N.O.V.) Information/History | ||||||||
|---|---|---|---|---|---|---|---|---|
| Year | Date | Market Value | Taxable Market Value | Gross Assessed | Exemption | Net Assessed | ||
|
2026 |
02/23/2026 |
230,500 |
207,579 |
22,833 |
0 |
22,833 |
||
|
2025 |
02/14/2025 |
236,500 |
197,695 |
21,745 |
0 |
21,745 |
||
|
2024 |
02/13/2024 |
234,500 |
188,281 |
20,710 |
0 |
20,710 |
||
|
2023 |
02/14/2023 |
220,000 |
179,316 |
19,724 |
0 |
19,724 |
||
|
2022 |
03/15/2022 |
193,000 |
170,778 |
18,784 |
0 |
18,784 |
||
| Property Building Permit History | |||||||||||
|---|---|---|---|---|---|---|---|---|---|---|---|
| Issued | Permit # | Provided by | Bldg # | Description | Est Construction Cost | Status | |||||
| No Building Permit records returned. | |||||||||||
| Click button on building number to access detailed information: | ||||||
|---|---|---|---|---|---|---|
| Bldg # | Vacant/Improved Land | Bldg Description | Year Built | SqFt | # Stories | |
|
1 |
Improved |
Ranch 1 Story |
1971 |
1,805 |
1 Stories |
|