|
|
|
| Larry Stein Oklahoma County Assessor (405) 713-1200 - Public Access System |
|
|
|
|
|
|
| Real Property Display - Screen Produced 4/5/2026 6:01:21 AM | ||||
|---|---|---|---|---|
| Account: R202822070 | Type: Residential | Location: |
8508 NW 72ND CIR |
|
| Building Name/Occupant: |
|
OKLAHOMA CITY |
||
| Owner Name 1: | WAREHIME MARTHA GAYLE |
Parcel PIN#: |
2824-20-282-2070 |
|
| Owner Name 2: | 1/4 section #: |
2824 |
||
| Owner Name 3: | Parent Acct: |
2824-16-854-1575 |
||
| Billing Address: | 8508 NW 72ND CIR | Tax District: |
|
|
| City, State, Zip | WARR ACRES, OK 73132-3758 | School System: |
Putnam City #1 |
|
|
Country: (If noted) |
Land Size: |
0.1956 Acres |
||
|
Land Value: 57,936 |
|
|||
|
Sect 6-T12N-R4W Qtr NW |
THE MEADOWS AT RIVER BEND SEC 6
Block
029
Lot
027
|
|||
| Full Legal Description: THE MEADOWS AT RIVER BEND SEC 6 029 027 |
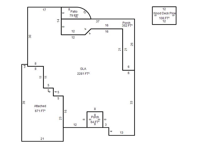
| Photo & Sketch (if available) | Comp Sales (ordered by relevancy) |
|
||||||||||||||||||
|
||||||||||||||||||||
| Value History (*The County Treasurer 405-713-1300 posts & collects actual tax amounts. Contact information HERE) | |||||||||||||
|---|---|---|---|---|---|---|---|---|---|---|---|---|---|
| Year | Market Value | Taxable Mkt Value | Gross Assessed | Exemption | Net Assessed | Millage | Est. Tax | Tax Savings | |||||
|
2026 |
366,500 |
330,411 |
36,344 |
1,000 |
35,344 |
123.17 |
$4,353 |
$612 |
|||||
|
2025 |
369,500 |
320,788 |
35,285 |
1,000 |
34,285 |
123.17 |
$4,223 |
$783 |
|||||
|
2024 |
357,000 |
311,445 |
34,258 |
1,000 |
33,258 |
122.30 |
$4,068 |
$735 |
|||||
|
2023 |
348,500 |
302,374 |
33,260 |
1,000 |
32,260 |
121.91 |
$3,933 |
$740 |
|||||
|
2022 |
303,500 |
293,567 |
32,291 |
1,000 |
31,291 |
123.41 |
$3,862 |
$258 |
|||||
| Property Account Status/Adjustments/Exemptions | ||
|---|---|---|
| Account # | Exemption Description | Amount |
|
R202822070 |
3% Cap Homestead |
0 |
|
R202822070 |
Homestead |
1,000 |
| Property Deed Transaction History (Recorded in the County Clerk's Office) | |||||||
|---|---|---|---|---|---|---|---|
| Date | Type | Book | Page | Price | Grantor | Grantee | |
|
10/18/2012 |
|
Deeds |
$0 |
PARANJAPE ANAND S & BHARATI A |
PARANJAPE A S & BHARATI A TRS 1999 REV TRUST |
||
|
10/18/2012 |
|
Deeds |
$225,000 |
PARANJAPE A S & BHARATI A TRS PARANJAPE A S 1999 REV TRUST |
WAREHIME MARTHA GAYLE |
||
|
1/21/2004 |
|
Deeds |
$0 |
PARANJAPE ANAND S & BHARATI A |
PARANJAPE A S & BHARATI A TRS PARANJAPE A S 1999 REV TRUST |
||
|
12/5/2003 |
|
Deeds |
$198,500 |
MARK SAMPLES HOMES LLC |
PARANJAPE ANAND S & BHARATI A |
||
|
6/19/2003 |
|
Deeds |
$35,000 |
RIVER BEND DEVELOPMENT LLC |
MARK SAMPLES HOMES LLC |
||
| Last Mailed Notice of Value (N.O.V.) Information/History | ||||||||
|---|---|---|---|---|---|---|---|---|
| Year | Date | Market Value | Taxable Market Value | Gross Assessed | Exemption | Net Assessed | ||
|
2026 |
02/23/2026 |
366,500 |
330,411 |
36,344 |
1,000 |
35,344 |
||
|
2025 |
02/14/2025 |
369,500 |
320,788 |
35,285 |
1,000 |
34,285 |
||
|
2024 |
02/13/2024 |
357,000 |
311,445 |
34,258 |
1,000 |
33,258 |
||
|
2023 |
02/14/2023 |
348,500 |
302,374 |
33,260 |
1,000 |
32,260 |
||
|
2022 |
03/15/2022 |
303,500 |
293,567 |
32,291 |
1,000 |
31,291 |
||
| Property Building Permit History | ||||||
|---|---|---|---|---|---|---|
| Issued | Permit # | Provided by | Bldg # | Description | Est Construction Cost | Status |
|
8/14/2003 |
10280955 |
OKLAHOMA CITY |
1 |
Main Dwellin |
142,000 |
Inactive |
| Click button on building number to access detailed information: | ||||||
|---|---|---|---|---|---|---|
| Bldg # | Vacant/Improved Land | Bldg Description | Year Built | SqFt | # Stories | |
|
1 |
Improved |
Ranch 1 Story |
2003 |
2,281 |
1 Stories |
|