|
|
|
| Larry Stein Oklahoma County Assessor (405) 713-1200 - Public Access System |
|
|
|
|
|
|
| Real Property Display - Screen Produced 4/9/2026 3:59:09 AM | ||||
|---|---|---|---|---|
| Account: R189083000 | Type: Residential | Location: |
6008 NW 56TH ST |
|
| Building Name/Occupant: |
|
WARR ACRES |
||
| Owner Name 1: | GONZALEZ ELEODORO & ESPERANZA |
Parcel PIN#: |
2834-18-908-3000 |
|
| Owner Name 2: | 1/4 section #: |
2834 |
||
| Owner Name 3: | Parent Acct: |
|
||
| Billing Address: | 6008 NW 56TH ST | Tax District: |
|
|
| City, State, Zip | OKLAHOMA CITY, OK 73122-6406 | School System: |
Putnam City #1 |
|
|
Country: (If noted) |
Land Size: |
0.1584 Acres |
||
|
Land Value: 18,630 |
|
|||
|
Sect 9-T12N-R4W Qtr SE |
THOMASON ADDITION
Block
003
Lot
000
|
|||
| Full Legal Description: THOMASON ADDITION 003 000 PT LOT 2 BEG 20FT W NE/C SD LOT 2 TH S137.75FT W 50FT N137.75FT E50FT SUBJ TO EASEMENTS OF RECORD |
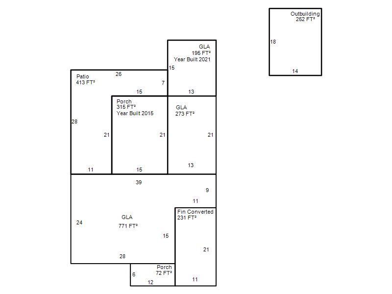
| Photo & Sketch (if available) | Comp Sales (ordered by relevancy) |
|
||||||||||||||||||
|
||||||||||||||||||||
| Value History (*The County Treasurer 405-713-1300 posts & collects actual tax amounts. Contact information HERE) | |||||||||||||
|---|---|---|---|---|---|---|---|---|---|---|---|---|---|
| Year | Market Value | Taxable Mkt Value | Gross Assessed | Exemption | Net Assessed | Millage | Est. Tax | Tax Savings | |||||
| No PropertyValuation records returned. | |||||||||||||
| Property Account Status/Adjustments/Exemptions | ||
|---|---|---|
| Account # | Exemption Description | Amount |
|
R189083000 |
5% Capped Account |
0 |
| Property Deed Transaction History (Recorded in the County Clerk's Office) | ||||||||||
|---|---|---|---|---|---|---|---|---|---|---|
| Date | Type | Book | Page | Price | Grantor | Grantee | ||||
|
2/23/2004 |
|
Deeds |
$58,500 |
RICHARDSON SCOTT LYNN |
GONZALEZ ELEODORO & ESPERANZA |
|||||
|
8/26/2002 |
|
Deeds |
$0 |
RICHARDSON KARA LEIGH |
RICHARDSON SCOTTY LYNN |
|||||
|
2/28/1992 |
|
Historical |
$20,000 |
YANG CHEONGTAK & KUEI CHIH YU |
RICHARDSON SCOTT LYNN |
|||||
|
5/25/1988 |
|
Historical |
$0 |
SECRETARY OF HOUSING |
YANG CHEONGTAK & KUEI CHIH YU |
|||||
|
3/28/1988 |
|
Historical |
$0 |
KRAMER ALLAN L & A DOREEN |
SECRETARY OF HOUSING |
|||||
| Last Mailed Notice of Value (N.O.V.) Information/History | ||||||||
|---|---|---|---|---|---|---|---|---|
| Year | Date | Market Value | Taxable Market Value | Gross Assessed | Exemption | Net Assessed | ||
| No Notice of Value N.O.V. records returned. | ||||||||
| Property Building Permit History | ||||||
|---|---|---|---|---|---|---|
| Issued | Permit # | Provided by | Bldg # | Description | Est Construction Cost | Status |
|
10/19/1994 |
10261000 |
WARR ACRES |
1 |
Add On |
12,000 |
Inactive |
| Click button on building number to access detailed information: | ||||||
|---|---|---|---|---|---|---|
| Bldg # | Vacant/Improved Land | Bldg Description | Year Built | SqFt | # Stories | |
|
1 |
Improved |
Ranch 1 Story |
1952 |
1,239 |
1 Stories |
|