|
|
|
| Larry Stein Oklahoma County Assessor (405) 713-1200 - Public Access System |
|
|
|
|
|
|
| Real Property Display - Screen Produced 4/1/2026 7:04:27 PM | ||||
|---|---|---|---|---|
| Account: R188831010 | Type: Residential | Location: |
6605 NW 57TH ST |
|
| Building Name/Occupant: |
|
WARR ACRES |
||
| Owner Name 1: | 6605 57 LLC |
Parcel PIN#: |
2835-18-883-1010 |
|
| Owner Name 2: | 1/4 section #: |
2835 |
||
| Owner Name 3: | Parent Acct: |
|
||
| Billing Address: | 2640 W WILSHIRE BLVD | Tax District: |
|
|
| City, State, Zip | OKLAHOMA CITY , OK 73116 | School System: |
Putnam City #1 |
|
|
Country: (If noted) |
Land Size: |
0.1800 Acres |
||
|
Land Value: 33,163 |
|
|||
|
Sect 9-T12N-R4W Qtr SW |
LAWSON 3RD
Block
001
Lot
002
|
|||
| Full Legal Description: LAWSON 3RD 001 002 |
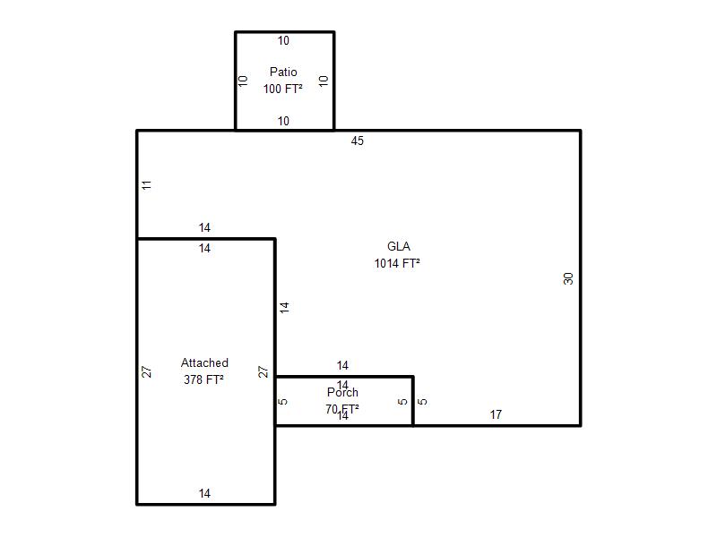
| Photo & Sketch (if available) | Comp Sales (ordered by relevancy) |
|
||||||||||||||||||
|
||||||||||||||||||||
| Value History (*The County Treasurer 405-713-1300 posts & collects actual tax amounts. Contact information HERE) | |||||||||||||
|---|---|---|---|---|---|---|---|---|---|---|---|---|---|
| Year | Market Value | Taxable Mkt Value | Gross Assessed | Exemption | Net Assessed | Millage | Est. Tax | Tax Savings | |||||
|
2026 |
151,500 |
135,080 |
14,858 |
0 |
14,858 |
115.77 |
$1,720 |
$209 |
|||||
|
2025 |
155,500 |
128,648 |
14,150 |
0 |
14,150 |
115.77 |
$1,638 |
$342 |
|||||
|
2024 |
149,500 |
122,522 |
13,476 |
0 |
13,476 |
114.25 |
$1,540 |
$339 |
|||||
|
2023 |
142,500 |
116,688 |
12,835 |
0 |
12,835 |
117.84 |
$1,513 |
$335 |
|||||
|
2022 |
124,000 |
111,132 |
12,224 |
0 |
12,224 |
120.40 |
$1,472 |
$170 |
|||||
| Property Account Status/Adjustments/Exemptions | ||
|---|---|---|
| Account # | Exemption Description | Amount |
|
R188831010 |
5% Capped Account |
0 |
| Property Deed Transaction History (Recorded in the County Clerk's Office) | |||||||
|---|---|---|---|---|---|---|---|
| Date | Type | Book | Page | Price | Grantor | Grantee | |
|
10/1/2018 |
|
Hmstd Off & |
$0 |
CUMMINGS SHELBY |
6605 57 LLC |
||
|
9/12/2018 |
|
Deeds |
$50,000 |
FIRST NATIONAL BANK TRS |
CUMMINGS SHELBY |
||
|
6/1/1983 |
|
Historical |
$0 |
|
FIRST NATIONAL BANK TRS |
||
| Last Mailed Notice of Value (N.O.V.) Information/History | ||||||||
|---|---|---|---|---|---|---|---|---|
| Year | Date | Market Value | Taxable Market Value | Gross Assessed | Exemption | Net Assessed | ||
|
2026 |
02/23/2026 |
151,500 |
135,080 |
14,858 |
0 |
14,858 |
||
|
2025 |
02/14/2025 |
155,500 |
128,648 |
14,150 |
0 |
14,150 |
||
|
2024 |
02/13/2024 |
149,500 |
122,522 |
13,476 |
0 |
13,476 |
||
|
2023 |
02/14/2023 |
142,500 |
116,688 |
12,835 |
0 |
12,835 |
||
|
2022 |
03/15/2022 |
124,000 |
111,132 |
12,224 |
0 |
12,224 |
||
| Property Building Permit History | |||||||||||
|---|---|---|---|---|---|---|---|---|---|---|---|
| Issued | Permit # | Provided by | Bldg # | Description | Est Construction Cost | Status | |||||
| No Building Permit records returned. | |||||||||||
| Click button on building number to access detailed information: | ||||||
|---|---|---|---|---|---|---|
| Bldg # | Vacant/Improved Land | Bldg Description | Year Built | SqFt | # Stories | |
|
1 |
Improved |
Ranch 1 Story |
1966 |
1,014 |
1 Stories |
|