|
|
|
| Larry Stein Oklahoma County Assessor (405) 713-1200 - Public Access System |
|
|
|
|
|
|
| Real Property Display - Screen Produced 4/2/2026 8:38:13 PM | ||||
|---|---|---|---|---|
| Account: R147544099 | Type: Residential | Location: |
4236 NW 54TH ST |
|
| Building Name/Occupant: |
|
OKLAHOMA CITY |
||
| Owner Name 1: | NGUYEN VINCENT |
Parcel PIN#: |
2843-14-754-4099 |
|
| Owner Name 2: | 1/4 section #: |
2843 |
||
| Owner Name 3: | Parent Acct: |
|
||
| Billing Address: | 4236 NW 54TH ST | Tax District: |
|
|
| City, State, Zip | OKLAHOMA CITY, OK 73112-2147 | School System: |
Putnam City #1 |
|
|
Country: (If noted) |
Land Size: |
0.2014 Acres |
||
|
Land Value: 35,100 |
|
|||
|
Sect 11-T12N-R4W Qtr SW |
SPRINGDALE ADDITION
Block
009
Lot
000
|
|||
| Full Legal Description: SPRINGDALE ADDITION 009 000 W12.5FT LOT 19 & ALL LOTS 20 & 21 & E2.5FT LOT 22 |
| Photo & Sketch (if available) | Comp Sales (ordered by relevancy) |
|
||||||||||||||||||
|
||||||||||||||||||||
| Value History (*The County Treasurer 405-713-1300 posts & collects actual tax amounts. Contact information HERE) | |||||||||||||
|---|---|---|---|---|---|---|---|---|---|---|---|---|---|
| Year | Market Value | Taxable Mkt Value | Gross Assessed | Exemption | Net Assessed | Millage | Est. Tax | Tax Savings | |||||
|
2026 |
177,000 |
140,819 |
15,489 |
1,000 |
14,489 |
123.17 |
$1,785 |
$613 |
|||||
|
2025 |
180,500 |
136,718 |
15,038 |
1,000 |
14,038 |
123.17 |
$1,729 |
$716 |
|||||
|
2024 |
177,000 |
132,736 |
14,600 |
1,000 |
13,600 |
122.30 |
$1,663 |
$718 |
|||||
|
2023 |
169,500 |
128,870 |
14,174 |
1,000 |
13,174 |
121.91 |
$1,606 |
$667 |
|||||
|
2022 |
149,000 |
125,117 |
13,761 |
1,000 |
12,761 |
123.41 |
$1,575 |
$448 |
|||||
| Property Account Status/Adjustments/Exemptions | ||
|---|---|---|
| Account # | Exemption Description | Amount |
|
R147544099 |
3% Cap Homestead |
0 |
|
R147544099 |
Homestead |
1,000 |
| Property Deed Transaction History (Recorded in the County Clerk's Office) | ||||||||||
|---|---|---|---|---|---|---|---|---|---|---|
| Date | Type | Book | Page | Price | Grantor | Grantee | ||||
|
6/19/2015 |
|
Deeds |
$115,000 |
CHANG THEODORE CHANG SYWEPING |
NGUYEN VINCENT |
|||||
|
6/24/2011 |
|
Deeds |
$98,500 |
NORWOOD VIRGIL O & SHIRLEY |
CHANG THEODORE CHANG SYWEPING |
|||||
|
1/4/2006 |
|
Deeds |
$0 |
NORWOOD VIRGIL O & SHIRLEY S NORWOOD MICHAEL O |
NORWOOD VIRGIL O & SHIRLEY |
|||||
|
2/26/1990 |
|
Historical |
$50,000 |
APPLESETH JOHN E & DEBBIE L |
NORWOOD VIRGIL O & SHIRLEY S |
|||||
|
11/17/1989 |
|
Historical |
$37,000 |
LEMMERMAN PAULA JILL ETAL |
APPLESETH JOHN E & DEBBIE L |
|||||
| Last Mailed Notice of Value (N.O.V.) Information/History | ||||||||
|---|---|---|---|---|---|---|---|---|
| Year | Date | Market Value | Taxable Market Value | Gross Assessed | Exemption | Net Assessed | ||
|
2026 |
02/23/2026 |
177,000 |
140,819 |
15,489 |
1,000 |
14,489 |
||
|
2025 |
02/14/2025 |
180,500 |
136,718 |
15,038 |
1,000 |
14,038 |
||
|
2024 |
02/13/2024 |
177,000 |
132,736 |
14,600 |
1,000 |
13,600 |
||
|
2023 |
02/14/2023 |
169,500 |
128,870 |
14,174 |
1,000 |
13,174 |
||
|
2022 |
03/15/2022 |
149,000 |
125,117 |
13,761 |
1,000 |
12,761 |
||
| Property Building Permit History | |||||||||||
|---|---|---|---|---|---|---|---|---|---|---|---|
| Issued | Permit # | Provided by | Bldg # | Description | Est Construction Cost | Status | |||||
| No Building Permit records returned. | |||||||||||
| Click button on building number to access detailed information: | ||||||
|---|---|---|---|---|---|---|
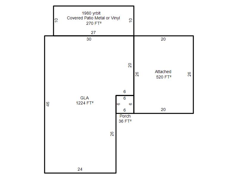
| Bldg # | Vacant/Improved Land | Bldg Description | Year Built | SqFt | # Stories | |
|
1 |
Improved |
Ranch 1 Story |
1962 |
1,224 |
1 Stories |
|