|
|
|
| Larry Stein Oklahoma County Assessor (405) 713-1200 - Public Access System |
|
|
|
|
|
|
| Real Property Display - Screen Produced 4/3/2026 4:59:00 AM | ||||
|---|---|---|---|---|
| Account: R142691175 | Type: Residential | Location: |
4125 NW 62ND TER |
|
| Building Name/Occupant: |
|
OKLAHOMA CITY |
||
| Owner Name 1: | COVALT AMANDA |
Parcel PIN#: |
2844-14-269-1175 |
|
| Owner Name 2: | 1/4 section #: |
2844 |
||
| Owner Name 3: | Parent Acct: |
|
||
| Billing Address: | 4125 NW 62ND TER | Tax District: |
|
|
| City, State, Zip | OKLAHOMA CITY, OK 73112-1352 | School System: |
Putnam City #1 |
|
|
Country: (If noted) |
Land Size: |
0.1809 Acres |
||
|
Land Value: 33,888 |
|
|||
|
Sect 11-T12N-R4W Qtr NW |
LAKERIDGE
Block
002
Lot
010
|
|||
| Full Legal Description: LAKERIDGE 002 010 |
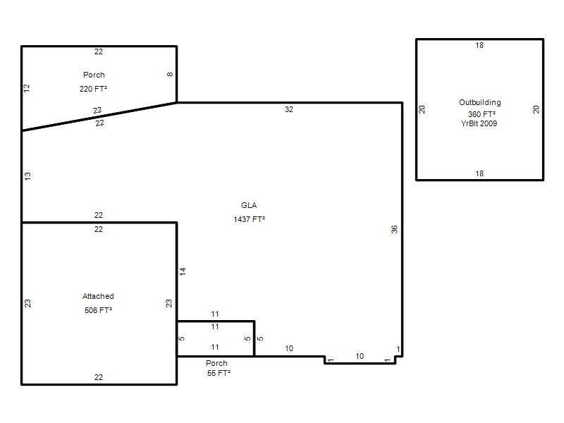
| Photo & Sketch (if available) | Comp Sales (ordered by relevancy) |
|
||||||||||||||||||
|
||||||||||||||||||||
| Value History (*The County Treasurer 405-713-1300 posts & collects actual tax amounts. Contact information HERE) | |||||||||||||
|---|---|---|---|---|---|---|---|---|---|---|---|---|---|
| Year | Market Value | Taxable Mkt Value | Gross Assessed | Exemption | Net Assessed | Millage | Est. Tax | Tax Savings | |||||
|
2026 |
236,500 |
236,500 |
26,015 |
1,000 |
25,015 |
123.17 |
$3,081 |
$123 |
|||||
|
2025 |
238,500 |
238,500 |
26,235 |
1,000 |
25,235 |
123.17 |
$3,108 |
$123 |
|||||
|
2024 |
237,000 |
237,000 |
26,070 |
1,000 |
25,070 |
122.30 |
$3,066 |
$122 |
|||||
|
2023 |
233,500 |
173,309 |
19,063 |
1,000 |
18,063 |
121.91 |
$2,202 |
$929 |
|||||
|
2022 |
206,000 |
168,262 |
18,508 |
1,000 |
17,508 |
123.41 |
$2,161 |
$636 |
|||||
| Property Account Status/Adjustments/Exemptions | ||
|---|---|---|
| Account # | Exemption Description | Amount |
|
R142691175 |
3% Cap Homestead |
0 |
|
R142691175 |
Homestead |
1,000 |
| Property Deed Transaction History (Recorded in the County Clerk's Office) | ||||||||||
|---|---|---|---|---|---|---|---|---|---|---|
| Date | Type | Book | Page | Price | Grantor | Grantee | ||||
|
5/22/2023 |
|
Deeds |
$205,000 |
HABEKOTT HEATHER A |
COVALT AMANDA |
|||||
|
9/9/2016 |
|
Deeds |
$143,000 |
DAVIS MICHAEL J & CHARLOTTE |
HABEKOTT HEATHER A |
|||||
|
7/28/2000 |
|
Deeds |
$75,000 |
SWAIM W KENT |
DAVIS MICHAEL J & CHARLOTTE |
|||||
|
11/12/1999 |
|
Deeds |
$0 |
SCHMOYER ANNETTE B SWAIM W KENT |
SWAIM W KENT |
|||||
|
3/9/1995 |
|
Historical |
$0 |
SCHMOYER F J & A B |
SCHMOYER ANNETTE B |
|||||
| Last Mailed Notice of Value (N.O.V.) Information/History | ||||||||
|---|---|---|---|---|---|---|---|---|
| Year | Date | Market Value | Taxable Market Value | Gross Assessed | Exemption | Net Assessed | ||
|
2025 |
02/14/2025 |
238,500 |
238,500 |
26,235 |
1,000 |
25,235 |
||
|
2024 |
02/13/2024 |
237,000 |
237,000 |
26,070 |
0 |
26,070 |
||
|
2023 |
02/14/2023 |
233,500 |
173,309 |
19,063 |
1,000 |
18,063 |
||
|
2022 |
03/15/2022 |
206,000 |
168,262 |
18,508 |
1,000 |
17,508 |
||
|
2021 |
03/19/2021 |
175,500 |
163,362 |
17,969 |
1,000 |
16,969 |
||
| Property Building Permit History | |||||||||||
|---|---|---|---|---|---|---|---|---|---|---|---|
| Issued | Permit # | Provided by | Bldg # | Description | Est Construction Cost | Status | |||||
| No Building Permit records returned. | |||||||||||
| Click button on building number to access detailed information: | ||||||
|---|---|---|---|---|---|---|
| Bldg # | Vacant/Improved Land | Bldg Description | Year Built | SqFt | # Stories | |
|
1 |
Improved |
Ranch 1 Story |
1958 |
1,437 |
1 Stories |
|