|
|
|
| Larry Stein Oklahoma County Assessor (405) 713-1200 - Public Access System |
|
|
|
|
|
|
| Real Property Display - Screen Produced 4/4/2026 12:53:08 PM | ||||
|---|---|---|---|---|
| Account: R150205500 | Type: Residential | Location: |
1015 CAROLYN DR |
|
| Building Name/Occupant: |
|
MIDWEST CITY |
||
| Owner Name 1: | DUNN FAMILY REVOCABLE TRUST |
Parcel PIN#: |
1415-15-020-5500 |
|
| Owner Name 2: | 1/4 section #: |
1415 |
||
| Owner Name 3: | Parent Acct: |
|
||
| Billing Address: | 1015 CAROLYN DR | Tax District: |
|
|
| City, State, Zip | MIDWEST CITY, OK 73110-2421 | School System: |
Mid-Del #52 |
|
|
Country: (If noted) |
Land Size: |
1.2462 Acres |
||
|
Land Value: 53,347 |
|
|||
|
Sect 4-T11N-R2W Qtr SW |
UNPLTD PT SEC 04 11N 2W
Block
000
Lot
000
|
|||
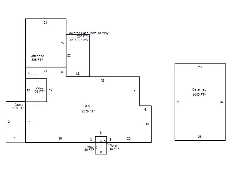
| Full Legal Description: UNPLTD PT SEC 04 11N 2W 000 000 PT OF SW4 SEC 4 11N 2W PT OF N 1/2 OF N 1/2 OF SW4 OF NW4 OF SW4 BEG 328.79FT E OF NW/C OF N 1/2 OF N 1/2 OF SW4 OF NW4 OF SW4 TH E328.79FT S165FT W328.79FT N165FT TO BEG CONT 1.25ACRS MORE OR LESS EX 30FT FOR RD EASEMNT |
| Photo & Sketch (if available) | Comp Sales (ordered by relevancy) |
|
||||||||||||||||||
|
||||||||||||||||||||
| Value History (*The County Treasurer 405-713-1300 posts & collects actual tax amounts. Contact information HERE) | |||||||||||||
|---|---|---|---|---|---|---|---|---|---|---|---|---|---|
| Year | Market Value | Taxable Mkt Value | Gross Assessed | Exemption | Net Assessed | Millage | Est. Tax | Tax Savings | |||||
|
2026 |
320,500 |
223,908 |
24,629 |
24,629 |
0 |
119.58 |
$0 |
$4,216 |
|||||
|
2025 |
312,500 |
217,387 |
23,912 |
23,912 |
0 |
119.58 |
$0 |
$4,110 |
|||||
|
2024 |
287,000 |
211,056 |
23,215 |
23,215 |
0 |
122.51 |
$0 |
$3,867 |
|||||
|
2023 |
259,000 |
204,909 |
22,539 |
22,539 |
0 |
117.71 |
$0 |
$3,353 |
|||||
|
2022 |
243,000 |
198,941 |
21,883 |
1,000 |
20,883 |
116.64 |
$2,436 |
$682 |
|||||
| Property Account Status/Adjustments/Exemptions | ||
|---|---|---|
| Account # | Exemption Description | Amount |
|
R150205500 |
100% DAV Exemption |
100 |
|
R150205500 |
3% Cap Homestead |
0 |
|
R150205500 |
DAV Homestead |
0 |
| Property Deed Transaction History (Recorded in the County Clerk's Office) | |||||||
|---|---|---|---|---|---|---|---|
| Date | Type | Book | Page | Price | Grantor | Grantee | |
|
12/2/2021 |
|
Deeds |
$0 |
DUNN DEBRA J & STEVEN W |
DUNN FAMILY REVOCABLE TRUST |
||
|
7/28/2006 |
|
Deeds |
$165,000 |
DAVIS GOLDIE MAE TRS DAVIS GOLDIE MAE REV TRUST |
DUNN DEBRA J & STEVEN W |
||
|
11/15/1996 |
|
Historical |
$0 |
DAVIS GOLDIE M |
DAVIS GOLDIE MAE TRS |
||
|
10/27/1993 |
|
Historical |
$0 |
DAVIS HERMAN L & GOLDIE M |
DAVIS GOLDIE M |
||
|
6/1/1978 |
|
Historical |
$0 |
|
DAVIS HERMAN L & GOLDIE M |
||
| Last Mailed Notice of Value (N.O.V.) Information/History | ||||||||
|---|---|---|---|---|---|---|---|---|
| Year | Date | Market Value | Taxable Market Value | Gross Assessed | Exemption | Net Assessed | ||
|
2026 |
02/06/2026 |
320,500 |
223,908 |
24,629 |
24,629 |
0 |
||
|
2025 |
01/31/2025 |
312,500 |
217,387 |
23,912 |
23,912 |
0 |
||
|
2024 |
01/22/2024 |
287,000 |
211,056 |
23,215 |
23,215 |
0 |
||
|
2023 |
01/23/2023 |
259,000 |
204,909 |
22,539 |
1,000 |
21,539 |
||
|
2022 |
02/22/2022 |
243,000 |
198,941 |
21,882 |
1,000 |
20,882 |
||
| Property Building Permit History | |||||||||||
|---|---|---|---|---|---|---|---|---|---|---|---|
| Issued | Permit # | Provided by | Bldg # | Description | Est Construction Cost | Status | |||||
| No Building Permit records returned. | |||||||||||
| Click button on building number to access detailed information: | ||||||
|---|---|---|---|---|---|---|
| Bldg # | Vacant/Improved Land | Bldg Description | Year Built | SqFt | # Stories | |
|
1 |
Improved |
Ranch 1 Story |
1975 |
2,075 |
1 Stories |
|