|
|
|
| Larry Stein Oklahoma County Assessor (405) 713-1200 - Public Access System |
|
|
|
|
|
|
| Real Property Display - Screen Produced 4/4/2026 4:53:29 PM | ||||
|---|---|---|---|---|
| Account: R150593000 | Type: Residential | Location: |
5804 SE 3RD ST |
|
| Building Name/Occupant: |
|
MIDWEST CITY |
||
| Owner Name 1: | SMITH EDWARD R & CINDY ANN SPARKS |
Parcel PIN#: |
1416-15-059-3000 |
|
| Owner Name 2: | 1/4 section #: |
1416 |
||
| Owner Name 3: | Parent Acct: |
|
||
| Billing Address: | 5804 SE 3RD ST | Tax District: |
|
|
| City, State, Zip | MIDWEST CITY, OK 73110-2037 | School System: |
Mid-Del #52 |
|
|
Country: (If noted) |
Land Size: |
0.5395 Acres |
||
|
Land Value: 22,212 |
|
|||
|
Sect 4-T11N-R2W Qtr NW |
HOWARD ACRES ADD
Block
002
Lot
005
|
|||
| Full Legal Description: HOWARD ACRES ADD 002 005 |
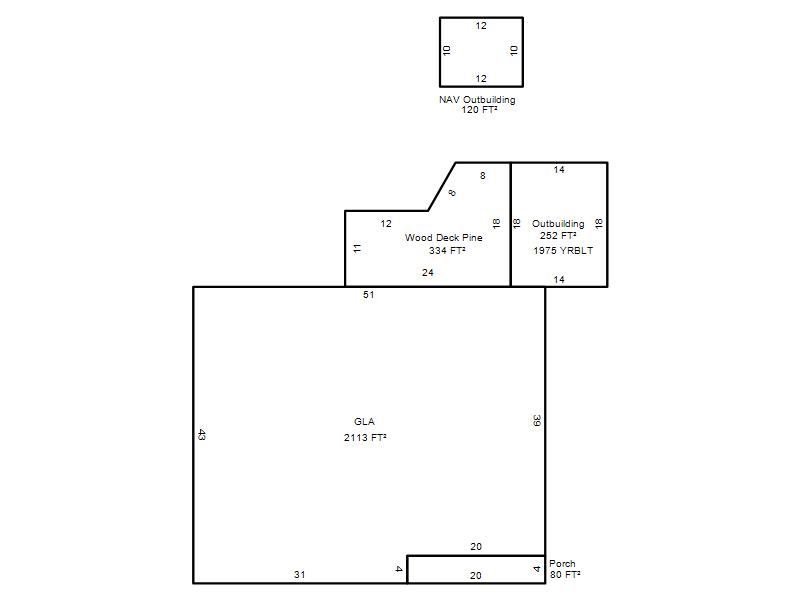
| Photo & Sketch (if available) | Comp Sales (ordered by relevancy) |
|
||||||||||||||||||
|
||||||||||||||||||||
| Value History (*The County Treasurer 405-713-1300 posts & collects actual tax amounts. Contact information HERE) | |||||||||||||
|---|---|---|---|---|---|---|---|---|---|---|---|---|---|
| Year | Market Value | Taxable Mkt Value | Gross Assessed | Exemption | Net Assessed | Millage | Est. Tax | Tax Savings | |||||
|
2026 |
249,500 |
152,447 |
16,768 |
1,000 |
15,768 |
119.58 |
$1,886 |
$1,396 |
|||||
|
2025 |
252,000 |
148,007 |
16,280 |
1,000 |
15,280 |
119.58 |
$1,827 |
$1,487 |
|||||
|
2024 |
232,500 |
143,697 |
15,806 |
1,000 |
14,806 |
122.51 |
$1,814 |
$1,319 |
|||||
|
2023 |
208,500 |
139,512 |
15,345 |
1,000 |
14,345 |
117.71 |
$1,689 |
$1,011 |
|||||
|
2022 |
190,500 |
135,449 |
14,898 |
1,000 |
13,898 |
116.64 |
$1,621 |
$823 |
|||||
| Property Account Status/Adjustments/Exemptions | ||
|---|---|---|
| Account # | Exemption Description | Amount |
|
R150593000 |
Homestead |
1,000 |
|
R150593000 |
3% Cap Homestead |
0 |
| Property Deed Transaction History (Recorded in the County Clerk's Office) | ||||||||||
|---|---|---|---|---|---|---|---|---|---|---|
| Date | Type | Book | Page | Price | Grantor | Grantee | ||||
|
5/24/2002 |
|
Hmstd Off & |
$0 |
GLOSSIP HERON D & SALLY V |
SMITH EDWARD R & CINDY ANN SPARKS |
|||||
|
5/21/2002 |
|
Other |
$0 |
ASSOCIATES HOME EQUITY SERVICES |
ST FRANCISVILLE LLC |
|||||
|
5/14/2002 |
|
Deeds |
$37,500 |
ST FRANCISVILLE LLC |
SMITH EDWARD R & CINDY ANN SPARKS |
|||||
|
12/10/1992 |
|
Historical |
$35,000 |
SECRETARY OF HOUSING |
GLOSSIP HERON D & SALLY V |
|||||
|
8/28/1992 |
|
Historical |
$0 |
CRAWFORD ODELL D & ANDREA |
SECRETARY OF HOUSING |
|||||
| Last Mailed Notice of Value (N.O.V.) Information/History | ||||||||
|---|---|---|---|---|---|---|---|---|
| Year | Date | Market Value | Taxable Market Value | Gross Assessed | Exemption | Net Assessed | ||
|
2026 |
02/06/2026 |
249,500 |
152,447 |
16,768 |
1,000 |
15,768 |
||
|
2025 |
01/31/2025 |
252,000 |
148,007 |
16,280 |
1,000 |
15,280 |
||
|
2024 |
01/22/2024 |
232,500 |
143,697 |
15,806 |
1,000 |
14,806 |
||
|
2023 |
01/23/2023 |
208,500 |
139,512 |
15,345 |
1,000 |
14,345 |
||
|
2022 |
02/22/2022 |
190,500 |
135,449 |
14,898 |
1,000 |
13,898 |
||
| Property Building Permit History | ||||||
|---|---|---|---|---|---|---|
| Issued | Permit # | Provided by | Bldg # | Description | Est Construction Cost | Status |
|
6/10/2002 |
10246534 |
MIDWEST CITY |
1 |
Add On |
10,000 |
Inactive |
| Click button on building number to access detailed information: | ||||||
|---|---|---|---|---|---|---|
| Bldg # | Vacant/Improved Land | Bldg Description | Year Built | SqFt | # Stories | |
|
1 |
Improved |
Ranch 1 Story |
1950 |
2,113 |
1 Stories |
|