|
|
|
| Larry Stein Oklahoma County Assessor (405) 713-1200 - Public Access System |
|
|
|
|
|
|
| Real Property Display - Screen Produced 4/4/2026 4:53:29 PM | ||||
|---|---|---|---|---|
| Account: R150593500 | Type: Residential | Location: |
5724 SE 3RD ST |
|
| Building Name/Occupant: |
|
MIDWEST CITY |
||
| Owner Name 1: | WILEY HOWARD RAY & JUDITH ANN TRS |
Parcel PIN#: |
1416-15-059-3500 |
|
| Owner Name 2: | WILEY HOWARD RAY & JUDITH ANN OATH TRUST | 1/4 section #: |
1416 |
|
| Owner Name 3: | Parent Acct: |
|
||
| Billing Address: | 5724 SE 3RD ST | Tax District: |
|
|
| City, State, Zip | MIDWEST CITY, OK 73110-2035 | School System: |
Mid-Del #52 |
|
|
Country: (If noted) |
Land Size: |
0.5395 Acres |
||
|
Land Value: 22,212 |
|
|||
|
Sect 4-T11N-R2W Qtr NW |
HOWARD ACRES ADD
Block
002
Lot
007
|
|||
| Full Legal Description: HOWARD ACRES ADD 002 007 |
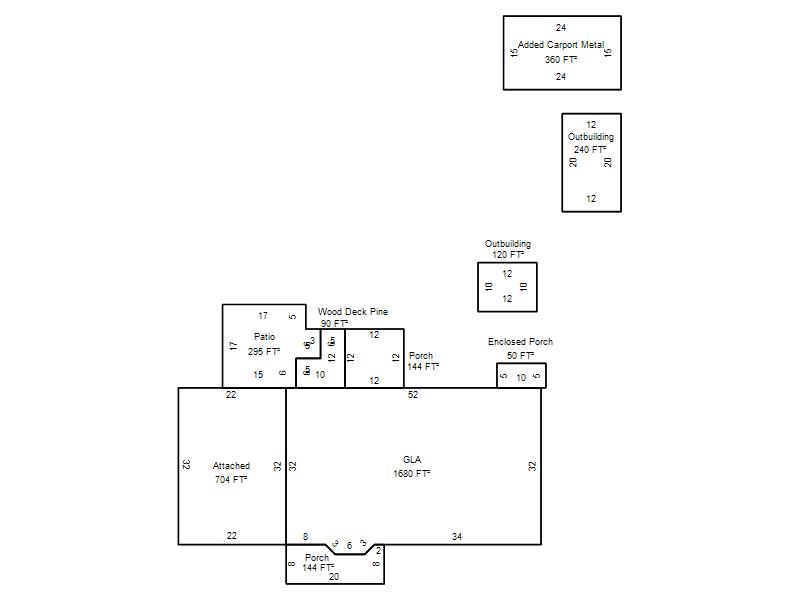
| Photo & Sketch (if available) | Comp Sales (ordered by relevancy) |
|
||||||||||||||||||
|
||||||||||||||||||||
| Value History (*The County Treasurer 405-713-1300 posts & collects actual tax amounts. Contact information HERE) | |||||||||||||
|---|---|---|---|---|---|---|---|---|---|---|---|---|---|
| Year | Market Value | Taxable Mkt Value | Gross Assessed | Exemption | Net Assessed | Millage | Est. Tax | Tax Savings | |||||
|
2026 |
183,000 |
110,033 |
12,103 |
1,000 |
11,103 |
119.58 |
$1,328 |
$1,079 |
|||||
|
2025 |
181,500 |
106,829 |
11,750 |
1,000 |
10,750 |
119.58 |
$1,286 |
$1,102 |
|||||
|
2024 |
170,000 |
103,718 |
11,408 |
1,000 |
10,408 |
122.51 |
$1,275 |
$1,016 |
|||||
|
2023 |
149,500 |
100,698 |
11,076 |
1,000 |
10,076 |
117.71 |
$1,186 |
$750 |
|||||
|
2022 |
138,000 |
97,766 |
10,754 |
1,000 |
9,754 |
116.64 |
$1,138 |
$633 |
|||||
| Property Account Status/Adjustments/Exemptions | ||
|---|---|---|
| Account # | Exemption Description | Amount |
|
R150593500 |
3% Cap Homestead |
0 |
|
R150593500 |
Homestead |
1,000 |
| Property Deed Transaction History (Recorded in the County Clerk's Office) | |||||||
|---|---|---|---|---|---|---|---|
| Date | Type | Book | Page | Price | Grantor | Grantee | |
|
12/7/2023 |
|
Deeds |
$0 |
WILEY HOWARD R & JUDITH A |
WILEY HOWARD RAY & JUDITH ANN TRS |
||
|
7/30/2002 |
|
Deeds |
$0 |
WILEY HOWARD R & JUDITH A |
WILEY HOWARD R & JUDITH A |
||
|
2/1/1973 |
|
Historical |
$0 |
|
WILEY HOWARD R & JUDITH A |
||
| Last Mailed Notice of Value (N.O.V.) Information/History | ||||||||
|---|---|---|---|---|---|---|---|---|
| Year | Date | Market Value | Taxable Market Value | Gross Assessed | Exemption | Net Assessed | ||
|
2026 |
02/06/2026 |
183,000 |
110,033 |
12,103 |
1,000 |
11,103 |
||
|
2025 |
01/31/2025 |
181,500 |
106,829 |
11,750 |
1,000 |
10,750 |
||
|
2024 |
01/22/2024 |
170,000 |
103,718 |
11,408 |
1,000 |
10,408 |
||
|
2024 |
03/01/2024 |
170,000 |
103,718 |
11,408 |
1,000 |
10,408 |
||
|
2023 |
01/23/2023 |
149,500 |
100,698 |
11,076 |
1,000 |
10,076 |
||
| Property Building Permit History | ||||||
|---|---|---|---|---|---|---|
| Issued | Permit # | Provided by | Bldg # | Description | Est Construction Cost | Status |
|
5/2/2000 |
10246537 |
MIDWEST CITY |
1 |
Other |
1,825 |
Inactive |
|
6/10/1999 |
10246536 |
MIDWEST CITY |
1 |
Other |
2,000 |
Inactive |
| Click button on building number to access detailed information: | ||||||
|---|---|---|---|---|---|---|
| Bldg # | Vacant/Improved Land | Bldg Description | Year Built | SqFt | # Stories | |
|
1 |
Improved |
Ranch 1 Story |
1948 |
1,680 |
1 Stories |
|