|
|
|
| Larry Stein Oklahoma County Assessor (405) 713-1200 - Public Access System |
|
|
|
|
|
|
| Real Property Display - Screen Produced 4/4/2026 4:50:57 PM | ||||
|---|---|---|---|---|
| Account: R150598300 | Type: Residential | Location: |
700 S SOONER RD |
|
| Building Name/Occupant: |
|
MIDWEST CITY |
||
| Owner Name 1: | ADEDUN JUDY |
Parcel PIN#: |
1416-15-059-8300 |
|
| Owner Name 2: | 1/4 section #: |
1416 |
||
| Owner Name 3: | Parent Acct: |
|
||
| Billing Address: | 700 S SOONER RD | Tax District: |
|
|
| City, State, Zip | MIDWEST CITY, OK 73110 | School System: |
Mid-Del #52 |
|
|
Country: (If noted) |
Land Size: |
0.6887 Acres |
||
|
Land Value: 23,148 |
|
|||
|
Sect 4-T11N-R2W Qtr NW |
HOWARD ACRES ADD
Block
003
Lot
014
|
|||
| Full Legal Description: HOWARD ACRES ADD 003 014 |
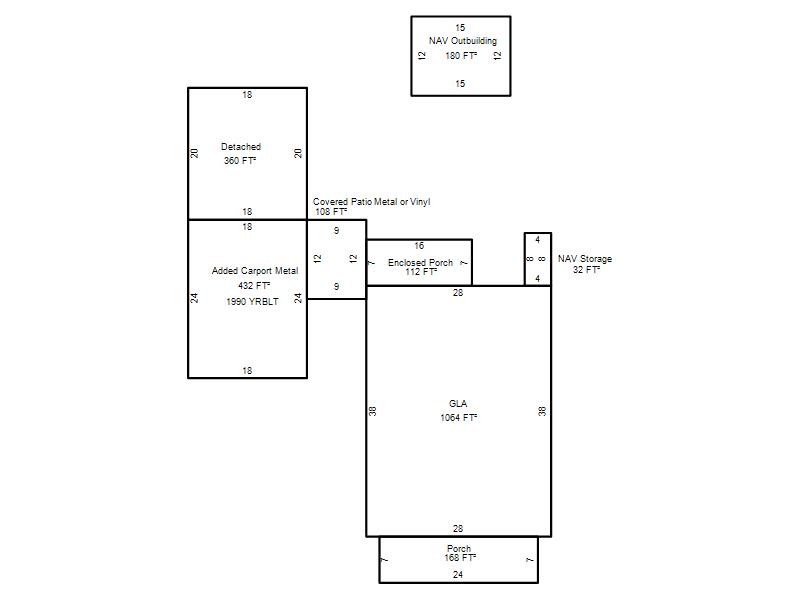
| Photo & Sketch (if available) | Comp Sales (ordered by relevancy) |
|
||||||||||||||||||
|
||||||||||||||||||||
| Value History (*The County Treasurer 405-713-1300 posts & collects actual tax amounts. Contact information HERE) | |||||||||||||
|---|---|---|---|---|---|---|---|---|---|---|---|---|---|
| Year | Market Value | Taxable Mkt Value | Gross Assessed | Exemption | Net Assessed | Millage | Est. Tax | Tax Savings | |||||
|
2026 |
131,500 |
125,023 |
13,751 |
0 |
13,751 |
119.58 |
$1,645 |
$85 |
|||||
|
2025 |
133,000 |
119,070 |
13,097 |
0 |
13,097 |
119.58 |
$1,566 |
$183 |
|||||
|
2024 |
120,500 |
113,400 |
12,474 |
0 |
12,474 |
122.51 |
$1,528 |
$96 |
|||||
|
2023 |
108,000 |
108,000 |
11,880 |
0 |
11,880 |
117.71 |
$1,398 |
$0 |
|||||
|
2022 |
101,000 |
75,155 |
8,265 |
0 |
8,265 |
116.64 |
$964 |
$332 |
|||||
| Property Account Status/Adjustments/Exemptions | ||
|---|---|---|
| Account # | Exemption Description | Amount |
|
R150598300 |
5% Capped Account |
0 |
| Property Deed Transaction History (Recorded in the County Clerk's Office) | ||||||||||
|---|---|---|---|---|---|---|---|---|---|---|
| Date | Type | Book | Page | Price | Grantor | Grantee | ||||
|
2/11/2022 |
|
Mult Parcel |
$213,000 |
DENNIS ROXANNE TRS |
ADEDUN JUDY |
|||||
|
6/9/2020 |
|
Deeds |
$0 |
DENNIS ROXANNE |
DENNIS ROXANNE TRS |
|||||
|
3/15/2017 |
|
Hmstd Off & |
$0 |
WELDEN JAMES W TRS |
DENNIS ROXANNE |
|||||
|
4/4/2001 |
|
Deeds |
$0 |
WELDEN J W |
WELDEN JAMES W TRS |
|||||
|
10/4/1995 |
|
Historical |
$0 |
WELDEN J W & DOROTHY A |
WELDEN J W |
|||||
| Last Mailed Notice of Value (N.O.V.) Information/History | ||||||||
|---|---|---|---|---|---|---|---|---|
| Year | Date | Market Value | Taxable Market Value | Gross Assessed | Exemption | Net Assessed | ||
|
2026 |
02/06/2026 |
131,500 |
125,023 |
13,751 |
0 |
13,751 |
||
|
2025 |
01/31/2025 |
133,000 |
119,070 |
13,097 |
0 |
13,097 |
||
|
2024 |
01/22/2024 |
120,500 |
113,400 |
12,474 |
0 |
12,474 |
||
|
2023 |
01/23/2023 |
108,000 |
108,000 |
11,880 |
0 |
11,880 |
||
|
2022 |
02/22/2022 |
101,000 |
75,155 |
8,265 |
0 |
8,265 |
||
| Property Building Permit History | ||||||
|---|---|---|---|---|---|---|
| Issued | Permit # | Provided by | Bldg # | Description | Est Construction Cost | Status |
|
4/1/1999 |
10246564 |
MIDWEST CITY |
1 |
Carport |
1,000 |
Inactive |
| Click button on building number to access detailed information: | ||||||
|---|---|---|---|---|---|---|
| Bldg # | Vacant/Improved Land | Bldg Description | Year Built | SqFt | # Stories | |
|
1 |
Improved |
Ranch 1 Story |
1946 |
1,064 |
1 Stories |
|