|
|
|
| Larry Stein Oklahoma County Assessor (405) 713-1200 - Public Access System |
|
|
|
|
|
|
| Real Property Display - Screen Produced 4/5/2026 5:29:48 AM | ||||
|---|---|---|---|---|
| Account: R189001250 | Type: Residential | Location: |
6006 NW 50TH ST |
|
| Building Name/Occupant: |
|
WARR ACRES |
||
| Owner Name 1: | EWTON WILLIAM |
Parcel PIN#: |
2861-18-900-1250 |
|
| Owner Name 2: | 1/4 section #: |
2861 |
||
| Owner Name 3: | Parent Acct: |
|
||
| Billing Address: | 6006 NW 50TH ST | Tax District: |
|
|
| City, State, Zip | OKLAHOMA CITY, OK 73122 | School System: |
Putnam City #1 |
|
|
Country: (If noted) |
Land Size: |
0.2273 Acres |
||
|
Land Value: 23,265 |
|
|||
|
Sect 16-T12N-R4W Qtr NE |
FERGUSONS PARK ADD
Block
001
Lot
000
|
|||
| Full Legal Description: FERGUSONS PARK ADD 001 000 W25FT LOT 1 & E50FT LOT 2 |
| Photo & Sketch (if available) | Comp Sales (ordered by relevancy) |
|
||||||||||||||||||
|
||||||||||||||||||||
| Value History (*The County Treasurer 405-713-1300 posts & collects actual tax amounts. Contact information HERE) | |||||||||||||
|---|---|---|---|---|---|---|---|---|---|---|---|---|---|
| Year | Market Value | Taxable Mkt Value | Gross Assessed | Exemption | Net Assessed | Millage | Est. Tax | Tax Savings | |||||
|
2026 |
150,000 |
150,000 |
16,500 |
0 |
16,500 |
115.77 |
$1,910 |
$0 |
|||||
|
2025 |
155,500 |
155,500 |
17,105 |
0 |
17,105 |
115.77 |
$1,980 |
$0 |
|||||
|
2024 |
155,000 |
154,875 |
17,036 |
0 |
17,036 |
114.25 |
$1,946 |
$2 |
|||||
|
2023 |
147,500 |
147,500 |
16,225 |
0 |
16,225 |
117.84 |
$1,912 |
$0 |
|||||
|
2022 |
123,500 |
104,524 |
11,496 |
0 |
11,496 |
120.40 |
$1,384 |
$251 |
|||||
| Property Account Status/Adjustments/Exemptions | ||
|---|---|---|
| Account # | Exemption Description | Amount |
|
R189001250 |
5% Capped Account |
0 |
| Property Deed Transaction History (Recorded in the County Clerk's Office) | ||||||||||
|---|---|---|---|---|---|---|---|---|---|---|
| Date | Type | Book | Page | Price | Grantor | Grantee | ||||
|
6/9/2022 |
|
Deeds |
$155,000 |
NAJERA GEORGINA PASILLAS |
EWTON WILLIAM |
|||||
|
6/15/2017 |
|
Hmstd Off & |
$0 |
NAJERA ANA LUISA PASILLAS |
NAJERA GEORGINA PASILLAS |
|||||
|
10/16/2015 |
|
Hmstd Off & |
$0 |
NAJERA GEORGINA PASILLAS |
NAJERA ANA LUISA PASILLAS |
|||||
|
5/11/2015 |
|
Other |
$0 |
MORALES WALTER & ALMA |
NAJERA GEORGINA PASILLAS |
|||||
|
9/6/2013 |
|
Deeds |
$65,000 |
TAVANGAR KHOSROW TRS TAVANGAR KHOSROW TRUST |
MORALES WALTER & ALMA |
|||||
| Last Mailed Notice of Value (N.O.V.) Information/History | ||||||||
|---|---|---|---|---|---|---|---|---|
| Year | Date | Market Value | Taxable Market Value | Gross Assessed | Exemption | Net Assessed | ||
|
2025 |
02/14/2025 |
155,500 |
155,500 |
17,105 |
0 |
17,105 |
||
|
2024 |
02/13/2024 |
155,000 |
154,875 |
17,036 |
0 |
17,036 |
||
|
2023 |
02/14/2023 |
147,500 |
147,500 |
16,225 |
0 |
16,225 |
||
|
2022 |
03/15/2022 |
123,500 |
104,524 |
11,496 |
0 |
11,496 |
||
|
2021 |
03/19/2021 |
104,000 |
99,547 |
10,950 |
0 |
10,950 |
||
| Property Building Permit History | |||||||||||
|---|---|---|---|---|---|---|---|---|---|---|---|
| Issued | Permit # | Provided by | Bldg # | Description | Est Construction Cost | Status | |||||
| No Building Permit records returned. | |||||||||||
| Click button on building number to access detailed information: | ||||||
|---|---|---|---|---|---|---|
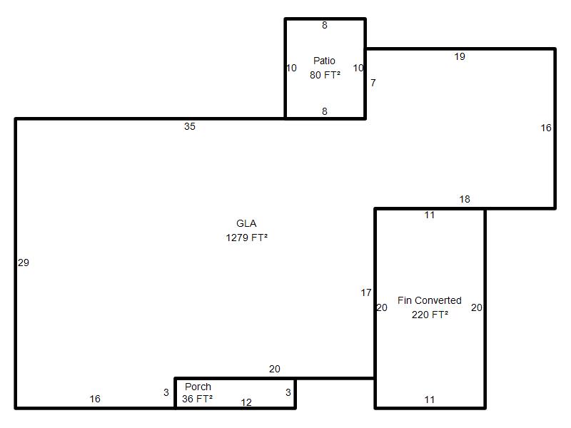
| Bldg # | Vacant/Improved Land | Bldg Description | Year Built | SqFt | # Stories | |
|
1 |
Improved |
Ranch 1 Story |
1947 |
1,279 |
1 Stories |
|