|
|
|
| Larry Stein Oklahoma County Assessor (405) 713-1200 - Public Access System |
|
|
|
|
|
|
| Real Property Display - Screen Produced 4/5/2026 5:31:15 AM | ||||
|---|---|---|---|---|
| Account: R189003350 | Type: Residential | Location: |
6007 NW 49TH ST |
|
| Building Name/Occupant: |
|
WARR ACRES |
||
| Owner Name 1: | RODRIGUEZ JOSE D FONSECA |
Parcel PIN#: |
2861-18-900-3350 |
|
| Owner Name 2: | ARMENDARIZ CINTHYA GABRIELA GARCIA | 1/4 section #: |
2861 |
|
| Owner Name 3: | Parent Acct: |
|
||
| Billing Address: | 6007 NW 49TH ST | Tax District: |
|
|
| City, State, Zip | WARR ACRES, OK 73122 | School System: |
Putnam City #1 |
|
|
Country: (If noted) |
Land Size: |
0.2324 Acres |
||
|
Land Value: 23,794 |
|
|||
|
Sect 16-T12N-R4W Qtr NE |
FERGUSONS PARK ADD
Block
001
Lot
000
|
|||
| Full Legal Description: FERGUSONS PARK ADD 001 000 E50FT LOT 11 & W25FT LOT 12 |
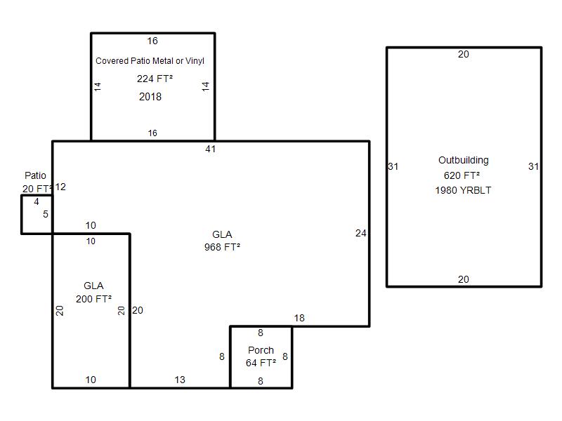
| Photo & Sketch (if available) | Comp Sales (ordered by relevancy) |
|
||||||||||||||||||
|
||||||||||||||||||||
| Value History (*The County Treasurer 405-713-1300 posts & collects actual tax amounts. Contact information HERE) | |||||||||||||
|---|---|---|---|---|---|---|---|---|---|---|---|---|---|
| Year | Market Value | Taxable Mkt Value | Gross Assessed | Exemption | Net Assessed | Millage | Est. Tax | Tax Savings | |||||
|
2026 |
200,500 |
200,500 |
22,055 |
1,000 |
21,055 |
115.77 |
$2,438 |
$116 |
|||||
|
2025 |
204,000 |
199,526 |
21,947 |
1,000 |
20,947 |
115.77 |
$2,425 |
$173 |
|||||
|
2024 |
202,500 |
193,715 |
21,308 |
1,000 |
20,308 |
114.25 |
$2,320 |
$225 |
|||||
|
2023 |
140,500 |
140,500 |
15,455 |
1,000 |
14,455 |
117.84 |
$1,703 |
$118 |
|||||
|
2022 |
123,500 |
112,434 |
12,365 |
0 |
12,365 |
120.40 |
$1,489 |
$147 |
|||||
| Property Account Status/Adjustments/Exemptions | ||
|---|---|---|
| Account # | Exemption Description | Amount |
|
R189003350 |
3% Cap Homestead |
0 |
|
R189003350 |
Homestead |
1,000 |
| Property Deed Transaction History (Recorded in the County Clerk's Office) | ||||||||||
|---|---|---|---|---|---|---|---|---|---|---|
| Date | Type | Book | Page | Price | Grantor | Grantee | ||||
|
1/11/2022 |
|
Deeds |
$144,000 |
NAJERA GEORGINA PASILLAS |
RODRIGUEZ JOSE D FONSECA |
|||||
|
11/3/2015 |
|
Deeds |
$90,000 |
MORALES WALTER |
NAJERA GEORGINA PASILLAS |
|||||
|
12/12/2008 |
|
Deeds |
$83,500 |
SPARKS JIM C JR & JUDY L |
MORALES WALTER |
|||||
|
6/15/1999 |
|
Deeds |
$54,500 |
WILLIAMS BOBBY R JR & AMY L |
SPARKS JIM C JR & JUDY L |
|||||
|
3/27/1995 |
|
Historical |
$0 |
WALKER AMY L |
WILLIAMS BOBBY R JR & AMY L |
|||||
| Last Mailed Notice of Value (N.O.V.) Information/History | ||||||||
|---|---|---|---|---|---|---|---|---|
| Year | Date | Market Value | Taxable Market Value | Gross Assessed | Exemption | Net Assessed | ||
|
2026 |
02/23/2026 |
200,500 |
200,500 |
22,055 |
1,000 |
21,055 |
||
|
2025 |
02/14/2025 |
204,000 |
199,526 |
21,947 |
1,000 |
20,947 |
||
|
2024 |
03/01/2024 |
202,500 |
193,715 |
21,308 |
1,000 |
20,308 |
||
|
2023 |
02/14/2023 |
140,500 |
140,500 |
15,455 |
1,000 |
14,455 |
||
|
2022 |
03/15/2022 |
123,500 |
112,434 |
12,365 |
0 |
12,365 |
||
| Property Building Permit History | ||||||
|---|---|---|---|---|---|---|
| Issued | Permit # | Provided by | Bldg # | Description | Est Construction Cost | Status |
|
5/1/1996 |
10260961 |
WARR ACRES |
1 |
Garage |
4,800 |
Inactive |
| Click button on building number to access detailed information: | ||||||
|---|---|---|---|---|---|---|
| Bldg # | Vacant/Improved Land | Bldg Description | Year Built | SqFt | # Stories | |
|
1 |
Improved |
Ranch 1 Story |
1946 |
1,168 |
1 Stories |
|