|
|
|
| Larry Stein Oklahoma County Assessor (405) 713-1200 - Public Access System |
|
|
|
|
|
|
| Real Property Display - Screen Produced 4/5/2026 5:31:15 AM | ||||
|---|---|---|---|---|
| Account: R189003850 | Type: Residential | Location: |
6107 NW 49TH ST |
|
| Building Name/Occupant: |
|
WARR ACRES |
||
| Owner Name 1: | WOJTEK ROBERT M |
Parcel PIN#: |
2861-18-900-3850 |
|
| Owner Name 2: | 1/4 section #: |
2861 |
||
| Owner Name 3: | Parent Acct: |
|
||
| Billing Address: | 6107 NW 49TH ST | Tax District: |
|
|
| City, State, Zip | WARR ACRES, OK 73122 | School System: |
Putnam City #1 |
|
|
Country: (If noted) |
Land Size: |
0.2324 Acres |
||
|
Land Value: 23,794 |
|
|||
|
Sect 16-T12N-R4W Qtr NE |
FERGUSONS PARK ADD
Block
002
Lot
000
|
|||
| Full Legal Description: FERGUSONS PARK ADD 002 000 LOT 22 & W 1/2 LOT 23 |
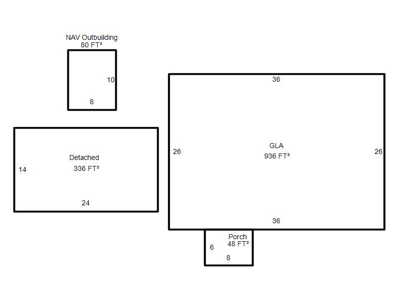
| Photo & Sketch (if available) | Comp Sales (ordered by relevancy) |
|
||||||||||||||||||
|
||||||||||||||||||||
| Value History (*The County Treasurer 405-713-1300 posts & collects actual tax amounts. Contact information HERE) | |||||||||||||
|---|---|---|---|---|---|---|---|---|---|---|---|---|---|
| Year | Market Value | Taxable Mkt Value | Gross Assessed | Exemption | Net Assessed | Millage | Est. Tax | Tax Savings | |||||
|
2026 |
117,000 |
85,344 |
9,387 |
1,000 |
8,387 |
115.77 |
$971 |
$519 |
|||||
|
2025 |
118,500 |
82,859 |
9,114 |
1,000 |
8,114 |
115.77 |
$939 |
$570 |
|||||
|
2024 |
118,000 |
80,446 |
8,848 |
1,000 |
7,848 |
114.25 |
$897 |
$586 |
|||||
|
2023 |
115,500 |
78,103 |
8,591 |
1,000 |
7,591 |
117.84 |
$895 |
$603 |
|||||
|
2022 |
98,500 |
75,829 |
8,339 |
1,000 |
7,339 |
120.40 |
$884 |
$421 |
|||||
| Property Account Status/Adjustments/Exemptions | ||
|---|---|---|
| Account # | Exemption Description | Amount |
|
R189003850 |
3% Cap Homestead |
0 |
|
R189003850 |
Homestead |
1,000 |
| Property Deed Transaction History (Recorded in the County Clerk's Office) | |||||||
|---|---|---|---|---|---|---|---|
| Date | Type | Book | Page | Price | Grantor | Grantee | |
|
1/17/2022 |
|
Deeds |
$0 |
WOJTEK ROBERT M & KAREN SUE |
WOJTEK ROBERT M |
||
|
9/1/1983 |
|
Historical |
$0 |
|
WOJTEK ROBERT M & KAREN SUE |
||
| Last Mailed Notice of Value (N.O.V.) Information/History | ||||||||
|---|---|---|---|---|---|---|---|---|
| Year | Date | Market Value | Taxable Market Value | Gross Assessed | Exemption | Net Assessed | ||
|
2026 |
02/23/2026 |
117,000 |
85,344 |
9,387 |
1,000 |
8,387 |
||
|
2025 |
02/14/2025 |
118,500 |
82,859 |
9,114 |
1,000 |
8,114 |
||
|
2024 |
02/13/2024 |
118,000 |
80,446 |
8,848 |
1,000 |
7,848 |
||
|
2023 |
02/14/2023 |
115,500 |
78,103 |
8,591 |
1,000 |
7,591 |
||
|
2022 |
03/15/2022 |
98,500 |
75,829 |
8,339 |
1,000 |
7,339 |
||
| Property Building Permit History | |||||||||||
|---|---|---|---|---|---|---|---|---|---|---|---|
| Issued | Permit # | Provided by | Bldg # | Description | Est Construction Cost | Status | |||||
| No Building Permit records returned. | |||||||||||
| Click button on building number to access detailed information: | ||||||
|---|---|---|---|---|---|---|
| Bldg # | Vacant/Improved Land | Bldg Description | Year Built | SqFt | # Stories | |
|
1 |
Improved |
Ranch 1 Story |
1946 |
936 |
1 Stories |
|