|
|
|
| Larry Stein Oklahoma County Assessor (405) 713-1200 - Public Access System |
|
|
|
|
|
|
| Real Property Display - Screen Produced 4/5/2026 5:31:15 AM | ||||
|---|---|---|---|---|
| Account: R189005700 | Type: Residential | Location: |
6042 NW 47TH ST |
|
| Building Name/Occupant: |
|
WARR ACRES |
||
| Owner Name 1: | KENYA LLC |
Parcel PIN#: |
2861-18-900-5700 |
|
| Owner Name 2: | 1/4 section #: |
2861 |
||
| Owner Name 3: | Parent Acct: |
|
||
| Billing Address: | 14812 GAILLARDIA LN | Tax District: |
|
|
| City, State, Zip | OKLAHOMA CITY, OK 73142-1860 | School System: |
Putnam City #1 |
|
|
Country: (If noted) |
Land Size: |
0.2324 Acres |
||
|
Land Value: 23,794 |
|
|||
|
Sect 16-T12N-R4W Qtr NE |
FERGUSONS PARK ADD
Block
006
Lot
006
|
|||
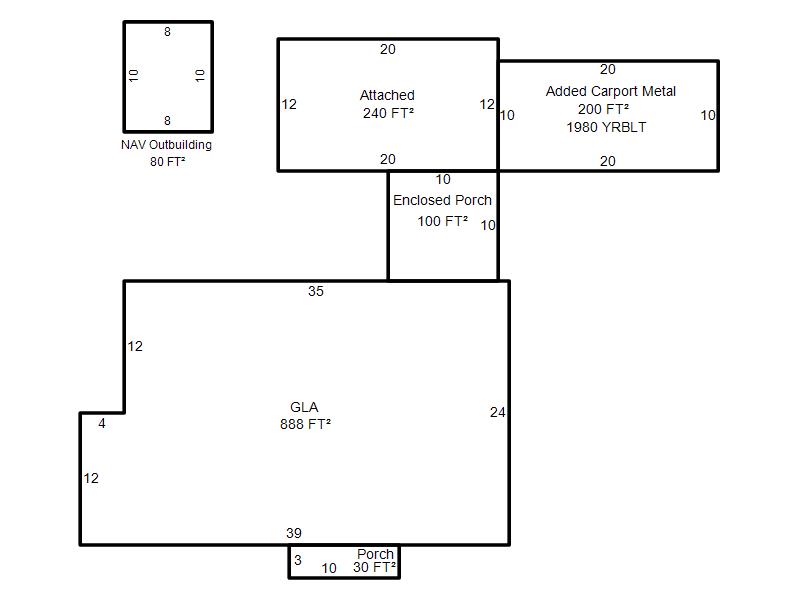
| Full Legal Description: FERGUSONS PARK ADD 006 006 W75FT |
| Photo & Sketch (if available) | Comp Sales (ordered by relevancy) |
|
||||||||||||||||||
|
||||||||||||||||||||
| Value History (*The County Treasurer 405-713-1300 posts & collects actual tax amounts. Contact information HERE) | |||||||||||||
|---|---|---|---|---|---|---|---|---|---|---|---|---|---|
| Year | Market Value | Taxable Mkt Value | Gross Assessed | Exemption | Net Assessed | Millage | Est. Tax | Tax Savings | |||||
|
2026 |
129,500 |
113,268 |
12,459 |
0 |
12,459 |
115.77 |
$1,442 |
$207 |
|||||
|
2025 |
132,000 |
107,875 |
11,866 |
0 |
11,866 |
115.77 |
$1,374 |
$307 |
|||||
|
2024 |
129,500 |
102,739 |
11,301 |
0 |
11,301 |
114.25 |
$1,291 |
$336 |
|||||
|
2023 |
125,000 |
97,847 |
10,762 |
0 |
10,762 |
117.84 |
$1,268 |
$352 |
|||||
|
2022 |
108,500 |
93,188 |
10,249 |
0 |
10,249 |
120.40 |
$1,234 |
$203 |
|||||
| Property Account Status/Adjustments/Exemptions | ||
|---|---|---|
| Account # | Exemption Description | Amount |
|
R189005700 |
5% Capped Account |
0 |
| Property Deed Transaction History (Recorded in the County Clerk's Office) | ||||||||||
|---|---|---|---|---|---|---|---|---|---|---|
| Date | Type | Book | Page | Price | Grantor | Grantee | ||||
|
5/1/2017 |
|
Deeds |
$55,000 |
FEDERAL NATIONAL MORTGAGE ASSOCIATION |
KENYA LLC |
|||||
|
1/24/2017 |
|
Hmstd Off & |
$0 |
MELTON ROBERT |
FEDERAL NATIONAL MORTGAGE ASSOCIATION |
|||||
|
6/26/2016 |
|
Hmstd Off & |
$0 |
ESTATE OF ROBERT D MELTON |
MELTON ROBERT |
|||||
|
3/24/2005 |
|
Deeds |
$0 |
BRINLEE RAMONA R |
MELTON ROBERT D |
|||||
|
4/17/2003 |
|
Deeds |
$0 |
MELTON ROBERT D YOUNGBLOOD RAMONA R |
MELTON ROBERT |
|||||
| Last Mailed Notice of Value (N.O.V.) Information/History | ||||||||
|---|---|---|---|---|---|---|---|---|
| Year | Date | Market Value | Taxable Market Value | Gross Assessed | Exemption | Net Assessed | ||
|
2026 |
02/23/2026 |
129,500 |
113,268 |
12,459 |
0 |
12,459 |
||
|
2025 |
02/14/2025 |
132,000 |
107,875 |
11,866 |
0 |
11,866 |
||
|
2024 |
02/13/2024 |
129,500 |
102,739 |
11,301 |
0 |
11,301 |
||
|
2023 |
02/14/2023 |
125,000 |
97,847 |
10,762 |
0 |
10,762 |
||
|
2022 |
03/15/2022 |
108,500 |
93,188 |
10,249 |
0 |
10,249 |
||
| Property Building Permit History | |||||||||||
|---|---|---|---|---|---|---|---|---|---|---|---|
| Issued | Permit # | Provided by | Bldg # | Description | Est Construction Cost | Status | |||||
| No Building Permit records returned. | |||||||||||
| Click button on building number to access detailed information: | ||||||
|---|---|---|---|---|---|---|
| Bldg # | Vacant/Improved Land | Bldg Description | Year Built | SqFt | # Stories | |
|
1 |
Improved |
Ranch 1 Story |
1947 |
888 |
1 Stories |
|