|
|
|
| Larry Stein Oklahoma County Assessor (405) 713-1200 - Public Access System |
|
|
|
|
|
|
| Real Property Display - Screen Produced 4/9/2026 7:24:12 AM | ||||
|---|---|---|---|---|
| Account: R171324550 | Type: Residential | Location: |
6305 NW 37TH ST |
|
| Building Name/Occupant: |
|
BETHANY |
||
| Owner Name 1: | GROOMS TRULA D |
Parcel PIN#: |
2862-17-132-4550 |
|
| Owner Name 2: | 1/4 section #: |
2862 |
||
| Owner Name 3: | Parent Acct: |
|
||
| Billing Address: | 6305 NW 37TH ST | Tax District: |
|
|
| City, State, Zip | BETHANY, OK 73008-3424 | School System: |
Bethany #88 |
|
|
Country: (If noted) |
Land Size: |
0.1860 Acres |
||
|
Land Value: 23,490 |
|
|||
|
Sect 16-T12N-R4W Qtr SE |
WEST PARK ADDITION
Block
005
Lot
006
|
|||
| Full Legal Description: WEST PARK ADDITION 005 006 E53 1/3FT OF W106 2/3FT |
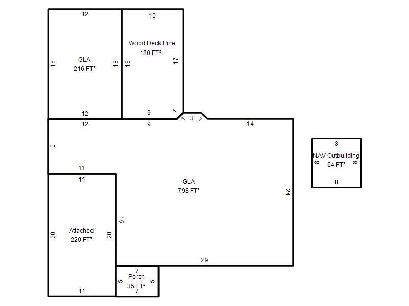
| Photo & Sketch (if available) | Comp Sales (ordered by relevancy) |
|
||||||||||||||||||
|
||||||||||||||||||||
| Value History (*The County Treasurer 405-713-1300 posts & collects actual tax amounts. Contact information HERE) | |||||||||||||
|---|---|---|---|---|---|---|---|---|---|---|---|---|---|
| Year | Market Value | Taxable Mkt Value | Gross Assessed | Exemption | Net Assessed | Millage | Est. Tax | Tax Savings | |||||
|
2026 |
161,000 |
115,597 |
12,715 |
1,000 |
11,715 |
134.21 |
$1,572 |
$804 |
|||||
|
2025 |
150,500 |
112,231 |
12,344 |
1,000 |
11,344 |
134.21 |
$1,523 |
$699 |
|||||
|
2024 |
165,000 |
108,963 |
11,985 |
1,000 |
10,985 |
134.68 |
$1,480 |
$965 |
|||||
|
2023 |
150,500 |
105,790 |
11,635 |
1,000 |
10,635 |
136.23 |
$1,449 |
$806 |
|||||
|
2022 |
132,500 |
102,709 |
11,297 |
1,000 |
10,297 |
120.01 |
$1,236 |
$513 |
|||||
| Property Account Status/Adjustments/Exemptions | ||
|---|---|---|
| Account # | Exemption Description | Amount |
|
R171324550 |
3% Cap Homestead |
0 |
|
R171324550 |
Homestead |
1,000 |
| Property Deed Transaction History (Recorded in the County Clerk's Office) | ||||||||||
|---|---|---|---|---|---|---|---|---|---|---|
| Date | Type | Book | Page | Price | Grantor | Grantee | ||||
|
3/25/2010 |
|
Deeds |
$85,000 |
CULLUM JOYCE B HARTPENCE SHERRI L |
GROOMS TRULA D |
|||||
|
11/14/2008 |
|
Deeds |
$0 |
CULLUM JOYCE B |
CULLUM JOYCE B HARTPENCE SHERRI L |
|||||
|
7/15/2006 |
|
Deeds |
$0 |
CULLUM JOYCE B CHAMBERS SHERRI LYNN |
CULLUM JOYCE B |
|||||
|
3/9/1995 |
|
Historical |
$0 |
CULLUM JOYCE B |
CULLUM JOYCE B |
|||||
|
4/7/1994 |
|
Historical |
$29,000 |
SALISBURY ROBERT LEE |
CULLUM JOYCE B |
|||||
| Last Mailed Notice of Value (N.O.V.) Information/History | ||||||||
|---|---|---|---|---|---|---|---|---|
| Year | Date | Market Value | Taxable Market Value | Gross Assessed | Exemption | Net Assessed | ||
|
2026 |
02/23/2026 |
161,000 |
115,597 |
12,715 |
1,000 |
11,715 |
||
|
2025 |
02/14/2025 |
150,500 |
112,231 |
12,344 |
1,000 |
11,344 |
||
|
2024 |
02/13/2024 |
165,000 |
108,963 |
11,985 |
1,000 |
10,985 |
||
|
2023 |
02/14/2023 |
150,500 |
105,790 |
11,635 |
1,000 |
10,635 |
||
|
2022 |
03/15/2022 |
132,500 |
102,709 |
11,297 |
1,000 |
10,297 |
||
| Property Building Permit History | ||||||
|---|---|---|---|---|---|---|
| Issued | Permit # | Provided by | Bldg # | Description | Est Construction Cost | Status |
|
9/9/1994 |
10255341 |
BETHANY |
1 |
Add On |
8,500 |
Inactive |
| Click button on building number to access detailed information: | ||||||
|---|---|---|---|---|---|---|
| Bldg # | Vacant/Improved Land | Bldg Description | Year Built | SqFt | # Stories | |
|
1 |
Improved |
Ranch 1 Story |
1947 |
1,014 |
1 Stories |
|