|
|
|
| Larry Stein Oklahoma County Assessor (405) 713-1200 - Public Access System |
|
|
|
|
|
|
| Real Property Display - Screen Produced 4/1/2026 7:41:50 AM | ||||
|---|---|---|---|---|
| Account: R170789200 | Type: Residential | Location: |
4507 N COLLEGE AVE |
|
| Building Name/Occupant: |
|
BETHANY |
||
| Owner Name 1: | FALKNER W BURT & ELIZABETH A TRS |
Parcel PIN#: |
2864-17-078-9200 |
|
| Owner Name 2: | FALKNER W BURT & ELIZABETH A LIVING TRUST | 1/4 section #: |
2864 |
|
| Owner Name 3: | Parent Acct: |
|
||
| Billing Address: | 4507 N COLLEGE AVE | Tax District: |
|
|
| City, State, Zip | BETHANY , OK 73008-2656 | School System: |
Bethany #88 |
|
|
Country: (If noted) |
Land Size: |
0.2571 Acres |
||
|
Land Value: 42,560 |
|
|||
|
Sect 16-T12N-R4W Qtr NW |
NORTHWEST TO BETHANY
Block
008
Lot
000
|
|||
| Full Legal Description: NORTHWEST TO BETHANY 008 000 PT BLK 8 BEG SE/C OF SD BLK TH W112.5FT N100FT E112.5FT S100FT TO BEG |
| Photo & Sketch (if available) | Comp Sales (ordered by relevancy) |
|
||||||||||||||||||
|
||||||||||||||||||||
| Value History (*The County Treasurer 405-713-1300 posts & collects actual tax amounts. Contact information HERE) | |||||||||||||
|---|---|---|---|---|---|---|---|---|---|---|---|---|---|
| Year | Market Value | Taxable Mkt Value | Gross Assessed | Exemption | Net Assessed | Millage | Est. Tax | Tax Savings | |||||
|
2026 |
332,000 |
295,154 |
32,466 |
1,000 |
31,466 |
134.21 |
$4,223 |
$678 |
|||||
|
2025 |
347,000 |
286,558 |
31,521 |
1,000 |
30,521 |
134.21 |
$4,096 |
$1,027 |
|||||
|
2024 |
349,500 |
278,212 |
30,602 |
1,000 |
29,602 |
134.68 |
$3,987 |
$1,191 |
|||||
|
2023 |
354,500 |
270,109 |
29,711 |
1,000 |
28,711 |
136.23 |
$3,911 |
$1,401 |
|||||
|
2022 |
312,000 |
262,242 |
28,845 |
1,000 |
27,845 |
120.01 |
$3,342 |
$777 |
|||||
| Property Account Status/Adjustments/Exemptions | ||
|---|---|---|
| Account # | Exemption Description | Amount |
|
R170789200 |
3% Cap Homestead |
0 |
|
R170789200 |
Homestead |
1,000 |
| Property Deed Transaction History (Recorded in the County Clerk's Office) | |||||||
|---|---|---|---|---|---|---|---|
| Date | Type | Book | Page | Price | Grantor | Grantee | |
|
8/7/2018 |
|
Deeds |
$0 |
FALKNER W BURT & ELIZABETH A |
FALKNER W BURT & ELIZABETH A TRS |
||
|
4/30/2001 |
|
Deeds |
$180,000 |
TOMPKINS FAMILY LIVING TRUST |
FALKNER W BURT & ELIZABETH A |
||
|
1/23/1990 |
|
Historical |
$0 |
TOMPKINS J A & EUNICE |
TOMPKINS FAMILY LIVING TRUST |
||
|
8/1/1978 |
|
Historical |
$0 |
|
TOMPKINS J A & EUNICE |
||
| Last Mailed Notice of Value (N.O.V.) Information/History | ||||||||
|---|---|---|---|---|---|---|---|---|
| Year | Date | Market Value | Taxable Market Value | Gross Assessed | Exemption | Net Assessed | ||
|
2026 |
02/23/2026 |
332,000 |
295,154 |
32,466 |
1,000 |
31,466 |
||
|
2025 |
02/14/2025 |
347,000 |
286,558 |
31,521 |
1,000 |
30,521 |
||
|
2024 |
02/13/2024 |
349,500 |
278,212 |
30,602 |
1,000 |
29,602 |
||
|
2023 |
02/14/2023 |
354,500 |
270,109 |
29,711 |
1,000 |
28,711 |
||
|
2022 |
03/15/2022 |
312,000 |
262,242 |
28,845 |
1,000 |
27,845 |
||
| Property Building Permit History | |||||||||||
|---|---|---|---|---|---|---|---|---|---|---|---|
| Issued | Permit # | Provided by | Bldg # | Description | Est Construction Cost | Status | |||||
| No Building Permit records returned. | |||||||||||
| Click button on building number to access detailed information: | ||||||
|---|---|---|---|---|---|---|
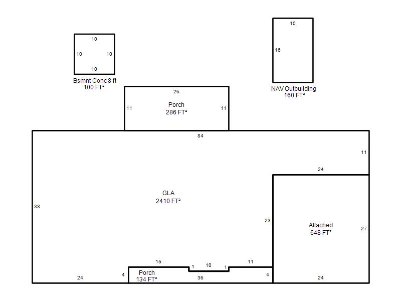
| Bldg # | Vacant/Improved Land | Bldg Description | Year Built | SqFt | # Stories | |
|
1 |
Improved |
Ranch 1 Story |
1983 |
2,410 |
1 Stories |
|