|
|
|
| Larry Stein Oklahoma County Assessor (405) 713-1200 - Public Access System |
|
|
|
|
|
|
| Real Property Display - Screen Produced 4/5/2026 12:07:11 AM | ||||
|---|---|---|---|---|
| Account: R172801800 | Type: Residential | Location: |
7211 NW 43RD ST |
|
| Building Name/Occupant: |
|
BETHANY |
||
| Owner Name 1: | WRIGHT LESLIE F REV TRUST |
Parcel PIN#: |
2865-17-280-1800 |
|
| Owner Name 2: | 1/4 section #: |
2865 |
||
| Owner Name 3: | Parent Acct: |
|
||
| Billing Address: | 6108 BEAVER CREEK RD | Tax District: |
|
|
| City, State, Zip | OKLAHOMA CITY, OK 73162-3412 | School System: |
Putnam City #1 |
|
|
Country: (If noted) |
Land Size: |
0.1286 Acres |
||
|
Land Value: 16,800 |
|
|||
|
Sect 17-T12N-R4W Qtr NE |
HATHAWAY FIFTH ADD
Block
002
Lot
001
|
|||
| Full Legal Description: HATHAWAY FIFTH ADD 002 001 |
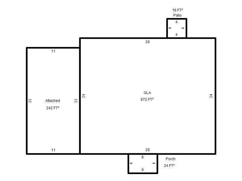
| Photo & Sketch (if available) | Comp Sales (ordered by relevancy) |
|
||||||||||||||||||
|
||||||||||||||||||||
| Value History (*The County Treasurer 405-713-1300 posts & collects actual tax amounts. Contact information HERE) | |||||||||||||
|---|---|---|---|---|---|---|---|---|---|---|---|---|---|
| Year | Market Value | Taxable Mkt Value | Gross Assessed | Exemption | Net Assessed | Millage | Est. Tax | Tax Savings | |||||
|
2026 |
124,500 |
111,895 |
12,308 |
0 |
12,308 |
122.14 |
$1,503 |
$169 |
|||||
|
2025 |
122,500 |
106,567 |
11,722 |
0 |
11,722 |
122.14 |
$1,432 |
$214 |
|||||
|
2024 |
122,500 |
101,493 |
11,163 |
0 |
11,163 |
120.52 |
$1,346 |
$278 |
|||||
|
2023 |
117,500 |
96,660 |
10,632 |
0 |
10,632 |
123.06 |
$1,308 |
$282 |
|||||
|
2022 |
103,500 |
92,058 |
10,126 |
0 |
10,126 |
112.54 |
$1,140 |
$142 |
|||||
| Property Account Status/Adjustments/Exemptions | ||
|---|---|---|
| Account # | Exemption Description | Amount |
|
R172801800 |
5% Capped Account |
0 |
| Property Deed Transaction History (Recorded in the County Clerk's Office) | |||||||
|---|---|---|---|---|---|---|---|
| Date | Type | Book | Page | Price | Grantor | Grantee | |
|
10/8/2013 |
|
Other |
$0 |
MCKINLEY DIANA L |
WRIGHT LESLIE F REV TRUST |
||
|
2/4/1999 |
|
Historical |
$0 |
MIX CYRIL KENNETH & BETTY JANE |
MCKINLEY DIANA L |
||
|
12/16/1998 |
|
Historical |
$35,000 |
MIX BETTY JANE |
MCKINLEY DIANA L |
||
|
11/1/1980 |
|
Historical |
$0 |
|
MIX CYRIL KENNETH & BETTY JANE |
||
| Last Mailed Notice of Value (N.O.V.) Information/History | ||||||||
|---|---|---|---|---|---|---|---|---|
| Year | Date | Market Value | Taxable Market Value | Gross Assessed | Exemption | Net Assessed | ||
|
2026 |
02/23/2026 |
124,500 |
111,895 |
12,308 |
0 |
12,308 |
||
|
2025 |
02/14/2025 |
122,500 |
106,567 |
11,722 |
0 |
11,722 |
||
|
2024 |
02/13/2024 |
122,500 |
101,493 |
11,163 |
0 |
11,163 |
||
|
2023 |
02/14/2023 |
117,500 |
96,660 |
10,632 |
0 |
10,632 |
||
|
2022 |
03/15/2022 |
103,500 |
92,058 |
10,126 |
0 |
10,126 |
||
| Property Building Permit History | |||||||||||
|---|---|---|---|---|---|---|---|---|---|---|---|
| Issued | Permit # | Provided by | Bldg # | Description | Est Construction Cost | Status | |||||
| No Building Permit records returned. | |||||||||||
| Click button on building number to access detailed information: | ||||||
|---|---|---|---|---|---|---|
| Bldg # | Vacant/Improved Land | Bldg Description | Year Built | SqFt | # Stories | |
|
1 |
Improved |
Ranch 1 Story |
1950 |
672 |
1 Stories |
|