|
|
|
| Larry Stein Oklahoma County Assessor (405) 713-1200 - Public Access System |
|
|
|
|
|
|
| Real Property Display - Screen Produced 4/5/2026 12:07:11 AM | ||||
|---|---|---|---|---|
| Account: R172802400 | Type: Residential | Location: |
7223 NW 43RD ST |
|
| Building Name/Occupant: |
|
BETHANY |
||
| Owner Name 1: | MCLAIN WESLEY E & NAOMI N |
Parcel PIN#: |
2865-17-280-2400 |
|
| Owner Name 2: | 1/4 section #: |
2865 |
||
| Owner Name 3: | Parent Acct: |
|
||
| Billing Address: | 7223 NW 43RD ST | Tax District: |
|
|
| City, State, Zip | BETHANY, OK 73008-2305 | School System: |
Putnam City #1 |
|
|
Country: (If noted) |
Land Size: |
0.1607 Acres |
||
|
Land Value: 21,000 |
|
|||
|
Sect 17-T12N-R4W Qtr NE |
HATHAWAY FIFTH ADD
Block
002
Lot
007
|
|||
| Full Legal Description: HATHAWAY FIFTH ADD 002 007 |
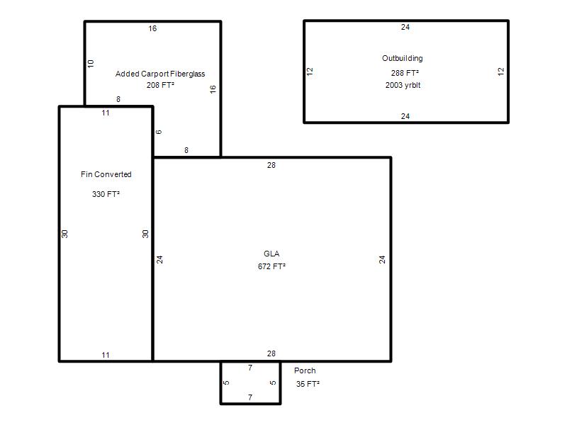
| Photo & Sketch (if available) | Comp Sales (ordered by relevancy) |
|
||||||||||||||||||
|
||||||||||||||||||||
| Value History (*The County Treasurer 405-713-1300 posts & collects actual tax amounts. Contact information HERE) | |||||||||||||
|---|---|---|---|---|---|---|---|---|---|---|---|---|---|
| Year | Market Value | Taxable Mkt Value | Gross Assessed | Exemption | Net Assessed | Millage | Est. Tax | Tax Savings | |||||
|
2026 |
149,500 |
129,316 |
14,224 |
0 |
14,224 |
122.14 |
$1,737 |
$271 |
|||||
|
2025 |
141,000 |
123,159 |
13,547 |
0 |
13,547 |
122.14 |
$1,655 |
$240 |
|||||
|
2024 |
142,000 |
117,295 |
12,902 |
0 |
12,902 |
120.52 |
$1,555 |
$328 |
|||||
|
2023 |
135,000 |
111,710 |
12,288 |
0 |
12,288 |
123.06 |
$1,512 |
$315 |
|||||
|
2022 |
119,000 |
106,391 |
11,702 |
0 |
11,702 |
112.54 |
$1,317 |
$156 |
|||||
| Property Account Status/Adjustments/Exemptions | ||
|---|---|---|
| Account # | Exemption Description | Amount |
|
R172802400 |
5% Capped Account |
0 |
| Property Deed Transaction History (Recorded in the County Clerk's Office) | |||||||
|---|---|---|---|---|---|---|---|
| Date | Type | Book | Page | Price | Grantor | Grantee | |
|
3/2/2006 |
|
Deeds |
$89,000 |
RUCKER ROBERT H & TERESA L |
MCLAIN WESLEY E & NAOMI N |
||
|
8/23/2005 |
|
Deeds |
$33,000 |
SCHNORR JAMES W & KIMBERLY K |
RUCKER ROBERT H & TERESA L |
||
|
1/23/2002 |
|
Deeds |
$0 |
SCHNORR JAMES WARREN |
SCHNORR JAMES W & KIMBERLY K |
||
|
12/15/2000 |
|
Deeds |
$0 |
SCHNORR WARREN & TAMARA |
SCHNORR JAMES WARREN |
||
|
2/1/1979 |
|
Historical |
$0 |
|
SCHNORR WARREN & TAMARA |
||
| Last Mailed Notice of Value (N.O.V.) Information/History | ||||||||
|---|---|---|---|---|---|---|---|---|
| Year | Date | Market Value | Taxable Market Value | Gross Assessed | Exemption | Net Assessed | ||
|
2026 |
02/23/2026 |
149,500 |
129,316 |
14,224 |
0 |
14,224 |
||
|
2025 |
02/14/2025 |
141,000 |
123,159 |
13,547 |
0 |
13,547 |
||
|
2024 |
02/13/2024 |
142,000 |
117,295 |
12,902 |
0 |
12,902 |
||
|
2023 |
02/14/2023 |
135,000 |
111,710 |
12,288 |
0 |
12,288 |
||
|
2022 |
03/15/2022 |
119,000 |
106,391 |
11,702 |
0 |
11,702 |
||
| Property Building Permit History | ||||||
|---|---|---|---|---|---|---|
| Issued | Permit # | Provided by | Bldg # | Description | Est Construction Cost | Status |
|
10/29/2003 |
10283158 |
BETHANY |
1 |
Remodeled |
2,004 |
Inactive |
| Click button on building number to access detailed information: | ||||||
|---|---|---|---|---|---|---|
| Bldg # | Vacant/Improved Land | Bldg Description | Year Built | SqFt | # Stories | |
|
1 |
Improved |
Ranch 1 Story |
1950 |
672 |
1 Stories |
|