|
|
|
| Larry Stein Oklahoma County Assessor (405) 713-1200 - Public Access System |
|
|
|
|
|
|
| Real Property Display - Screen Produced 4/5/2026 12:07:12 AM | ||||
|---|---|---|---|---|
| Account: R172803300 | Type: Residential | Location: |
7224 NW 43RD ST |
|
| Building Name/Occupant: |
|
BETHANY |
||
| Owner Name 1: | KELLER JENNIFER L |
Parcel PIN#: |
2865-17-280-3300 |
|
| Owner Name 2: | 1/4 section #: |
2865 |
||
| Owner Name 3: | Parent Acct: |
|
||
| Billing Address: | 7224 NW 43RD ST | Tax District: |
|
|
| City, State, Zip | BETHANY, OK 73008-2306 | School System: |
Putnam City #1 |
|
|
Country: (If noted) |
Land Size: |
0.1607 Acres |
||
|
Land Value: 21,000 |
|
|||
|
Sect 17-T12N-R4W Qtr NE |
HATHAWAY FIFTH ADD
Block
003
Lot
008
|
|||
| Full Legal Description: HATHAWAY FIFTH ADD 003 008 |
| Photo & Sketch (if available) | Comp Sales (ordered by relevancy) |
|
||||||||||||||||||
|
||||||||||||||||||||
| Value History (*The County Treasurer 405-713-1300 posts & collects actual tax amounts. Contact information HERE) | |||||||||||||
|---|---|---|---|---|---|---|---|---|---|---|---|---|---|
| Year | Market Value | Taxable Mkt Value | Gross Assessed | Exemption | Net Assessed | Millage | Est. Tax | Tax Savings | |||||
|
2026 |
103,000 |
69,914 |
7,689 |
1,000 |
6,689 |
122.14 |
$817 |
$567 |
|||||
|
2025 |
97,500 |
67,878 |
7,466 |
2,000 |
5,466 |
122.14 |
$668 |
$642 |
|||||
|
2024 |
95,500 |
65,901 |
7,249 |
2,000 |
5,249 |
120.52 |
$633 |
$633 |
|||||
|
2023 |
90,000 |
63,982 |
7,037 |
2,000 |
5,037 |
123.06 |
$620 |
$598 |
|||||
|
2022 |
77,000 |
62,119 |
6,833 |
2,000 |
4,833 |
112.54 |
$544 |
$409 |
|||||
| Property Account Status/Adjustments/Exemptions | ||
|---|---|---|
| Account # | Exemption Description | Amount |
|
R172803300 |
3% Cap Homestead |
0 |
|
R172803300 |
Homestead |
1,000 |
| Property Deed Transaction History (Recorded in the County Clerk's Office) | |||||||
|---|---|---|---|---|---|---|---|
| Date | Type | Book | Page | Price | Grantor | Grantee | |
|
7/25/2000 |
|
Deeds |
$44,000 |
WALKER GLEN |
KELLER JENNIFER L |
||
|
3/28/2000 |
|
Other |
$0 |
SECRETARY OF HOUSING & URBAN DEV |
WALKER GLEN |
||
|
10/27/1999 |
|
Other |
$0 |
LAWRENCE DARREN L |
SECRETARY OF HOUSING & URBAN DEV |
||
|
10/3/1994 |
|
Historical |
$25,500 |
RUIZ MANUEL D & SUZAN ANNETTE |
LAWRENCE DARREN L |
||
|
2/1/1982 |
|
Historical |
$0 |
|
RUIZ MANUEL D & SUZAN ANNETTE |
||
| Last Mailed Notice of Value (N.O.V.) Information/History | ||||||||
|---|---|---|---|---|---|---|---|---|
| Year | Date | Market Value | Taxable Market Value | Gross Assessed | Exemption | Net Assessed | ||
|
2026 |
02/23/2026 |
103,000 |
69,914 |
7,689 |
1,000 |
6,689 |
||
|
2025 |
02/14/2025 |
97,500 |
67,878 |
7,466 |
2,000 |
5,466 |
||
|
2024 |
02/13/2024 |
95,500 |
65,901 |
7,249 |
2,000 |
5,249 |
||
|
2023 |
02/14/2023 |
90,000 |
63,982 |
7,037 |
2,000 |
5,037 |
||
|
2022 |
03/15/2022 |
77,000 |
62,119 |
6,833 |
2,000 |
4,833 |
||
| Property Building Permit History | |||||||||||
|---|---|---|---|---|---|---|---|---|---|---|---|
| Issued | Permit # | Provided by | Bldg # | Description | Est Construction Cost | Status | |||||
| No Building Permit records returned. | |||||||||||
| Click button on building number to access detailed information: | ||||||
|---|---|---|---|---|---|---|
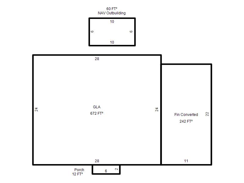
| Bldg # | Vacant/Improved Land | Bldg Description | Year Built | SqFt | # Stories | |
|
1 |
Improved |
Ranch 1 Story |
1950 |
672 |
1 Stories |
|