|
|
|
| Larry Stein Oklahoma County Assessor (405) 713-1200 - Public Access System |
|
|
|
|
|
|
| Real Property Display - Screen Produced 4/3/2026 4:04:58 AM | ||||
|---|---|---|---|---|
| Account: R175330860 | Type: Residential | Location: |
3817 N BRYAN AVE |
|
| Building Name/Occupant: |
|
BETHANY |
||
| Owner Name 1: | LOFGREN CHARLES W & FREIDA D |
Parcel PIN#: |
2870-17-533-0860 |
|
| Owner Name 2: | 1/4 section #: |
2870 |
||
| Owner Name 3: | Parent Acct: |
|
||
| Billing Address: | 3817 N BRYAN AVE | Tax District: |
|
|
| City, State, Zip | BETHANY, OK 73008-3001 | School System: |
Putnam City #1 |
|
|
Country: (If noted) |
Land Size: |
0.1736 Acres |
||
|
Land Value: 32,886 |
|
|||
|
Sect 18-T12N-R4W Qtr SE |
ROYCE BROWNS RIVIERA
Block
007
Lot
004
|
|||
| Full Legal Description: ROYCE BROWNS RIVIERA 007 004 |
| Photo & Sketch (if available) | Comp Sales (ordered by relevancy) |
|
||||||||||||||||||
|
||||||||||||||||||||
| Value History (*The County Treasurer 405-713-1300 posts & collects actual tax amounts. Contact information HERE) | |||||||||||||
|---|---|---|---|---|---|---|---|---|---|---|---|---|---|
| Year | Market Value | Taxable Mkt Value | Gross Assessed | Exemption | Net Assessed | Millage | Est. Tax | Tax Savings | |||||
| No PropertyValuation records returned. | |||||||||||||
| Property Account Status/Adjustments/Exemptions | ||
|---|---|---|
| Account # | Exemption Description | Amount |
|
R175330860 |
3% Cap Homestead |
0 |
|
R175330860 |
Homestead |
1,000 |
| Property Deed Transaction History (Recorded in the County Clerk's Office) | |||||||
|---|---|---|---|---|---|---|---|
| Date | Type | Book | Page | Price | Grantor | Grantee | |
|
3/24/2003 |
|
Deeds |
$89,500 |
SPANGLER TRUST NO 1 |
LOFGREN CHARLES W & FREIDA D |
||
|
3/18/1991 |
|
Historical |
$0 |
SPANGLER H O & LOVA |
SPANGLER TRUST NO 1 |
||
|
11/11/1911 |
|
Historical |
$0 |
|
SPANGLER H O & LOVA |
||
| Last Mailed Notice of Value (N.O.V.) Information/History | ||||||||
|---|---|---|---|---|---|---|---|---|
| Year | Date | Market Value | Taxable Market Value | Gross Assessed | Exemption | Net Assessed | ||
| No Notice of Value N.O.V. records returned. | ||||||||
| Property Building Permit History | |||||||||||
|---|---|---|---|---|---|---|---|---|---|---|---|
| Issued | Permit # | Provided by | Bldg # | Description | Est Construction Cost | Status | |||||
| No Building Permit records returned. | |||||||||||
| Click button on building number to access detailed information: | ||||||
|---|---|---|---|---|---|---|
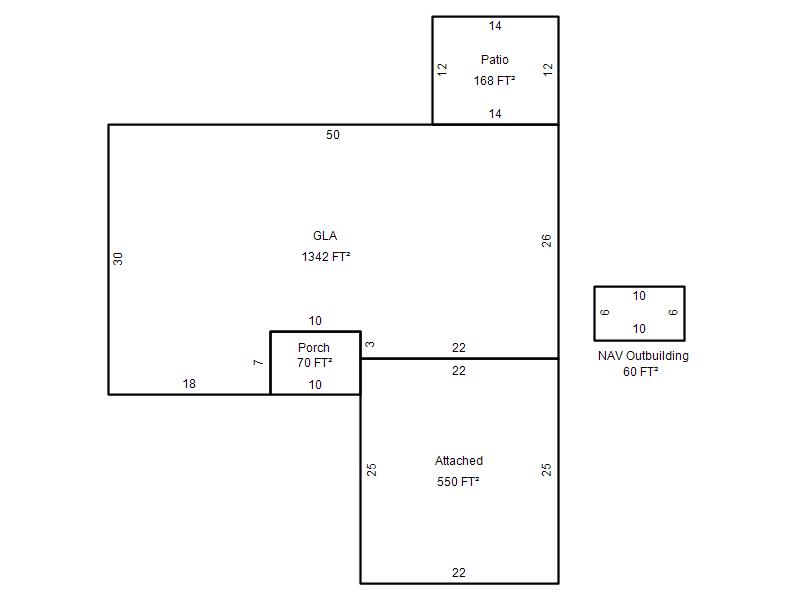
| Bldg # | Vacant/Improved Land | Bldg Description | Year Built | SqFt | # Stories | |
|
1 |
Improved |
Ranch 1 Story |
1967 |
1,342 |
1 Stories |
|