|
|
|
| Larry Stein Oklahoma County Assessor (405) 713-1200 - Public Access System |
|
|
|
|
|
|
| Real Property Display - Screen Produced 4/8/2026 8:10:37 AM | ||||
|---|---|---|---|---|
| Account: R176591135 | Type: Residential | Location: |
7619 NW 34TH ST |
|
| Building Name/Occupant: |
|
BETHANY |
||
| Owner Name 1: | WYMAN MARY L |
Parcel PIN#: |
2880-17-659-1135 |
|
| Owner Name 2: | WYMAN DAVID L | 1/4 section #: |
2880 |
|
| Owner Name 3: | Parent Acct: |
|
||
| Billing Address: | 7619 NW 34TH ST | Tax District: |
|
|
| City, State, Zip | BETHANY, OK 73008 | School System: |
Putnam City #1 |
|
|
Country: (If noted) |
Land Size: |
0.4000 Acres |
||
|
Land Value: 10,185 |
|
|||
|
Sect 20-T12N-R4W Qtr NW |
ALLEN STANTON ADD
Block
003
Lot
001
|
|||
| Full Legal Description: ALLEN STANTON ADD 003 001 |
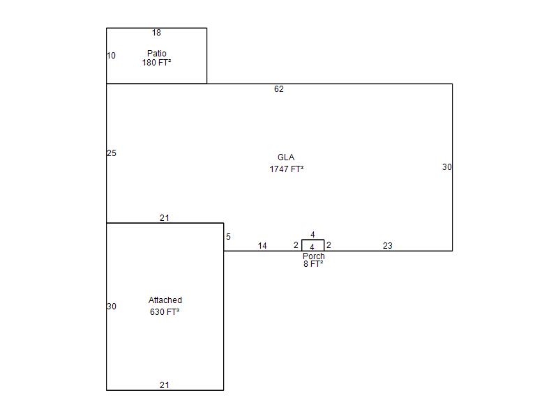
| Photo & Sketch (if available) | Comp Sales (ordered by relevancy) |
|
||||||||||||||||||
|
||||||||||||||||||||
| Value History (*The County Treasurer 405-713-1300 posts & collects actual tax amounts. Contact information HERE) | |||||||||||||
|---|---|---|---|---|---|---|---|---|---|---|---|---|---|
| Year | Market Value | Taxable Mkt Value | Gross Assessed | Exemption | Net Assessed | Millage | Est. Tax | Tax Savings | |||||
|
2026 |
233,000 |
89,971 |
9,896 |
1,000 |
8,896 |
122.14 |
$1,087 |
$2,044 |
|||||
|
2025 |
250,000 |
89,971 |
9,896 |
1,000 |
8,896 |
122.14 |
$1,087 |
$2,272 |
|||||
|
2024 |
245,500 |
89,971 |
9,896 |
1,000 |
8,896 |
120.52 |
$1,072 |
$2,182 |
|||||
|
2023 |
226,500 |
89,971 |
9,896 |
1,000 |
8,896 |
123.06 |
$1,095 |
$1,971 |
|||||
|
2022 |
201,000 |
89,971 |
9,896 |
1,000 |
8,896 |
112.54 |
$1,001 |
$1,487 |
|||||
| Property Account Status/Adjustments/Exemptions | ||
|---|---|---|
| Account # | Exemption Description | Amount |
|
R176591135 |
Freeze Senior Valuation |
0 |
|
R176591135 |
3% Cap Homestead |
0 |
|
R176591135 |
Homestead |
1,000 |
| Property Deed Transaction History (Recorded in the County Clerk's Office) | |||||||
|---|---|---|---|---|---|---|---|
| Date | Type | Book | Page | Price | Grantor | Grantee | |
|
3/9/2010 |
|
Deeds |
$0 |
WYMAN MARY L |
WYMAN MARY L |
||
|
9/15/1995 |
|
Historical |
$0 |
WYMAN RUSSELL L & MARY L |
WYMAN MARY L |
||
|
11/11/1911 |
|
Historical |
$0 |
|
WYMAN RUSSELL L & MARY L |
||
| Last Mailed Notice of Value (N.O.V.) Information/History | ||||||||
|---|---|---|---|---|---|---|---|---|
| Year | Date | Market Value | Taxable Market Value | Gross Assessed | Exemption | Net Assessed | ||
|
2025 |
02/14/2025 |
250,000 |
89,971 |
9,896 |
1,000 |
8,896 |
||
|
2024 |
02/13/2024 |
245,500 |
89,971 |
9,896 |
1,000 |
8,896 |
||
|
2023 |
02/14/2023 |
226,500 |
89,971 |
9,896 |
1,000 |
8,896 |
||
|
2022 |
03/15/2022 |
201,000 |
89,971 |
9,896 |
1,000 |
8,896 |
||
|
2021 |
03/19/2021 |
168,500 |
89,971 |
9,896 |
1,000 |
8,896 |
||
| Property Building Permit History | |||||||||||
|---|---|---|---|---|---|---|---|---|---|---|---|
| Issued | Permit # | Provided by | Bldg # | Description | Est Construction Cost | Status | |||||
| No Building Permit records returned. | |||||||||||
| Click button on building number to access detailed information: | ||||||
|---|---|---|---|---|---|---|
| Bldg # | Vacant/Improved Land | Bldg Description | Year Built | SqFt | # Stories | |
|
1 |
Improved |
Ranch 1 Story |
1972 |
1,747 |
1 Stories |
|