|
|
|
| Larry Stein Oklahoma County Assessor (405) 713-1200 - Public Access System |
|
|
|
|
|
|
| Real Property Display - Screen Produced 4/1/2026 10:41:39 AM | ||||
|---|---|---|---|---|
| Account: R172564700 | Type: Residential | Location: |
6609 NW 32ND ST |
|
| Building Name/Occupant: |
|
BETHANY |
||
| Owner Name 1: | HORSLEY CHARLES |
Parcel PIN#: |
2884-17-256-4700 |
|
| Owner Name 2: | 1/4 section #: |
2884 |
||
| Owner Name 3: | Parent Acct: |
|
||
| Billing Address: | PO BOX 987 | Tax District: |
|
|
| City, State, Zip | BETHANY, OK 73008-0987 | School System: |
Putnam City #1 |
|
|
Country: (If noted) |
Land Size: |
0.1887 Acres |
||
|
Land Value: 19,728 |
|
|||
|
Sect 21-T12N-R4W Qtr NW |
BEDNAR SECOND ADD
Block
005
Lot
015
|
|||
| Full Legal Description: BEDNAR SECOND ADD 005 015 |
| Photo & Sketch (if available) | Comp Sales (ordered by relevancy) |
|
||||||||||||||||||
|
||||||||||||||||||||
| Value History (*The County Treasurer 405-713-1300 posts & collects actual tax amounts. Contact information HERE) | |||||||||||||
|---|---|---|---|---|---|---|---|---|---|---|---|---|---|
| Year | Market Value | Taxable Mkt Value | Gross Assessed | Exemption | Net Assessed | Millage | Est. Tax | Tax Savings | |||||
|
2026 |
111,500 |
95,680 |
10,524 |
0 |
10,524 |
122.14 |
$1,285 |
$213 |
|||||
|
2025 |
113,000 |
91,124 |
10,023 |
0 |
10,023 |
122.14 |
$1,224 |
$294 |
|||||
|
2024 |
112,000 |
86,785 |
9,545 |
0 |
9,545 |
120.52 |
$1,151 |
$334 |
|||||
|
2023 |
106,500 |
82,653 |
9,090 |
0 |
9,090 |
123.06 |
$1,119 |
$323 |
|||||
|
2022 |
91,500 |
78,718 |
8,658 |
0 |
8,658 |
112.54 |
$974 |
$158 |
|||||
| Property Account Status/Adjustments/Exemptions | ||
|---|---|---|
| Account # | Exemption Description | Amount |
|
R172564700 |
5% Capped Account |
0 |
| Property Deed Transaction History (Recorded in the County Clerk's Office) | |||||||
|---|---|---|---|---|---|---|---|
| Date | Type | Book | Page | Price | Grantor | Grantee | |
|
8/16/2016 |
|
Deeds |
$69,000 |
JONES EUGENE CO TRS DUMAS RENEA L CO TRS |
HORSLEY CHARLES |
||
|
1/23/2002 |
|
Deeds |
$0 |
AFFIDAVIT OF SURVIVING JOINT TENANT |
JONES JONES EUGENE AKA CLARENCE E JONES |
||
|
1/17/2002 |
|
Deeds |
$0 |
MEMORANDUM OF TRUST |
JONES EUGENE CO TRS & DUMAS RENEA L CO TRS |
||
|
1/17/2002 |
|
Deeds |
$0 |
CLARENCE E JONES AKA EUGENE JONES |
JONES EUGENE CO TRS & DUMAS RENEA L CO TRS |
||
|
3/1/1978 |
|
Historical |
$0 |
|
JONES CLARENCE E & LINDA M |
||
| Last Mailed Notice of Value (N.O.V.) Information/History | ||||||||
|---|---|---|---|---|---|---|---|---|
| Year | Date | Market Value | Taxable Market Value | Gross Assessed | Exemption | Net Assessed | ||
|
2026 |
02/23/2026 |
111,500 |
95,680 |
10,524 |
0 |
10,524 |
||
|
2025 |
02/14/2025 |
113,000 |
91,124 |
10,023 |
0 |
10,023 |
||
|
2024 |
02/13/2024 |
112,000 |
86,785 |
9,545 |
0 |
9,545 |
||
|
2023 |
02/14/2023 |
106,500 |
82,653 |
9,090 |
0 |
9,090 |
||
|
2022 |
03/15/2022 |
91,500 |
78,718 |
8,658 |
0 |
8,658 |
||
| Property Building Permit History | |||||||||||
|---|---|---|---|---|---|---|---|---|---|---|---|
| Issued | Permit # | Provided by | Bldg # | Description | Est Construction Cost | Status | |||||
| No Building Permit records returned. | |||||||||||
| Click button on building number to access detailed information: | ||||||
|---|---|---|---|---|---|---|
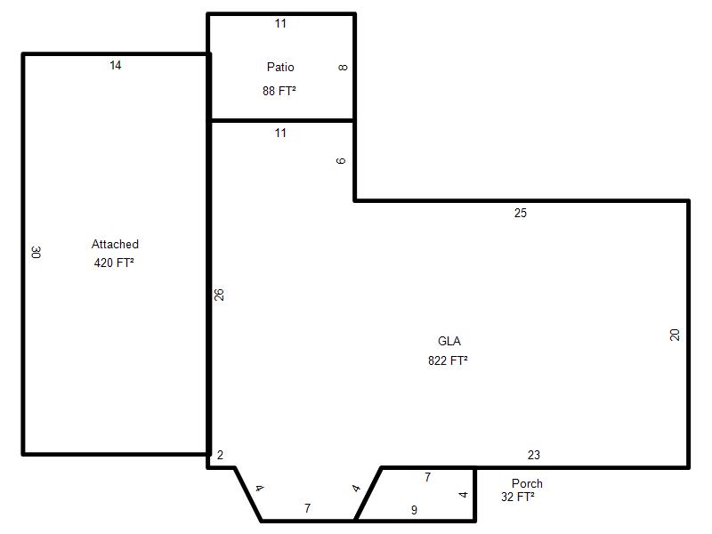
| Bldg # | Vacant/Improved Land | Bldg Description | Year Built | SqFt | # Stories | |
|
1 |
Improved |
Ranch 1 Story |
1957 |
822 |
1 Stories |
|