|
|
|
| Larry Stein Oklahoma County Assessor (405) 713-1200 - Public Access System |
|
|
|
|
|
|
| Real Property Display - Screen Produced 4/9/2026 2:01:21 PM | ||||
|---|---|---|---|---|
| Account: R145861645 | Type: Residential | Location: |
4924 NW 32ND ST |
|
| Building Name/Occupant: |
|
OKLAHOMA CITY |
||
| Owner Name 1: | FISHER ADOLPH ADAM & ELLEN KAY |
Parcel PIN#: |
2888-14-586-1645 |
|
| Owner Name 2: | 1/4 section #: |
2888 |
||
| Owner Name 3: | Parent Acct: |
|
||
| Billing Address: | 4924 NW 32ND ST | Tax District: |
|
|
| City, State, Zip | OKLAHOMA CITY, OK 73122 | School System: |
Putnam City #1 |
|
|
Country: (If noted) |
Land Size: |
0.3814 Acres |
||
|
Land Value: 63,133 |
|
|||
|
Sect 22-T12N-R4W Qtr NW |
MERIDIAN HILLS
Block
004
Lot
007
|
|||
| Full Legal Description: MERIDIAN HILLS 004 007 |
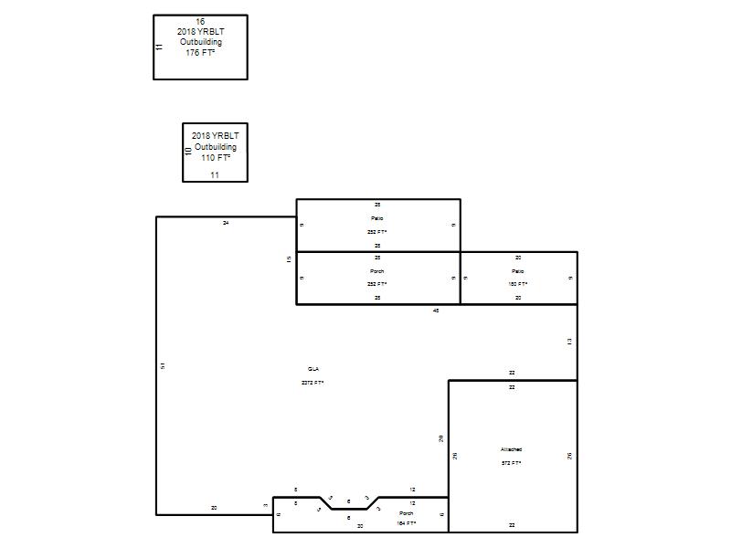
| Photo & Sketch (if available) | Comp Sales (ordered by relevancy) |
|
||||||||||||||||||
|
||||||||||||||||||||
| Value History (*The County Treasurer 405-713-1300 posts & collects actual tax amounts. Contact information HERE) | |||||||||||||
|---|---|---|---|---|---|---|---|---|---|---|---|---|---|
| Year | Market Value | Taxable Mkt Value | Gross Assessed | Exemption | Net Assessed | Millage | Est. Tax | Tax Savings | |||||
|
2026 |
272,500 |
234,171 |
25,758 |
1,000 |
24,758 |
123.17 |
$3,050 |
$642 |
|||||
|
2025 |
280,500 |
227,351 |
25,008 |
1,000 |
24,008 |
123.17 |
$2,957 |
$843 |
|||||
|
2024 |
282,500 |
220,730 |
24,280 |
1,000 |
23,280 |
122.30 |
$2,847 |
$953 |
|||||
|
2023 |
262,500 |
214,301 |
23,572 |
1,000 |
22,572 |
121.91 |
$2,752 |
$768 |
|||||
|
2022 |
232,000 |
208,060 |
22,886 |
1,000 |
21,886 |
123.41 |
$2,701 |
$448 |
|||||
| Property Account Status/Adjustments/Exemptions | ||
|---|---|---|
| Account # | Exemption Description | Amount |
|
R145861645 |
3% Cap Homestead |
0 |
|
R145861645 |
Homestead |
1,000 |
| Property Deed Transaction History (Recorded in the County Clerk's Office) | |||||||
|---|---|---|---|---|---|---|---|
| Date | Type | Book | Page | Price | Grantor | Grantee | |
|
12/15/2017 |
|
Deeds |
$210,000 |
BREWER JAMES R |
FISHER ADOLPH ADAM & ELLEN KAY |
||
|
10/2/1997 |
|
Historical |
$137,500 |
YELVINGTON JAMES L & MARY TRS |
BREWER JAMES R |
||
|
6/9/1993 |
|
Historical |
$0 |
YELVINGTON JAMES L & MARY A |
YELVINGTON JAMES L & MARY TRS |
||
|
8/26/1988 |
|
Historical |
$114,000 |
ENYART EDWARD L & JONNI L |
YELVINGTON JAMES L & MARY A |
||
|
7/1/1985 |
|
Historical |
$128,000 |
|
ENYART EDWARD L & JONNI L |
||
| Last Mailed Notice of Value (N.O.V.) Information/History | ||||||||
|---|---|---|---|---|---|---|---|---|
| Year | Date | Market Value | Taxable Market Value | Gross Assessed | Exemption | Net Assessed | ||
|
2026 |
02/23/2026 |
272,500 |
234,171 |
25,758 |
1,000 |
24,758 |
||
|
2025 |
02/14/2025 |
280,500 |
227,351 |
25,008 |
1,000 |
24,008 |
||
|
2024 |
02/13/2024 |
282,500 |
220,730 |
24,280 |
1,000 |
23,280 |
||
|
2023 |
02/14/2023 |
262,500 |
214,301 |
23,572 |
1,000 |
22,572 |
||
|
2022 |
03/15/2022 |
232,000 |
208,060 |
22,886 |
1,000 |
21,886 |
||
| Property Building Permit History | |||||||||||
|---|---|---|---|---|---|---|---|---|---|---|---|
| Issued | Permit # | Provided by | Bldg # | Description | Est Construction Cost | Status | |||||
| No Building Permit records returned. | |||||||||||
| Click button on building number to access detailed information: | ||||||
|---|---|---|---|---|---|---|
| Bldg # | Vacant/Improved Land | Bldg Description | Year Built | SqFt | # Stories | |
|
1 |
Improved |
Ranch 1 Story |
1962 |
2,372 |
1 Stories |
|