|
|
|
| Larry Stein Oklahoma County Assessor (405) 713-1200 - Public Access System |
|
|
|
|
|
|
| Real Property Display - Screen Produced 4/9/2026 2:01:20 PM | ||||
|---|---|---|---|---|
| Account: R145861855 | Type: Residential | Location: |
3204 N PRESTON DR |
|
| Building Name/Occupant: |
|
OKLAHOMA CITY |
||
| Owner Name 1: | MARSH CARTER E & ELLYN M TRS |
Parcel PIN#: |
2888-14-586-1855 |
|
| Owner Name 2: | MARSH TRUST | 1/4 section #: |
2888 |
|
| Owner Name 3: | Parent Acct: |
|
||
| Billing Address: | 3204 N PRESTON DR | Tax District: |
|
|
| City, State, Zip | OKLAHOMA CITY, OK 73122-1117 | School System: |
Putnam City #1 |
|
|
Country: (If noted) |
Land Size: |
0.3432 Acres |
||
|
Land Value: 56,802 |
|
|||
|
Sect 22-T12N-R4W Qtr NW |
MERIDIAN HILLS
Block
004
Lot
028
|
|||
| Full Legal Description: MERIDIAN HILLS 004 028 |
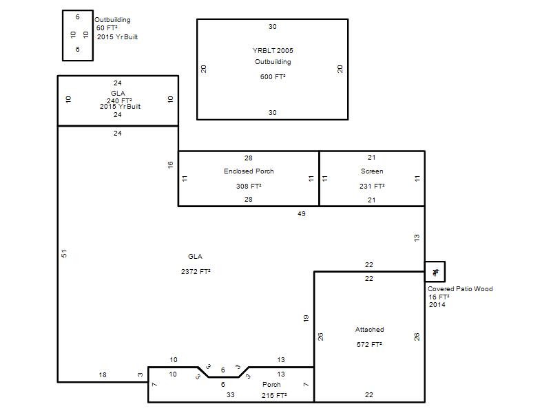
| Photo & Sketch (if available) | Comp Sales (ordered by relevancy) |
|
||||||||||||||||||
|
||||||||||||||||||||
| Value History (*The County Treasurer 405-713-1300 posts & collects actual tax amounts. Contact information HERE) | |||||||||||||
|---|---|---|---|---|---|---|---|---|---|---|---|---|---|
| Year | Market Value | Taxable Mkt Value | Gross Assessed | Exemption | Net Assessed | Millage | Est. Tax | Tax Savings | |||||
|
2026 |
349,500 |
280,586 |
30,863 |
1,000 |
29,863 |
123.17 |
$3,678 |
$1,057 |
|||||
|
2025 |
360,000 |
272,414 |
29,964 |
1,000 |
28,964 |
123.17 |
$3,568 |
$1,310 |
|||||
|
2024 |
360,000 |
264,480 |
29,092 |
1,000 |
28,092 |
122.30 |
$3,436 |
$1,407 |
|||||
|
2023 |
338,000 |
256,777 |
28,244 |
1,000 |
27,244 |
121.91 |
$3,321 |
$1,211 |
|||||
|
2022 |
303,000 |
249,299 |
27,421 |
1,000 |
26,421 |
123.41 |
$3,261 |
$852 |
|||||
| Property Account Status/Adjustments/Exemptions | ||
|---|---|---|
| Account # | Exemption Description | Amount |
|
R145861855 |
3% Cap Homestead |
0 |
|
R145861855 |
Homestead |
1,000 |
| Property Deed Transaction History (Recorded in the County Clerk's Office) | |||||||
|---|---|---|---|---|---|---|---|
| Date | Type | Book | Page | Price | Grantor | Grantee | |
|
6/6/2000 |
|
Deeds |
$0 |
MARSH CARTER E & M ELLYN |
MARSH CARTER E & ELLYN M TRS |
||
|
10/27/1995 |
|
Historical |
$130,000 |
STILWELL NELLIE MAE |
MARSH CARTER E & M ELLYN |
||
|
2/1/1985 |
|
Historical |
$0 |
|
STILWELL NELLIE MAE |
||
| Last Mailed Notice of Value (N.O.V.) Information/History | ||||||||
|---|---|---|---|---|---|---|---|---|
| Year | Date | Market Value | Taxable Market Value | Gross Assessed | Exemption | Net Assessed | ||
|
2026 |
02/23/2026 |
349,500 |
280,586 |
30,863 |
1,000 |
29,863 |
||
|
2025 |
02/14/2025 |
360,000 |
272,414 |
29,964 |
1,000 |
28,964 |
||
|
2024 |
02/13/2024 |
360,000 |
264,480 |
29,092 |
1,000 |
28,092 |
||
|
2023 |
02/14/2023 |
338,000 |
256,777 |
28,244 |
1,000 |
27,244 |
||
|
2022 |
03/15/2022 |
303,000 |
249,299 |
27,421 |
1,000 |
26,421 |
||
| Property Building Permit History | ||||||
|---|---|---|---|---|---|---|
| Issued | Permit # | Provided by | Bldg # | Description | Est Construction Cost | Status |
|
3/6/2015 |
10473091 |
OKLAHOMA CITY |
1 |
Add On |
30,000 |
Inactive |
|
4/28/2005 |
10308233 |
OKLAHOMA CITY |
1 |
Storage Buil |
20,000 |
Inactive |
|
9/30/1999 |
10240932 |
OKLAHOMA CITY |
1 |
Storage Buil |
6,000 |
Inactive |
| Click button on building number to access detailed information: | ||||||
|---|---|---|---|---|---|---|
| Bldg # | Vacant/Improved Land | Bldg Description | Year Built | SqFt | # Stories | |
|
1 |
Improved |
Ranch 1 Story |
1961 |
2,612 |
1 Stories |
|