|
|
|
| Larry Stein Oklahoma County Assessor (405) 713-1200 - Public Access System |
|
|
|
|
|
|
| Real Property Display - Screen Produced 4/9/2026 7:22:05 AM | ||||
|---|---|---|---|---|
| Account: R145911075 | Type: Residential | Location: |
4932 NW 30TH PL |
|
| Building Name/Occupant: |
|
OKLAHOMA CITY |
||
| Owner Name 1: | TRUELOVE JEREMY A |
Parcel PIN#: |
2888-14-591-1075 |
|
| Owner Name 2: | CARDOZA JANETH F | 1/4 section #: |
2888 |
|
| Owner Name 3: | Parent Acct: |
|
||
| Billing Address: | 4932 NW 30TH PL | Tax District: |
|
|
| City, State, Zip | OKLAHOMA CITY, OK 73122 | School System: |
Putnam City #1 |
|
|
Country: (If noted) |
Land Size: |
0.4577 Acres |
||
|
Land Value: 77,762 |
|
|||
|
Sect 22-T12N-R4W Qtr NW |
MERIDIAN MANOR
Block
001
Lot
008
|
|||
| Full Legal Description: MERIDIAN MANOR 001 008 |
| Photo & Sketch (if available) | Comp Sales (ordered by relevancy) |
|
||||||||||||||||||
|
||||||||||||||||||||
| Value History (*The County Treasurer 405-713-1300 posts & collects actual tax amounts. Contact information HERE) | |||||||||||||
|---|---|---|---|---|---|---|---|---|---|---|---|---|---|
| Year | Market Value | Taxable Mkt Value | Gross Assessed | Exemption | Net Assessed | Millage | Est. Tax | Tax Savings | |||||
|
2026 |
416,000 |
416,000 |
45,760 |
45,760 |
0 |
123.17 |
$0 |
$5,636 |
|||||
|
2025 |
421,000 |
421,000 |
46,310 |
46,310 |
0 |
123.17 |
$0 |
$5,704 |
|||||
|
2024 |
436,500 |
431,570 |
47,472 |
47,472 |
0 |
122.30 |
$0 |
$5,872 |
|||||
|
2023 |
419,000 |
419,000 |
46,090 |
46,090 |
0 |
121.91 |
$0 |
$5,619 |
|||||
|
2022 |
416,000 |
416,000 |
45,760 |
45,760 |
0 |
123.41 |
$0 |
$5,647 |
|||||
| Property Account Status/Adjustments/Exemptions | ||
|---|---|---|
| Account # | Exemption Description | Amount |
|
R145911075 |
3% Cap Homestead |
0 |
|
R145911075 |
100% DAV Exemption |
100 |
|
R145911075 |
DAV Homestead |
0 |
| Property Deed Transaction History (Recorded in the County Clerk's Office) | |||||||
|---|---|---|---|---|---|---|---|
| Date | Type | Book | Page | Price | Grantor | Grantee | |
|
8/30/2021 |
|
Deeds |
$429,000 |
PITTMAN ROBERT S & STEPHANIE L TRS |
TRUELOVE JEREMY A |
||
|
1/16/2006 |
|
Deeds |
$0 |
PITTMAN ROBERT S & STEPHANIE |
PITTMAN ROBERT S & STEPHANIE L TRS |
||
|
6/28/1996 |
|
Historical |
$194,000 |
LOVE MERI |
PITTMAN ROBERT S & STEPHANIE |
||
|
9/1/1983 |
|
Historical |
$0 |
|
LOVE MERI |
||
| Last Mailed Notice of Value (N.O.V.) Information/History | ||||||||
|---|---|---|---|---|---|---|---|---|
| Year | Date | Market Value | Taxable Market Value | Gross Assessed | Exemption | Net Assessed | ||
|
2024 |
02/13/2024 |
436,500 |
431,570 |
47,472 |
47,472 |
0 |
||
|
2023 |
02/14/2023 |
419,000 |
419,000 |
46,090 |
46,090 |
0 |
||
|
2022 |
03/15/2022 |
416,000 |
416,000 |
45,760 |
45,760 |
0 |
||
|
2021 |
03/19/2021 |
269,500 |
252,140 |
27,735 |
1,000 |
26,735 |
||
|
2020 |
03/10/2020 |
266,500 |
244,797 |
26,927 |
1,000 |
25,927 |
||
| Property Building Permit History | |||||||||||
|---|---|---|---|---|---|---|---|---|---|---|---|
| Issued | Permit # | Provided by | Bldg # | Description | Est Construction Cost | Status | |||||
| No Building Permit records returned. | |||||||||||
| Click button on building number to access detailed information: | ||||||
|---|---|---|---|---|---|---|
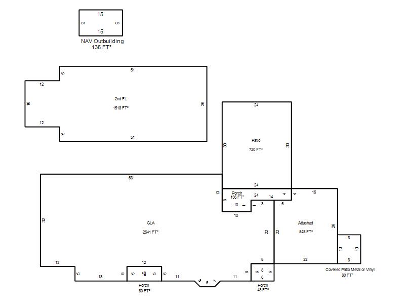
| Bldg # | Vacant/Improved Land | Bldg Description | Year Built | SqFt | # Stories | |
|
1 |
Improved |
1½ Story Fin |
1962 |
4,159 |
1.5 Stories |
|