|
|
|
| Larry Stein Oklahoma County Assessor (405) 713-1200 - Public Access System |
|
|
|
|
|
|
| Real Property Display - Screen Produced 4/4/2026 3:58:17 AM | ||||
|---|---|---|---|---|
| Account: R052503175 | Type: Residential | Location: |
3241 NW 31ST ST |
|
| Building Name/Occupant: |
|
OKLAHOMA CITY |
||
| Owner Name 1: | EVERGREEN 99 CAPITAL LLC |
Parcel PIN#: |
2893-05-250-3175 |
|
| Owner Name 2: | 3241 NW 31 PROTECTED SERIES | 1/4 section #: |
2893 |
|
| Owner Name 3: | Parent Acct: |
|
||
| Billing Address: | 312 W 2ND ST, Unit A4243 | Tax District: |
|
|
| City, State, Zip | CASPER, WY 82601-2412 | School System: |
Oklahoma City #89 |
|
|
Country: (If noted) |
Land Size: |
0.1354 Acres |
||
|
Land Value: 14,160 |
|
|||
|
Sect 24-T12N-R4W Qtr NE |
LYONS WILL ROGERS PK
Block
003
Lot
027
|
|||
| Full Legal Description: LYONS WILL ROGERS PK 003 027 |
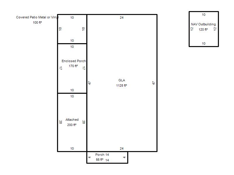
| Photo & Sketch (if available) | Comp Sales (ordered by relevancy) |
|
||||||||||||||||||
|
||||||||||||||||||||
| Value History (*The County Treasurer 405-713-1300 posts & collects actual tax amounts. Contact information HERE) | |||||||||||||
|---|---|---|---|---|---|---|---|---|---|---|---|---|---|
| Year | Market Value | Taxable Mkt Value | Gross Assessed | Exemption | Net Assessed | Millage | Est. Tax | Tax Savings | |||||
| No PropertyValuation records returned. | |||||||||||||
| Property Account Status/Adjustments/Exemptions | ||
|---|---|---|
| Account # | Exemption Description | Amount |
|
R052503175 |
5% Capped Account |
0 |
| Property Deed Transaction History (Recorded in the County Clerk's Office) | ||||||||||
|---|---|---|---|---|---|---|---|---|---|---|
| Date | Type | Book | Page | Price | Grantor | Grantee | ||||
|
7/16/2024 |
|
Hmstd Off & |
$0 |
BNL INVESTMENT LLC |
EVERGREEN 99 CAPITAL LLC |
|||||
|
2/14/2023 |
|
Other |
$0 |
HARVEY JAMES P |
GADA INVESTMENTS LLC |
|||||
|
2/14/2023 |
|
Hmstd Off & |
$0 |
GADA INVESTMENTS LLC |
BNL INVESTMENT LLC |
|||||
|
12/18/2006 |
|
Deeds |
$63,000 |
JORDAN JAMES G & NORIS E TRS JORDAN JAMES G & NORIS E TRUST |
HARVEY JAMES P |
|||||
|
5/15/1992 |
|
Historical |
$0 |
JORDAN JAS G & NORIS |
JORDAN JAMES G & NORIS E TRS |
|||||
| Last Mailed Notice of Value (N.O.V.) Information/History | ||||||||
|---|---|---|---|---|---|---|---|---|
| Year | Date | Market Value | Taxable Market Value | Gross Assessed | Exemption | Net Assessed | ||
| No Notice of Value N.O.V. records returned. | ||||||||
| Property Building Permit History | |||||||||||
|---|---|---|---|---|---|---|---|---|---|---|---|
| Issued | Permit # | Provided by | Bldg # | Description | Est Construction Cost | Status | |||||
| No Building Permit records returned. | |||||||||||
| Click button on building number to access detailed information: | ||||||
|---|---|---|---|---|---|---|
| Bldg # | Vacant/Improved Land | Bldg Description | Year Built | SqFt | # Stories | |
|
1 |
Improved |
Ranch 1 Story |
1947 |
1,128 |
1 Stories |
|