|
|
|
| Larry Stein Oklahoma County Assessor (405) 713-1200 - Public Access System |
|
|
|
|
|
|
| Real Property Display - Screen Produced 4/4/2026 3:58:18 AM | ||||
|---|---|---|---|---|
| Account: R052504400 | Type: Residential | Location: |
3245 NW 32ND ST |
|
| Building Name/Occupant: |
|
OKLAHOMA CITY |
||
| Owner Name 1: | ROUSE BEATRICE U |
Parcel PIN#: |
2893-05-250-4400 |
|
| Owner Name 2: | ROUSE JOHN T | 1/4 section #: |
2893 |
|
| Owner Name 3: | Parent Acct: |
|
||
| Billing Address: | 3245 NW 32ND ST | Tax District: |
|
|
| City, State, Zip | OKLAHOMA CITY, OK 73112 | School System: |
Oklahoma City #89 |
|
|
Country: (If noted) |
Land Size: |
0.1409 Acres |
||
|
Land Value: 14,726 |
|
|||
|
Sect 24-T12N-R4W Qtr NE |
LYONS WILL ROGERS PK
Block
004
Lot
026
|
|||
| Full Legal Description: LYONS WILL ROGERS PK 004 026 |
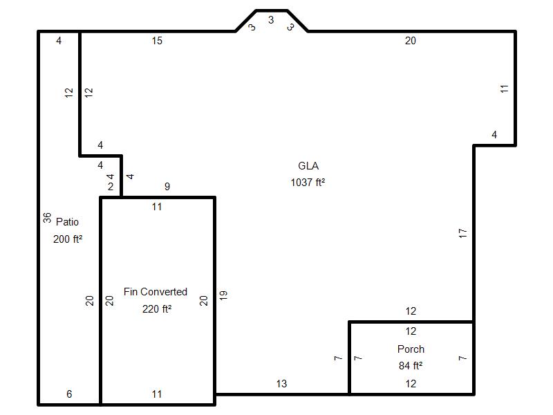
| Photo & Sketch (if available) | Comp Sales (ordered by relevancy) |
|
||||||||||||||||||
|
||||||||||||||||||||
| Value History (*The County Treasurer 405-713-1300 posts & collects actual tax amounts. Contact information HERE) | |||||||||||||
|---|---|---|---|---|---|---|---|---|---|---|---|---|---|
| Year | Market Value | Taxable Mkt Value | Gross Assessed | Exemption | Net Assessed | Millage | Est. Tax | Tax Savings | |||||
| No PropertyValuation records returned. | |||||||||||||
| Property Account Status/Adjustments/Exemptions | ||
|---|---|---|
| Account # | Exemption Description | Amount |
|
R052504400 |
Freeze Senior Valuation |
0 |
|
R052504400 |
Senior Additional Homestead |
1,000 |
|
R052504400 |
3% Cap Homestead |
0 |
|
R052504400 |
Homestead |
1,000 |
| Property Deed Transaction History (Recorded in the County Clerk's Office) | ||||||||||
|---|---|---|---|---|---|---|---|---|---|---|
| Date | Type | Book | Page | Price | Grantor | Grantee | ||||
|
7/15/2021 |
|
Deeds |
$0 |
ROUSE BEATRICE U |
ROUSE BEATRICE U |
|||||
|
7/9/2021 |
|
Deeds |
$ |
ROUSE BEATRICE U |
ROUSE BEATRICE U |
|||||
|
8/27/2018 |
|
Deeds |
$78,000 |
LINDAUER CHRISTIAN & AMBER |
ROUSE BEATRICE U |
|||||
|
8/27/2018 |
|
Deeds |
$0 |
ROUSE BEATRICE U |
ROUSE BEATRICE U |
|||||
|
8/22/2008 |
|
Deeds |
$69,500 |
SLK PROPERTIES LLC |
LINDAUER CHRISTIAN & AMBER |
|||||
| Last Mailed Notice of Value (N.O.V.) Information/History | ||||||||
|---|---|---|---|---|---|---|---|---|
| Year | Date | Market Value | Taxable Market Value | Gross Assessed | Exemption | Net Assessed | ||
| No Notice of Value N.O.V. records returned. | ||||||||
| Property Building Permit History | ||||||
|---|---|---|---|---|---|---|
| Issued | Permit # | Provided by | Bldg # | Description | Est Construction Cost | Status |
|
2/1/2018 |
|
|
|
Remodeled |
20,000 |
Inactive |
| Click button on building number to access detailed information: | ||||||
|---|---|---|---|---|---|---|
| Bldg # | Vacant/Improved Land | Bldg Description | Year Built | SqFt | # Stories | |
|
1 |
Improved |
Ranch 1 Story |
1948 |
1,037 |
1 Stories |
|