|
|
|
| Larry Stein Oklahoma County Assessor (405) 713-1200 - Public Access System |
|
|
|
|
|
|
| Real Property Display - Screen Produced 4/9/2026 7:59:16 AM | ||||
|---|---|---|---|---|
| Account: R116210850 | Type: Residential | Location: |
3746 NW 19TH ST |
|
| Building Name/Occupant: |
|
OKLAHOMA CITY |
||
| Owner Name 1: | FRY PROPERTIES LLC |
Parcel PIN#: |
2901-11-621-0850 |
|
| Owner Name 2: | 1/4 section #: |
2901 |
||
| Owner Name 3: | Parent Acct: |
|
||
| Billing Address: | 2100 NW 20TH ST | Tax District: |
|
|
| City, State, Zip | OKLAHOMA CITY, OK 73107-3510 | School System: |
Oklahoma City #89 |
|
|
Country: (If noted) |
Land Size: |
0.1552 Acres |
||
|
Land Value: 17,576 |
|
|||
|
Sect 26-T12N-R4W Qtr NE |
STEVE PENNINGTON 7TH
Block
001
Lot
011
|
|||
| Full Legal Description: STEVE PENNINGTON 7TH 001 011 |
| Photo & Sketch (if available) | Comp Sales (ordered by relevancy) |
|
||||||||||||||||||
|
||||||||||||||||||||
| Value History (*The County Treasurer 405-713-1300 posts & collects actual tax amounts. Contact information HERE) | |||||||||||||
|---|---|---|---|---|---|---|---|---|---|---|---|---|---|
| Year | Market Value | Taxable Mkt Value | Gross Assessed | Exemption | Net Assessed | Millage | Est. Tax | Tax Savings | |||||
|
2026 |
118,000 |
96,769 |
10,643 |
0 |
10,643 |
122.90 |
$1,308 |
$287 |
|||||
|
2025 |
112,000 |
92,161 |
10,137 |
0 |
10,137 |
122.90 |
$1,246 |
$268 |
|||||
|
2024 |
112,500 |
87,773 |
9,654 |
0 |
9,654 |
123.89 |
$1,196 |
$337 |
|||||
|
2023 |
104,000 |
83,594 |
9,194 |
0 |
9,194 |
122.82 |
$1,129 |
$276 |
|||||
|
2022 |
91,000 |
79,614 |
8,757 |
0 |
8,757 |
117.63 |
$1,030 |
$147 |
|||||
| Property Account Status/Adjustments/Exemptions | ||
|---|---|---|
| Account # | Exemption Description | Amount |
|
R116210850 |
5% Capped Account |
0 |
| Property Deed Transaction History (Recorded in the County Clerk's Office) | ||||||||||
|---|---|---|---|---|---|---|---|---|---|---|
| Date | Type | Book | Page | Price | Grantor | Grantee | ||||
|
8/15/2004 |
|
Deeds |
$0 |
FREY PHYLLIS SMITH RANDALL M |
FRY PROPERTIES LLC |
|||||
|
5/22/2004 |
|
Other |
$0 |
FRY PHYLLIS SMITH RANDALL M |
FRY PROPERTIES LLC |
|||||
|
6/13/1994 |
|
Historical |
$31,500 |
PAYNE RICHARD R |
SMITH RANDALL M |
|||||
|
10/6/1989 |
|
Historical |
$28,217 |
SECRETARY OF HOUSING |
PAYNE RICHARD R |
|||||
|
11/15/1988 |
|
Historical |
$0 |
HOWERTON JAMES B & KATHRYN L |
SECRETARY OF HOUSING |
|||||
| Last Mailed Notice of Value (N.O.V.) Information/History | ||||||||
|---|---|---|---|---|---|---|---|---|
| Year | Date | Market Value | Taxable Market Value | Gross Assessed | Exemption | Net Assessed | ||
|
2026 |
02/23/2026 |
118,000 |
96,769 |
10,643 |
0 |
10,643 |
||
|
2025 |
02/14/2025 |
112,000 |
92,161 |
10,137 |
0 |
10,137 |
||
|
2024 |
02/13/2024 |
112,500 |
87,773 |
9,654 |
0 |
9,654 |
||
|
2023 |
02/14/2023 |
104,000 |
83,594 |
9,194 |
0 |
9,194 |
||
|
2022 |
03/15/2022 |
91,000 |
79,614 |
8,757 |
0 |
8,757 |
||
| Property Building Permit History | |||||||||||
|---|---|---|---|---|---|---|---|---|---|---|---|
| Issued | Permit # | Provided by | Bldg # | Description | Est Construction Cost | Status | |||||
| No Building Permit records returned. | |||||||||||
| Click button on building number to access detailed information: | ||||||
|---|---|---|---|---|---|---|
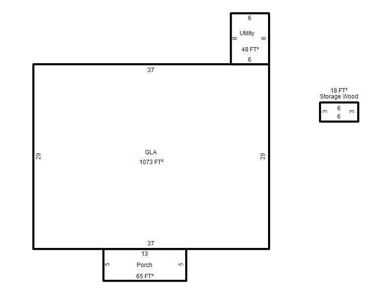
| Bldg # | Vacant/Improved Land | Bldg Description | Year Built | SqFt | # Stories | |
|
1 |
Improved |
Ranch 1 Story |
1950 |
1,073 |
1 Stories |
|