|
|
|
| Larry Stein Oklahoma County Assessor (405) 713-1200 - Public Access System |
|
|
|
|
|
|
| Real Property Display - Screen Produced 4/4/2026 5:34:49 AM | ||||
|---|---|---|---|---|
| Account: R140330400 | Type: Residential | Location: |
2007 W HARLOW PL |
|
| Building Name/Occupant: |
|
OKLAHOMA CITY |
||
| Owner Name 1: | MOLINA ERWIS LEONARDO HERNANDEZ |
Parcel PIN#: |
2905-14-033-0400 |
|
| Owner Name 2: | MORAN YOLANI ELIZABETH PALACIOS | 1/4 section #: |
2905 |
|
| Owner Name 3: | Parent Acct: |
|
||
| Billing Address: | 2007 W HARLOW PL | Tax District: |
|
|
| City, State, Zip | OKLAHOMA CITY, OK 73127 | School System: |
Putnam City #1 |
|
|
Country: (If noted) |
Land Size: |
0.2600 Acres |
||
|
Land Value: 14,300 |
|
|||
|
Sect 27-T12N-R4W Qtr NE |
HARLOW ACRES ADD
Block
000
Lot
000
|
|||
| Full Legal Description: HARLOW ACRES ADD 000 000 N119.50FT OF LOT 4 |
| Photo & Sketch (if available) | Comp Sales (ordered by relevancy) |
|
||||||||||||||||||
|
||||||||||||||||||||
| Value History (*The County Treasurer 405-713-1300 posts & collects actual tax amounts. Contact information HERE) | |||||||||||||
|---|---|---|---|---|---|---|---|---|---|---|---|---|---|
| Year | Market Value | Taxable Mkt Value | Gross Assessed | Exemption | Net Assessed | Millage | Est. Tax | Tax Savings | |||||
|
2026 |
247,500 |
247,500 |
27,225 |
0 |
27,225 |
123.17 |
$3,353 |
$0 |
|||||
|
2025 |
244,500 |
244,500 |
26,895 |
0 |
26,895 |
123.17 |
$3,313 |
$0 |
|||||
|
2024 |
240,000 |
240,000 |
26,400 |
0 |
26,400 |
122.30 |
$3,229 |
$0 |
|||||
|
2023 |
226,000 |
165,195 |
18,171 |
1,000 |
17,171 |
121.91 |
$2,093 |
$937 |
|||||
|
2022 |
203,500 |
160,384 |
17,640 |
1,000 |
16,640 |
123.41 |
$2,054 |
$709 |
|||||
| Property Account Status/Adjustments/Exemptions | ||
|---|---|---|
| Account # | Exemption Description | Amount |
|
R140330400 |
5% Capped Account |
0 |
| Property Deed Transaction History (Recorded in the County Clerk's Office) | ||||||||||
|---|---|---|---|---|---|---|---|---|---|---|
| Date | Type | Book | Page | Price | Grantor | Grantee | ||||
|
10/6/2023 |
|
Deeds |
$208,000 |
HACKETT KARENSA C & JACKIE D |
MOLINA ERWIS LEONARDO HERNANDEZ |
|||||
|
11/29/2012 |
|
Deeds |
$0 |
JOHNSON KARENSA C HACKETT JACKIE D |
HACKETT KARENSA C & JACKIE D |
|||||
|
4/8/2008 |
|
Deeds |
$0 |
BURT VERLE & ESTELLA |
BURT VERLE & ESTELLA TRS |
|||||
|
4/8/2008 |
|
Deeds |
$119,500 |
BURT VERLE F & ESTELLA M TRS BURT VERLE F & ESTELLA M REV LI |
JOHNSON KARENSA C HACKETT JACKIE D |
|||||
|
2/14/2007 |
|
Deeds |
$0 |
BURT VERLE F & ESTELLA M |
BURT VERLE F & ESTELLA M TRS BURT FAMILY TRUST |
|||||
| Last Mailed Notice of Value (N.O.V.) Information/History | ||||||||
|---|---|---|---|---|---|---|---|---|
| Year | Date | Market Value | Taxable Market Value | Gross Assessed | Exemption | Net Assessed | ||
|
2026 |
02/23/2026 |
247,500 |
247,500 |
27,225 |
0 |
27,225 |
||
|
2025 |
02/14/2025 |
244,500 |
244,500 |
26,895 |
0 |
26,895 |
||
|
2024 |
02/13/2024 |
240,000 |
240,000 |
26,400 |
0 |
26,400 |
||
|
2023 |
02/14/2023 |
226,000 |
165,195 |
18,171 |
1,000 |
17,171 |
||
|
2022 |
03/15/2022 |
203,500 |
160,384 |
17,640 |
1,000 |
16,640 |
||
| Property Building Permit History | |||||||||||
|---|---|---|---|---|---|---|---|---|---|---|---|
| Issued | Permit # | Provided by | Bldg # | Description | Est Construction Cost | Status | |||||
| No Building Permit records returned. | |||||||||||
| Click button on building number to access detailed information: | ||||||
|---|---|---|---|---|---|---|
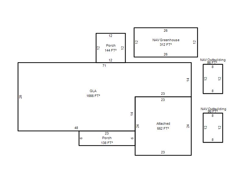
| Bldg # | Vacant/Improved Land | Bldg Description | Year Built | SqFt | # Stories | |
|
1 |
Improved |
Ranch 1 Story |
1987 |
1,666 |
1 Stories |
|