|
|
|
| Larry Stein Oklahoma County Assessor (405) 713-1200 - Public Access System |
|
|
|
|
|
|
| Real Property Display - Screen Produced 4/1/2026 3:14:46 AM | ||||
|---|---|---|---|---|
| Account: R173831185 | Type: Residential | Location: |
7805 NW 21ST ST |
|
| Building Name/Occupant: |
|
BETHANY |
||
| Owner Name 1: | WALL KARLHEINZ E & TRACY J |
Parcel PIN#: |
2916-17-383-1185 |
|
| Owner Name 2: | 1/4 section #: |
2916 |
||
| Owner Name 3: | Parent Acct: |
|
||
| Billing Address: | 7805 NW 21ST ST | Tax District: |
|
|
| City, State, Zip | BETHANY, OK 73008-5303 | School System: |
Putnam City #1 |
|
|
Country: (If noted) |
Land Size: |
0.1616 Acres |
||
|
Land Value: 24,288 |
|
|||
|
Sect 29-T12N-R4W Qtr NW |
DEVILLE PARK 3RD
Block
003
Lot
000
|
|||
| Full Legal Description: DEVILLE PARK 3RD 003 000 W15FT OF LOT 1 & E40FT OF LOT 2 |
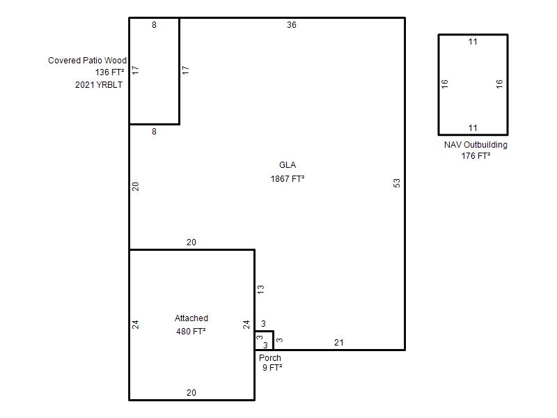
| Photo & Sketch (if available) | Comp Sales (ordered by relevancy) |
|
||||||||||||||||||
|
||||||||||||||||||||
| Value History (*The County Treasurer 405-713-1300 posts & collects actual tax amounts. Contact information HERE) | |||||||||||||
|---|---|---|---|---|---|---|---|---|---|---|---|---|---|
| Year | Market Value | Taxable Mkt Value | Gross Assessed | Exemption | Net Assessed | Millage | Est. Tax | Tax Savings | |||||
|
2026 |
195,000 |
176,125 |
19,373 |
0 |
19,373 |
122.14 |
$2,366 |
$254 |
|||||
|
2025 |
201,000 |
167,739 |
18,450 |
0 |
18,450 |
122.14 |
$2,254 |
$447 |
|||||
|
2024 |
196,500 |
159,752 |
17,571 |
0 |
17,571 |
120.52 |
$2,118 |
$487 |
|||||
|
2023 |
186,000 |
152,145 |
16,735 |
0 |
16,735 |
123.06 |
$2,060 |
$458 |
|||||
|
2022 |
164,000 |
144,900 |
15,939 |
0 |
15,939 |
112.54 |
$1,794 |
$236 |
|||||
| Property Account Status/Adjustments/Exemptions | ||
|---|---|---|
| Account # | Exemption Description | Amount |
|
R173831185 |
5% Capped Account |
0 |
| Property Deed Transaction History (Recorded in the County Clerk's Office) | |||||||
|---|---|---|---|---|---|---|---|
| Date | Type | Book | Page | Price | Grantor | Grantee | |
|
7/27/1999 |
|
Deeds |
$80,000 |
WHITE CHARLES R & SHERRY L |
WALL KARLHEINZ E & TRACY J |
||
|
9/28/1998 |
|
Historical |
$0 |
WHITE CHARLES R |
WHITE CHARLES R & SHERRY L |
||
|
5/4/1994 |
|
Historical |
$0 |
WHITE CHARLES R & SUE E |
WHITE CHARLES R |
||
|
12/1/1981 |
|
Historical |
$0 |
|
WHITE CHARLES R & SUE E |
||
| Last Mailed Notice of Value (N.O.V.) Information/History | ||||||||
|---|---|---|---|---|---|---|---|---|
| Year | Date | Market Value | Taxable Market Value | Gross Assessed | Exemption | Net Assessed | ||
|
2026 |
02/23/2026 |
195,000 |
176,125 |
19,373 |
0 |
19,373 |
||
|
2025 |
02/14/2025 |
201,000 |
167,739 |
18,450 |
0 |
18,450 |
||
|
2024 |
02/13/2024 |
196,500 |
159,752 |
17,571 |
0 |
17,571 |
||
|
2023 |
02/14/2023 |
186,000 |
152,145 |
16,735 |
0 |
16,735 |
||
|
2022 |
03/15/2022 |
164,000 |
144,900 |
15,939 |
0 |
15,939 |
||
| Property Building Permit History | |||||||||||
|---|---|---|---|---|---|---|---|---|---|---|---|
| Issued | Permit # | Provided by | Bldg # | Description | Est Construction Cost | Status | |||||
| No Building Permit records returned. | |||||||||||
| Click button on building number to access detailed information: | ||||||
|---|---|---|---|---|---|---|
| Bldg # | Vacant/Improved Land | Bldg Description | Year Built | SqFt | # Stories | |
|
1 |
Improved |
Ranch 1 Story |
1968 |
1,867 |
1 Stories |
|