|
|
|
| Larry Stein Oklahoma County Assessor (405) 713-1200 - Public Access System |
|
|
|
|
|
|
| Real Property Display - Screen Produced 4/2/2026 3:13:03 PM | ||||
|---|---|---|---|---|
| Account: R140901000 | Type: Residential | Location: |
2000 N EAGLE LN |
|
| Building Name/Occupant: |
|
OKLAHOMA CITY |
||
| Owner Name 1: | WITCHER LARRY SOLE TRS |
Parcel PIN#: |
2917-14-090-1000 |
|
| Owner Name 2: | WITCHER LARRY REV TRUST | 1/4 section #: |
2917 |
|
| Owner Name 3: | Parent Acct: |
|
||
| Billing Address: | 1104 GLADE AVE, Unit 109 | Tax District: |
|
|
| City, State, Zip | OKLAHOMA CITY, OK 73127-4112 | School System: |
Putnam City #1 |
|
|
Country: (If noted) |
Land Size: |
0.1837 Acres |
||
|
Land Value: 27,200 |
|
|||
|
Sect 30-T12N-R4W Qtr NE |
MOORES PUTNAM CITY WEST
Block
001
Lot
001
|
|||
| Full Legal Description: MOORES PUTNAM CITY WEST 001 001 |
| Photo & Sketch (if available) | Comp Sales (ordered by relevancy) |
|
||||||||||||||||||
|
||||||||||||||||||||
| Value History (*The County Treasurer 405-713-1300 posts & collects actual tax amounts. Contact information HERE) | |||||||||||||
|---|---|---|---|---|---|---|---|---|---|---|---|---|---|
| Year | Market Value | Taxable Mkt Value | Gross Assessed | Exemption | Net Assessed | Millage | Est. Tax | Tax Savings | |||||
|
2026 |
184,000 |
117,626 |
12,938 |
0 |
12,938 |
123.17 |
$1,594 |
$899 |
|||||
|
2025 |
193,000 |
112,025 |
12,322 |
0 |
12,322 |
123.17 |
$1,518 |
$1,097 |
|||||
|
2024 |
188,500 |
106,691 |
11,736 |
1,000 |
10,736 |
122.30 |
$1,313 |
$1,223 |
|||||
|
2023 |
181,000 |
106,691 |
11,736 |
1,000 |
10,736 |
121.91 |
$1,309 |
$1,118 |
|||||
|
2022 |
165,500 |
106,691 |
11,736 |
1,000 |
10,736 |
123.41 |
$1,325 |
$922 |
|||||
| Property Account Status/Adjustments/Exemptions | ||
|---|---|---|
| Account # | Exemption Description | Amount |
|
R140901000 |
5% Capped Account |
0 |
| Property Deed Transaction History (Recorded in the County Clerk's Office) | |||||||
|---|---|---|---|---|---|---|---|
| Date | Type | Book | Page | Price | Grantor | Grantee | |
|
4/8/2020 |
|
Deeds |
$0 |
WITCHER JOYCE J |
WITCHER LARRY TRS |
||
|
4/8/2020 |
|
Deeds |
$0 |
WITCHER LARRY TRS |
WITCHER LARRY SOLE TRS |
||
|
12/19/2007 |
|
Deeds |
$0 |
WITCHER LARRY R & JOYCE J |
WITCHER LARRY TRS |
||
|
2/27/1995 |
|
Historical |
$64,000 |
HILL ARLENE M |
WITCHER LARRY R & JOYCE J |
||
|
11/1/1979 |
|
Historical |
$0 |
|
HILL ARLENE M |
||
| Last Mailed Notice of Value (N.O.V.) Information/History | ||||||||
|---|---|---|---|---|---|---|---|---|
| Year | Date | Market Value | Taxable Market Value | Gross Assessed | Exemption | Net Assessed | ||
|
2026 |
02/23/2026 |
184,000 |
117,626 |
12,938 |
0 |
12,938 |
||
|
2025 |
02/14/2025 |
193,000 |
106,691 |
11,736 |
1,000 |
10,736 |
||
|
2024 |
02/13/2024 |
188,500 |
106,691 |
11,736 |
1,000 |
10,736 |
||
|
2023 |
02/14/2023 |
181,000 |
106,691 |
11,736 |
1,000 |
10,736 |
||
|
2022 |
03/15/2022 |
165,500 |
106,691 |
11,736 |
1,000 |
10,736 |
||
| Property Building Permit History | |||||||||||
|---|---|---|---|---|---|---|---|---|---|---|---|
| Issued | Permit # | Provided by | Bldg # | Description | Est Construction Cost | Status | |||||
| No Building Permit records returned. | |||||||||||
| Click button on building number to access detailed information: | ||||||
|---|---|---|---|---|---|---|
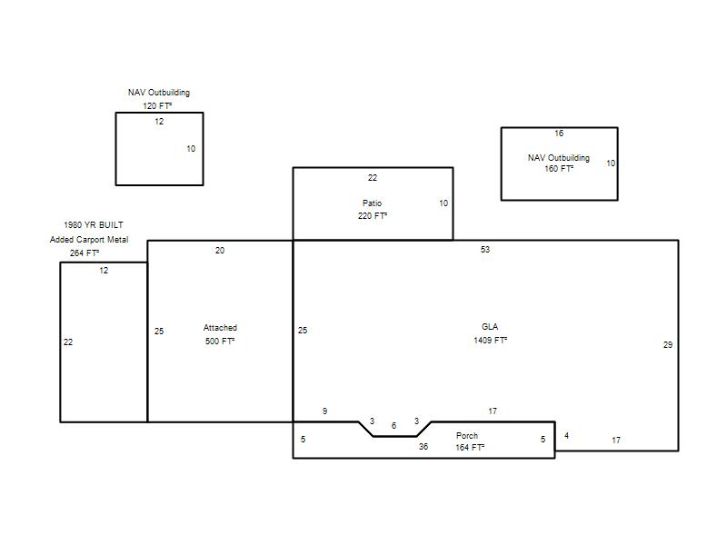
| Bldg # | Vacant/Improved Land | Bldg Description | Year Built | SqFt | # Stories | |
|
1 |
Improved |
Ranch 1 Story |
1972 |
1,409 |
1 Stories |
|