|
|
|
| Larry Stein Oklahoma County Assessor (405) 713-1200 - Public Access System |
|
|
|
|
|
|
| Real Property Display - Screen Produced 4/4/2026 1:29:22 PM | ||||
|---|---|---|---|---|
| Account: R143971020 | Type: Residential | Location: |
8209 GOLDEN OAKS RD |
|
| Building Name/Occupant: |
|
OKLAHOMA CITY |
||
| Owner Name 1: | DICKEY SHARLENE MICHELLE & JEFFREY DAVID |
Parcel PIN#: |
2918-14-397-1020 |
|
| Owner Name 2: | 1/4 section #: |
2918 |
||
| Owner Name 3: | Parent Acct: |
|
||
| Billing Address: | 8209 GOLDEN OAKS RD | Tax District: |
|
|
| City, State, Zip | OKLAHOMA CITY, OK 73127-3039 | School System: |
Putnam City #1 |
|
|
Country: (If noted) |
Land Size: |
0.2369 Acres |
||
|
Land Value: 44,376 |
|
|||
|
Sect 30-T12N-R4W Qtr SE |
OVERHOLSER HILLS
Block
001
Lot
003
|
|||
| Full Legal Description: OVERHOLSER HILLS 001 003 |
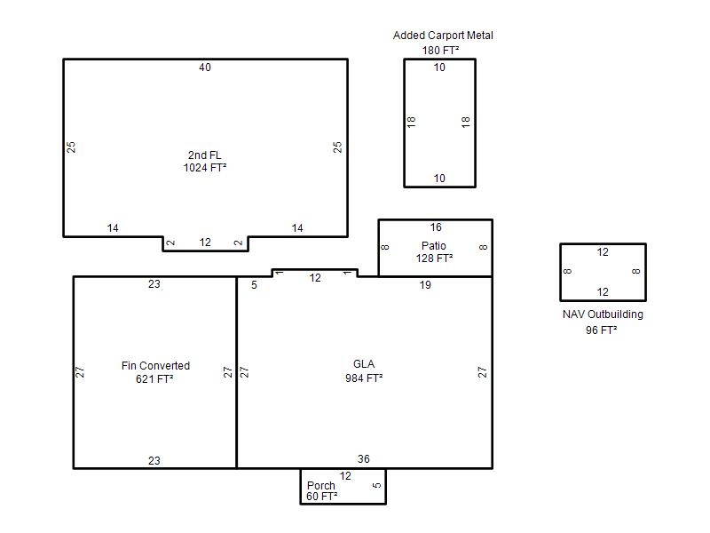
| Photo & Sketch (if available) | Comp Sales (ordered by relevancy) |
|
||||||||||||||||||
|
||||||||||||||||||||
| Value History (*The County Treasurer 405-713-1300 posts & collects actual tax amounts. Contact information HERE) | |||||||||||||
|---|---|---|---|---|---|---|---|---|---|---|---|---|---|
| Year | Market Value | Taxable Mkt Value | Gross Assessed | Exemption | Net Assessed | Millage | Est. Tax | Tax Savings | |||||
|
2026 |
234,500 |
234,500 |
25,795 |
0 |
25,795 |
123.17 |
$3,177 |
$0 |
|||||
|
2025 |
228,500 |
228,500 |
25,135 |
0 |
25,135 |
123.17 |
$3,096 |
$0 |
|||||
|
2024 |
226,500 |
223,807 |
24,618 |
0 |
24,618 |
122.30 |
$3,011 |
$36 |
|||||
|
2023 |
219,500 |
213,150 |
23,446 |
0 |
23,446 |
121.91 |
$2,858 |
$85 |
|||||
|
2022 |
203,000 |
203,000 |
22,330 |
0 |
22,330 |
123.41 |
$2,756 |
$0 |
|||||
| Property Account Status/Adjustments/Exemptions | ||||||
|---|---|---|---|---|---|---|
| Account # | Exemption Description | Amount | ||||
| No adjustment/exemption records returned. | ||||||
| Property Deed Transaction History (Recorded in the County Clerk's Office) | |||||||
|---|---|---|---|---|---|---|---|
| Date | Type | Book | Page | Price | Grantor | Grantee | |
|
8/13/2025 |
|
Deeds |
$245,000 |
GOODMAN MARY J |
DICKEY SHARLENE MICHELLE & JEFFREY DAVID |
||
|
4/9/2021 |
|
Deeds |
$195,000 |
DUCLOS SHIRLEY A |
GOODMAN MARY J |
||
|
3/21/2020 |
|
Hmstd Off & |
$0 |
DUCLOS EDWARD H & SHIRLEY A |
DUCLOS SHIRLEY A |
||
|
6/11/1997 |
|
Historical |
$0 |
DUCLOS EDWARD H & PAULETTE I |
DUCLOS EDWARD H & SHIRLEY A |
||
|
6/1/1977 |
|
Historical |
$0 |
|
DUCLOS EDWARD H & PAULETTE I |
||
| Last Mailed Notice of Value (N.O.V.) Information/History | ||||||||
|---|---|---|---|---|---|---|---|---|
| Year | Date | Market Value | Taxable Market Value | Gross Assessed | Exemption | Net Assessed | ||
|
2026 |
02/23/2026 |
234,500 |
234,500 |
25,795 |
0 |
25,795 |
||
|
2025 |
02/14/2025 |
228,500 |
228,500 |
25,135 |
0 |
25,135 |
||
|
2024 |
02/13/2024 |
226,500 |
223,807 |
24,618 |
0 |
24,618 |
||
|
2023 |
02/14/2023 |
219,500 |
213,150 |
23,446 |
0 |
23,446 |
||
|
2022 |
03/15/2022 |
203,000 |
203,000 |
22,330 |
0 |
22,330 |
||
| Property Building Permit History | |||||||||||
|---|---|---|---|---|---|---|---|---|---|---|---|
| Issued | Permit # | Provided by | Bldg # | Description | Est Construction Cost | Status | |||||
| No Building Permit records returned. | |||||||||||
| Click button on building number to access detailed information: | ||||||
|---|---|---|---|---|---|---|
| Bldg # | Vacant/Improved Land | Bldg Description | Year Built | SqFt | # Stories | |
|
1 |
Improved |
1½ Story Fin |
1967 |
2,008 |
1.5 Stories |
|