|
|
|
| Larry Stein Oklahoma County Assessor (405) 713-1200 - Public Access System |
|
|
|
|
|
|
| Real Property Display - Screen Produced 4/2/2026 11:22:29 AM | ||||
|---|---|---|---|---|
| Account: R148041745 | Type: Residential | Location: |
612 FLAMINGO AVE |
|
| Building Name/Occupant: |
|
OKLAHOMA CITY |
||
| Owner Name 1: | MALONE FAMILY TRUST |
Parcel PIN#: |
2928-14-804-1745 |
|
| Owner Name 2: | 1/4 section #: |
2928 |
||
| Owner Name 3: | Parent Acct: |
|
||
| Billing Address: | 7521 NW 12TH PL | Tax District: |
|
|
| City, State, Zip | OKLAHOMA CITY, OK 73127 | School System: |
Western Heights #41 |
|
|
Country: (If noted) |
Land Size: |
0.1663 Acres |
||
|
Land Value: 17,812 |
|
|||
|
Sect 32-T12N-R4W Qtr NW |
MELROSE LANE
Block
006
Lot
003
|
|||
| Full Legal Description: MELROSE LANE 006 003 |
| Photo & Sketch (if available) | Comp Sales (ordered by relevancy) |
|
||||||||||||||||||
|
||||||||||||||||||||
| Value History (*The County Treasurer 405-713-1300 posts & collects actual tax amounts. Contact information HERE) | |||||||||||||
|---|---|---|---|---|---|---|---|---|---|---|---|---|---|
| Year | Market Value | Taxable Mkt Value | Gross Assessed | Exemption | Net Assessed | Millage | Est. Tax | Tax Savings | |||||
|
2026 |
122,500 |
93,758 |
10,313 |
0 |
10,313 |
118.35 |
$1,221 |
$374 |
|||||
|
2025 |
125,500 |
89,294 |
9,821 |
0 |
9,821 |
118.35 |
$1,162 |
$471 |
|||||
|
2024 |
120,500 |
85,042 |
9,354 |
0 |
9,354 |
118.83 |
$1,112 |
$463 |
|||||
|
2023 |
111,500 |
80,993 |
8,909 |
0 |
8,909 |
116.69 |
$1,040 |
$392 |
|||||
|
2022 |
97,500 |
77,137 |
8,484 |
0 |
8,484 |
118.05 |
$1,002 |
$264 |
|||||
| Property Account Status/Adjustments/Exemptions | ||
|---|---|---|
| Account # | Exemption Description | Amount |
|
R148041745 |
5% Capped Account |
0 |
| Property Deed Transaction History (Recorded in the County Clerk's Office) | ||||||||||
|---|---|---|---|---|---|---|---|---|---|---|
| Date | Type | Book | Page | Price | Grantor | Grantee | ||||
|
2/1/2022 |
|
Deeds |
$0 |
MALONE JAMES P & MILDRA D |
MALONE FAMILY TRUST |
|||||
|
11/10/2004 |
|
Deeds |
$0 |
MALONE JAMES P |
MALONE JAMES P & MILDRA D |
|||||
|
12/19/2003 |
|
Deeds |
$0 |
MALONE MILDRA D |
MALONE JAMES P |
|||||
|
4/12/2001 |
|
Deeds |
$45,000 |
ALSTON JOHNNY G & JULIA A |
MALONE MILDRA D |
|||||
|
3/6/1991 |
|
Historical |
$0 |
ALSTON JOHNNY G |
ALSTON JOHNNY G & JULIA A |
|||||
| Last Mailed Notice of Value (N.O.V.) Information/History | ||||||||
|---|---|---|---|---|---|---|---|---|
| Year | Date | Market Value | Taxable Market Value | Gross Assessed | Exemption | Net Assessed | ||
|
2026 |
02/23/2026 |
122,500 |
93,758 |
10,313 |
0 |
10,313 |
||
|
2025 |
02/14/2025 |
125,500 |
89,294 |
9,821 |
0 |
9,821 |
||
|
2024 |
02/13/2024 |
120,500 |
85,042 |
9,354 |
0 |
9,354 |
||
|
2023 |
02/14/2023 |
111,500 |
80,993 |
8,909 |
0 |
8,909 |
||
|
2022 |
03/15/2022 |
97,500 |
77,137 |
8,484 |
0 |
8,484 |
||
| Property Building Permit History | |||||||||||
|---|---|---|---|---|---|---|---|---|---|---|---|
| Issued | Permit # | Provided by | Bldg # | Description | Est Construction Cost | Status | |||||
| No Building Permit records returned. | |||||||||||
| Click button on building number to access detailed information: | ||||||
|---|---|---|---|---|---|---|
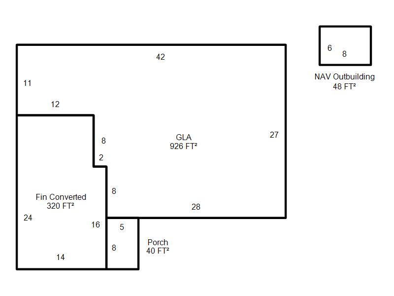
| Bldg # | Vacant/Improved Land | Bldg Description | Year Built | SqFt | # Stories | |
|
1 |
Improved |
Ranch 1 Story |
1963 |
926 |
1 Stories |
|