|
|
|
| Larry Stein Oklahoma County Assessor (405) 713-1200 - Public Access System |
|
|
|
|
|
|
| Real Property Display - Screen Produced 4/7/2026 10:36:31 AM | ||||
|---|---|---|---|---|
| Account: R190032106 | Type: Residential | Location: |
15601 SHADYBROOK DR |
|
| Building Name/Occupant: |
|
OKLAHOMA CITY |
||
| Owner Name 1: | HOMAN JOHN M & VALARI S |
Parcel PIN#: |
3210-19-003-2106 |
|
| Owner Name 2: | 1/4 section #: |
3210 |
||
| Owner Name 3: | Parent Acct: |
3209-16-869-0025 |
||
| Billing Address: | 15601 SHADYBROOK DR | Tax District: |
|
|
| City, State, Zip | JONES, OK 73049-8896 | School System: |
Luther #3 |
|
|
Country: (If noted) |
Land Size: |
10.9700 Acres |
||
|
Land Value: 66,336 |
|
|||
|
Sect 3-T13N-R1W Qtr SE |
UNPLTD PT SEC 3 13N 1W
Block
000
Lot
000
|
|||
| Full Legal Description: UNPLTD PT SEC 3 13N 1W 000 000 PT SE4 SEC 3 13N 1W BEG 1320FT W & APPROX 348FT S OF NE/C SE4 TH E505.33FT SELY54.98FT SWLY899.38FT SWLY450FT N1059.19FT TO BEG |
| Photo & Sketch (if available) | Comp Sales (ordered by relevancy) |
|
||||||||||||||||||
|
||||||||||||||||||||
| Value History (*The County Treasurer 405-713-1300 posts & collects actual tax amounts. Contact information HERE) | |||||||||||||
|---|---|---|---|---|---|---|---|---|---|---|---|---|---|
| Year | Market Value | Taxable Mkt Value | Gross Assessed | Exemption | Net Assessed | Millage | Est. Tax | Tax Savings | |||||
|
2026 |
395,500 |
238,741 |
26,260 |
1,000 |
25,260 |
109.96 |
$2,778 |
$2,006 |
|||||
|
2025 |
398,000 |
231,788 |
25,496 |
1,000 |
24,496 |
109.96 |
$2,694 |
$2,120 |
|||||
|
2024 |
398,500 |
225,037 |
24,753 |
1,000 |
23,753 |
109.95 |
$2,612 |
$2,208 |
|||||
|
2023 |
372,000 |
218,483 |
24,032 |
1,000 |
23,032 |
105.74 |
$2,436 |
$1,891 |
|||||
|
2022 |
324,500 |
212,120 |
23,332 |
1,000 |
22,332 |
106.53 |
$2,379 |
$1,423 |
|||||
| Property Account Status/Adjustments/Exemptions | ||
|---|---|---|
| Account # | Exemption Description | Amount |
|
R190032106 |
Homestead |
1,000 |
|
R190032106 |
3% Cap Homestead |
0 |
| Property Deed Transaction History (Recorded in the County Clerk's Office) | |||||||
|---|---|---|---|---|---|---|---|
| Date | Type | Book | Page | Price | Grantor | Grantee | |
|
9/20/2012 |
|
Deeds |
$0 |
COOK VALARI S HOMAN JOHN M |
HOMAN JOHN M & VALARI S |
||
|
12/31/2001 |
|
Deeds |
$29,500 |
ARCADIA PROPERTIES INC |
COOK VALARI S HOMAN JOHN M |
||
| Last Mailed Notice of Value (N.O.V.) Information/History | ||||||||
|---|---|---|---|---|---|---|---|---|
| Year | Date | Market Value | Taxable Market Value | Gross Assessed | Exemption | Net Assessed | ||
|
2026 |
02/06/2026 |
395,500 |
238,741 |
26,260 |
1,000 |
25,260 |
||
|
2025 |
01/31/2025 |
398,000 |
231,788 |
25,496 |
1,000 |
24,496 |
||
|
2024 |
01/22/2024 |
398,500 |
225,037 |
24,753 |
1,000 |
23,753 |
||
|
2023 |
01/23/2023 |
372,000 |
218,483 |
24,032 |
1,000 |
23,032 |
||
|
2022 |
02/22/2022 |
324,500 |
212,120 |
23,331 |
1,000 |
22,331 |
||
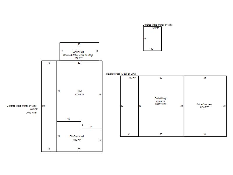
| Property Building Permit History | ||||||
|---|---|---|---|---|---|---|
| Issued | Permit # | Provided by | Bldg # | Description | Est Construction Cost | Status |
|
3/5/2004 |
10261558 |
OKLAHOMA CITY |
1 |
Garage |
33,000 |
Inactive |
|
1/1/2003 |
10261557 |
OKLAHOMA CITY |
1 |
Main Dwellin |
2,003 |
Inactive |
| Click button on building number to access detailed information: | ||||||
|---|---|---|---|---|---|---|
| Bldg # | Vacant/Improved Land | Bldg Description | Year Built | SqFt | # Stories | |
|
1 |
Improved |
Ranch 1 Story |
2002 |
1,270 |
1 Stories |
|