|
|
|
| Larry Stein Oklahoma County Assessor (405) 713-1200 - Public Access System |
|
|
|
|
|
|
| Real Property Display - Screen Produced 4/7/2026 10:36:30 AM | ||||
|---|---|---|---|---|
| Account: R190033050 | Type: Residential | Location: |
13113 NE 155TH ST |
|
| Building Name/Occupant: |
|
OKLAHOMA CITY |
||
| Owner Name 1: | ITUARTE LUIS |
Parcel PIN#: |
3211-19-003-3050 |
|
| Owner Name 2: | 1/4 section #: |
3211 |
||
| Owner Name 3: | Parent Acct: |
|
||
| Billing Address: | 13113 NE 155TH ST | Tax District: |
|
|
| City, State, Zip | JONES, OK 73049 | School System: |
Jones #9 |
|
|
Country: (If noted) |
Land Size: |
5.0100 Acres |
||
|
Land Value: 23,622 |
|
|||
|
Sect 3-T13N-R1W Qtr SW |
UNPLTD PT SEC 3 13N 1W
Block
000
Lot
000
|
|||
| Full Legal Description: UNPLTD PT SEC 3 13N 1W 000 000 PT SW4 SEC 3 13N 1W BEG 660FT S & 256.51FT NE & 200FT E & 595.99FT SELY OF NW/C SW4 TH N682.33FT E319.86FT S682.33FT W319.86FT TO BEG CONT 5.01 ACRS MORE OR LESS |
| No comparable sales report available. | ||||||||||||||||||||||
|
||||||||||||||||||||||
| Value History (*The County Treasurer 405-713-1300 posts & collects actual tax amounts. Contact information HERE) | |||||||||||||
|---|---|---|---|---|---|---|---|---|---|---|---|---|---|
| Year | Market Value | Taxable Mkt Value | Gross Assessed | Exemption | Net Assessed | Millage | Est. Tax | Tax Savings | |||||
|
2026 |
74,890 |
74,890 |
8,237 |
1,000 |
7,237 |
130.05 |
$941 |
$130 |
|||||
|
2025 |
74,500 |
74,500 |
8,195 |
1,000 |
7,195 |
130.05 |
$936 |
$130 |
|||||
|
2024 |
74,500 |
74,500 |
8,195 |
1,000 |
7,195 |
130.24 |
$937 |
$130 |
|||||
|
2023 |
74,500 |
74,500 |
8,195 |
1,000 |
7,195 |
127.43 |
$917 |
$127 |
|||||
|
2022 |
75,000 |
75,000 |
8,250 |
1,000 |
7,250 |
124.39 |
$902 |
$124 |
|||||
| Property Account Status/Adjustments/Exemptions | ||
|---|---|---|
| Account # | Exemption Description | Amount |
|
R190033050 |
3% Cap Homestead |
0 |
|
R190033050 |
Homestead |
1,000 |
| Property Deed Transaction History (Recorded in the County Clerk's Office) | ||||||||||
|---|---|---|---|---|---|---|---|---|---|---|
| Date | Type | Book | Page | Price | Grantor | Grantee | ||||
|
11/6/2019 |
|
Deeds |
$75,000 |
SECRETARY OF HOUSING |
ITUARTE LUIS |
|||||
|
8/21/2019 |
|
Other |
$0 |
LAKEVIEW LOAN SERVICING LLC |
SECRETARY OF HOUSING |
|||||
|
7/13/2018 |
|
Other |
$0 |
EASTEP DELTON J & LADONNA G |
LAKEVIEW LOAN SERVICING LLC |
|||||
|
8/4/2006 |
|
Deeds |
$35,000 |
RHODES CUSTOM HOMES INC |
EASTEP DELTON J & LADONNA G |
|||||
|
7/1/2006 |
|
Other |
$0 |
GREFF CHRISTOPHER & RIKI D |
RHODES CUSTOM HOMES INC |
|||||
| Last Mailed Notice of Value (N.O.V.) Information/History | ||||||||
|---|---|---|---|---|---|---|---|---|
| Year | Date | Market Value | Taxable Market Value | Gross Assessed | Exemption | Net Assessed | ||
|
2026 |
02/06/2026 |
74,890 |
74,890 |
8,237 |
1,000 |
7,237 |
||
|
2023 |
01/23/2023 |
74,500 |
74,500 |
8,195 |
1,000 |
7,195 |
||
|
2020 |
02/21/2020 |
75,000 |
75,000 |
8,250 |
1,000 |
7,250 |
||
|
2019 |
02/26/2019 |
62,066 |
56,831 |
6,252 |
0 |
6,252 |
||
|
2019 |
04/12/2019 |
62,066 |
62,066 |
6,828 |
0 |
6,828 |
||
| Property Building Permit History | |||||||||||
|---|---|---|---|---|---|---|---|---|---|---|---|
| Issued | Permit # | Provided by | Bldg # | Description | Est Construction Cost | Status | |||||
| No Building Permit records returned. | |||||||||||
| Click button on building number to access detailed information: | ||||||
|---|---|---|---|---|---|---|
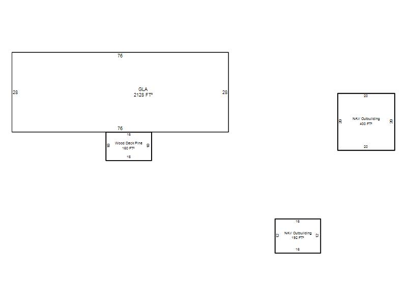
| Bldg # | Vacant/Improved Land | Bldg Description | Year Built | SqFt | # Stories | |
|
1 |
Improved |
Double Wide |
2007 |
2,128 |
1 Stories |
|