|
|
|
| Larry Stein Oklahoma County Assessor (405) 713-1200 - Public Access System |
|
|
|
|
|
|
| Real Property Display - Screen Produced 4/7/2026 9:36:39 AM | ||||
|---|---|---|---|---|
| Account: R205941000 | Type: Residential | Location: |
2649 CRESTWOOD DR |
|
| Building Name/Occupant: |
|
EDMOND |
||
| Owner Name 1: | CROMER ANDY BRIAN & TANYA JEAN TRS |
Parcel PIN#: |
3223-20-594-1000 |
|
| Owner Name 2: | ATC LIVING TRUST | 1/4 section #: |
3223 |
|
| Owner Name 3: | Parent Acct: |
3223-16-869-0071 |
||
| Billing Address: | 2649 CRESTWOOD DR | Tax District: |
|
|
| City, State, Zip | JONES, OK 73049-9108 | School System: |
Edmond #12 |
|
|
Country: (If noted) |
Land Size: |
1.0824 Acres |
||
|
Land Value: 127,305 |
|
|||
|
Sect 6-T13N-R1W Qtr SW |
CHITWOOD FARMS I
Block
001
Lot
001
|
|||
| Full Legal Description: CHITWOOD FARMS I 001 001 |
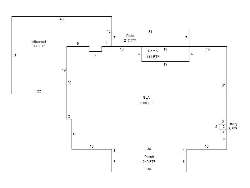
| Photo & Sketch (if available) | Comp Sales (ordered by relevancy) |
|
||||||||||||||||||
|
||||||||||||||||||||
| Value History (*The County Treasurer 405-713-1300 posts & collects actual tax amounts. Contact information HERE) | |||||||||||||
|---|---|---|---|---|---|---|---|---|---|---|---|---|---|
| Year | Market Value | Taxable Mkt Value | Gross Assessed | Exemption | Net Assessed | Millage | Est. Tax | Tax Savings | |||||
|
2026 |
601,000 |
486,313 |
53,494 |
1,000 |
52,494 |
105.16 |
$5,520 |
$1,432 |
|||||
|
2025 |
579,500 |
472,149 |
51,935 |
1,000 |
50,935 |
105.16 |
$5,356 |
$1,347 |
|||||
|
2024 |
570,000 |
458,398 |
50,423 |
1,000 |
49,423 |
105.03 |
$5,191 |
$1,394 |
|||||
|
2023 |
571,500 |
445,047 |
48,954 |
1,000 |
47,954 |
104.24 |
$4,999 |
$1,554 |
|||||
|
2022 |
475,500 |
432,085 |
47,529 |
1,000 |
46,529 |
104.64 |
$4,869 |
$604 |
|||||
| Property Account Status/Adjustments/Exemptions | ||
|---|---|---|
| Account # | Exemption Description | Amount |
|
R205941000 |
Homestead |
1,000 |
|
R205941000 |
3% Cap Homestead |
0 |
| Property Deed Transaction History (Recorded in the County Clerk's Office) | |||||||
|---|---|---|---|---|---|---|---|
| Date | Type | Book | Page | Price | Grantor | Grantee | |
|
5/30/2018 |
|
Deeds |
$0 |
CROMER ANDY B & TANYA J |
CROMER ANDY BRIAN & TANYA JEAN TRS |
||
|
12/22/2011 |
|
Deeds |
$67,500 |
CROFFORD MICHAEL A & GRETCHEN L |
CROMER ANDY B & TANYA J |
||
|
4/29/2008 |
|
Deeds |
$69,500 |
DARGEN PAUL C |
CROFFORD MICHAEL A & GRETCHEN L |
||
|
10/22/2007 |
|
Deeds |
$56,000 |
EBERSBACH MARK & DENISE |
DARGEN PAUL C |
||
|
5/31/2006 |
|
Deeds |
$45,000 |
CHITWOOD FARMS LLC |
EBERSBACH MARK & DENISE |
||
| Last Mailed Notice of Value (N.O.V.) Information/History | ||||||||
|---|---|---|---|---|---|---|---|---|
| Year | Date | Market Value | Taxable Market Value | Gross Assessed | Exemption | Net Assessed | ||
|
2026 |
02/06/2026 |
601,000 |
486,313 |
53,494 |
1,000 |
52,494 |
||
|
2025 |
01/31/2025 |
579,500 |
472,149 |
51,935 |
1,000 |
50,935 |
||
|
2024 |
01/22/2024 |
570,000 |
458,398 |
50,423 |
1,000 |
49,423 |
||
|
2023 |
01/23/2023 |
571,500 |
445,047 |
48,954 |
1,000 |
47,954 |
||
|
2022 |
02/22/2022 |
475,500 |
432,085 |
47,529 |
1,000 |
46,529 |
||
| Property Building Permit History | ||||||
|---|---|---|---|---|---|---|
| Issued | Permit # | Provided by | Bldg # | Description | Est Construction Cost | Status |
|
1/13/2012 |
10441256 |
EDMOND |
1 |
Main Dwellin |
270,000 |
Inactive |
| Click button on building number to access detailed information: | ||||||
|---|---|---|---|---|---|---|
| Bldg # | Vacant/Improved Land | Bldg Description | Year Built | SqFt | # Stories | |
|
1 |
Improved |
Ranch 1 Story |
2012 |
2,500 |
1 Stories |
|