|
|
|
| Larry Stein Oklahoma County Assessor (405) 713-1200 - Public Access System |
|
|
|
|
|
|
| Real Property Display - Screen Produced 4/7/2026 9:33:29 AM | ||||
|---|---|---|---|---|
| Account: R205941080 | Type: Residential | Location: |
2553 CRESTWOOD DR |
|
| Building Name/Occupant: |
|
EDMOND |
||
| Owner Name 1: | COLE LAWRENCE E & BIRGIT M TRS |
Parcel PIN#: |
3223-20-594-1080 |
|
| Owner Name 2: | COLE FAMILY TRUST | 1/4 section #: |
3223 |
|
| Owner Name 3: | Parent Acct: |
3223-16-869-0071 |
||
| Billing Address: | 2553 CRESTWOOD DR | Tax District: |
|
|
| City, State, Zip | JONES, OK 73049-9107 | School System: |
Edmond #12 |
|
|
Country: (If noted) |
Land Size: |
0.9323 Acres |
||
|
Land Value: 109,655 |
|
|||
|
Sect 6-T13N-R1W Qtr SW |
CHITWOOD FARMS I
Block
001
Lot
009
|
|||
| Full Legal Description: CHITWOOD FARMS I 001 009 |
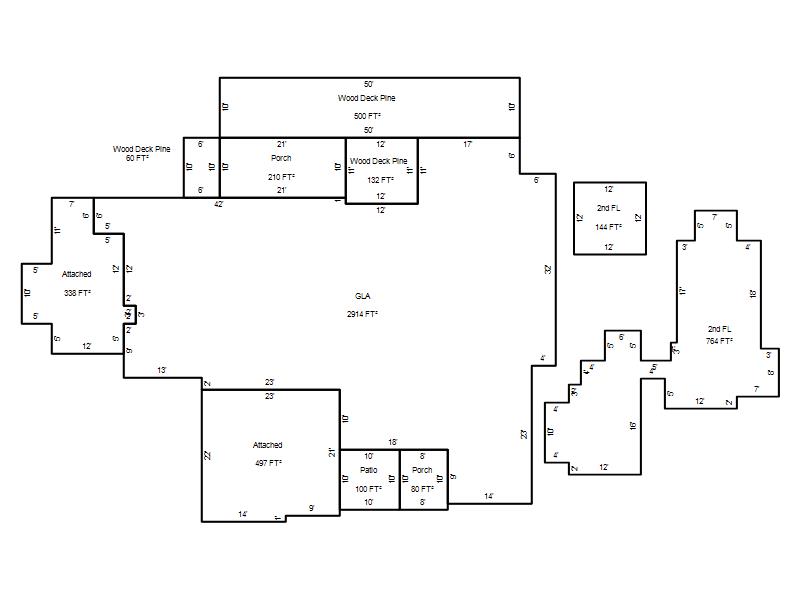
| Photo & Sketch (if available) | Comp Sales (ordered by relevancy) |
|
||||||||||||||||||
|
||||||||||||||||||||
| Value History (*The County Treasurer 405-713-1300 posts & collects actual tax amounts. Contact information HERE) | |||||||||||||
|---|---|---|---|---|---|---|---|---|---|---|---|---|---|
| Year | Market Value | Taxable Mkt Value | Gross Assessed | Exemption | Net Assessed | Millage | Est. Tax | Tax Savings | |||||
|
2026 |
798,500 |
669,677 |
73,663 |
73,663 |
0 |
105.16 |
$0 |
$9,237 |
|||||
|
2025 |
778,500 |
650,172 |
71,518 |
71,518 |
0 |
105.16 |
$0 |
$9,005 |
|||||
|
2024 |
770,000 |
631,235 |
69,435 |
1,000 |
68,435 |
105.03 |
$7,188 |
$1,708 |
|||||
|
2023 |
784,000 |
612,850 |
67,413 |
1,000 |
66,413 |
104.24 |
$6,923 |
$2,067 |
|||||
|
2022 |
595,000 |
595,000 |
65,450 |
1,000 |
64,450 |
104.64 |
$6,744 |
$105 |
|||||
| Property Account Status/Adjustments/Exemptions | ||
|---|---|---|
| Account # | Exemption Description | Amount |
|
R205941080 |
100% DAV Exemption |
100 |
|
R205941080 |
3% Cap Homestead |
0 |
|
R205941080 |
DAV Homestead |
0 |
| Property Deed Transaction History (Recorded in the County Clerk's Office) | |||||||
|---|---|---|---|---|---|---|---|
| Date | Type | Book | Page | Price | Grantor | Grantee | |
|
1/21/2025 |
|
Deeds |
$0 |
COLE LAWRENCE & BIRGIT MARIA |
COLE LAWRENCE E & BIRGIT M TRS |
||
|
9/17/2020 |
|
Deeds |
$608,000 |
LUSTER HENRY P JR & NANCY K |
COLE LAWRENCE & BIRGIT MARIA |
||
|
4/30/2007 |
|
Deeds |
$565,000 |
RED ROCK BUILDERS LLC |
LUSTER HENRY P JR & NANCY K |
||
|
3/10/2006 |
|
Deeds |
$70,000 |
CHITWOOD FARMS LLC |
RED ROCK BUILDERS LLC |
||
| Last Mailed Notice of Value (N.O.V.) Information/History | ||||||||
|---|---|---|---|---|---|---|---|---|
| Year | Date | Market Value | Taxable Market Value | Gross Assessed | Exemption | Net Assessed | ||
|
2026 |
02/06/2026 |
798,500 |
669,677 |
73,663 |
73,663 |
0 |
||
|
2025 |
01/31/2025 |
778,500 |
650,172 |
71,518 |
1,000 |
70,518 |
||
|
2025 |
03/28/2025 |
778,500 |
650,172 |
71,518 |
1,000 |
70,518 |
||
|
2024 |
01/22/2024 |
770,000 |
631,235 |
69,435 |
1,000 |
68,435 |
||
|
2023 |
01/23/2023 |
784,000 |
612,850 |
67,413 |
1,000 |
66,413 |
||
| Property Building Permit History | ||||||
|---|---|---|---|---|---|---|
| Issued | Permit # | Provided by | Bldg # | Description | Est Construction Cost | Status |
|
3/30/2006 |
10322834 |
EDMOND |
1 |
Main Dwellin |
325,000 |
Inactive |
| Click button on building number to access detailed information: | ||||||
|---|---|---|---|---|---|---|
| Bldg # | Vacant/Improved Land | Bldg Description | Year Built | SqFt | # Stories | |
|
1 |
Improved |
1½ Story Fin |
2006 |
3,822 |
1.5 Stories |
|