|
|
|
| Larry Stein Oklahoma County Assessor (405) 713-1200 - Public Access System |
|
|
|
|
|
|
| Real Property Display - Screen Produced 4/7/2026 9:43:26 AM | ||||
|---|---|---|---|---|
| Account: R205941130 | Type: Residential | Location: |
2409 CRESTWOOD DR |
|
| Building Name/Occupant: |
|
EDMOND |
||
| Owner Name 1: | CLARK CHRISTOPHER L & JEANA M |
Parcel PIN#: |
3223-20-594-1130 |
|
| Owner Name 2: | FAMILY TRUST | 1/4 section #: |
3223 |
|
| Owner Name 3: | Parent Acct: |
3223-16-869-0071 |
||
| Billing Address: | 2409 CRESTWOOD DR | Tax District: |
|
|
| City, State, Zip | JONES, OK 73049-9106 | School System: |
Edmond #12 |
|
|
Country: (If noted) |
Land Size: |
1.3674 Acres |
||
|
Land Value: 124,000 |
|
|||
|
Sect 6-T13N-R1W Qtr SW |
CHITWOOD FARMS I
Block
001
Lot
014
|
|||
| Full Legal Description: CHITWOOD FARMS I 001 014 |
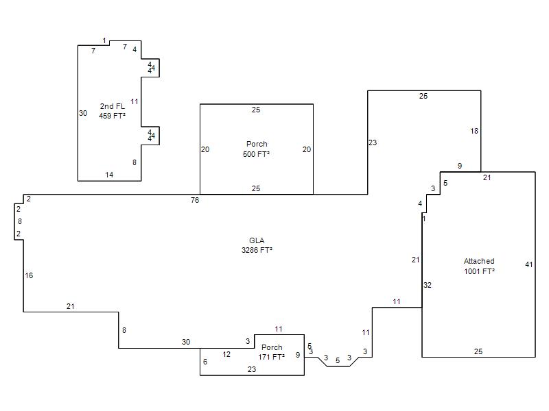
| Photo & Sketch (if available) | Comp Sales (ordered by relevancy) |
|
||||||||||||||||||
|
||||||||||||||||||||
| Value History (*The County Treasurer 405-713-1300 posts & collects actual tax amounts. Contact information HERE) | |||||||||||||
|---|---|---|---|---|---|---|---|---|---|---|---|---|---|
| Year | Market Value | Taxable Mkt Value | Gross Assessed | Exemption | Net Assessed | Millage | Est. Tax | Tax Savings | |||||
|
2026 |
793,000 |
624,847 |
68,732 |
1,000 |
67,732 |
105.16 |
$7,123 |
$2,050 |
|||||
|
2025 |
758,000 |
606,648 |
66,730 |
1,000 |
65,730 |
105.16 |
$6,912 |
$1,856 |
|||||
|
2024 |
744,000 |
588,979 |
64,787 |
1,000 |
63,787 |
105.03 |
$6,700 |
$1,896 |
|||||
|
2023 |
742,500 |
571,825 |
62,900 |
1,000 |
61,900 |
104.24 |
$6,453 |
$2,061 |
|||||
|
2022 |
611,500 |
555,170 |
61,068 |
1,000 |
60,068 |
104.64 |
$6,286 |
$753 |
|||||
| Property Account Status/Adjustments/Exemptions | ||
|---|---|---|
| Account # | Exemption Description | Amount |
|
R205941130 |
3% Cap Homestead |
0 |
|
R205941130 |
Homestead |
1,000 |
| Property Deed Transaction History (Recorded in the County Clerk's Office) | |||||||
|---|---|---|---|---|---|---|---|
| Date | Type | Book | Page | Price | Grantor | Grantee | |
|
4/29/2010 |
|
Deeds |
$0 |
CLARK CHRISTOPHER & JEANA M |
CLARK CHRISTOPHER L & JEANA M |
||
|
7/31/2009 |
|
Deeds |
$92,000 |
CHITWOOD FARMS LLC C/O TURNER AND COMPANY |
CLARK CHRISTOPHER & JEANA M |
||
| Last Mailed Notice of Value (N.O.V.) Information/History | ||||||||
|---|---|---|---|---|---|---|---|---|
| Year | Date | Market Value | Taxable Market Value | Gross Assessed | Exemption | Net Assessed | ||
|
2026 |
02/06/2026 |
793,000 |
624,847 |
68,732 |
1,000 |
67,732 |
||
|
2025 |
01/31/2025 |
758,000 |
606,648 |
66,730 |
1,000 |
65,730 |
||
|
2024 |
01/22/2024 |
744,000 |
588,979 |
64,787 |
1,000 |
63,787 |
||
|
2023 |
01/23/2023 |
742,500 |
571,825 |
62,900 |
1,000 |
61,900 |
||
|
2022 |
02/22/2022 |
611,500 |
555,170 |
61,068 |
1,000 |
60,068 |
||
| Property Building Permit History | ||||||
|---|---|---|---|---|---|---|
| Issued | Permit # | Provided by | Bldg # | Description | Est Construction Cost | Status |
|
8/30/2009 |
10385579 |
EDMOND |
1 |
Main Dwellin |
350,000 |
Inactive |
| Click button on building number to access detailed information: | ||||||
|---|---|---|---|---|---|---|
| Bldg # | Vacant/Improved Land | Bldg Description | Year Built | SqFt | # Stories | |
|
1 |
Improved |
1½ Story Fin |
2009 |
3,745 |
1.5 Stories |
|