|
|
|
| Larry Stein Oklahoma County Assessor (405) 713-1200 - Public Access System |
|
|
|
|
|
|
| Real Property Display - Screen Produced 4/7/2026 9:32:34 AM | ||||
|---|---|---|---|---|
| Account: R205941280 | Type: Residential | Location: |
2520 CRESTWOOD DR |
|
| Building Name/Occupant: |
|
EDMOND |
||
| Owner Name 1: | GONZALEZ ROBERTO G TRS |
Parcel PIN#: |
3223-20-594-1280 |
|
| Owner Name 2: | GONZALEZ JEANNE E TRS | 1/4 section #: |
3223 |
|
| Owner Name 3: | GONZALEZ ROBERTO G & JEANNE E REV TRUST | Parent Acct: |
3223-16-869-0071 |
|
| Billing Address: | 2520 CRESTWOOD DR | Tax District: |
|
|
| City, State, Zip | JONES, OK 73049 | School System: |
Edmond #12 |
|
|
Country: (If noted) |
Land Size: |
1.2090 Acres |
||
|
Land Value: 142,196 |
|
|||
|
Sect 6-T13N-R1W Qtr SW |
CHITWOOD FARMS I
Block
002
Lot
008
|
|||
| Full Legal Description: CHITWOOD FARMS I 002 008 |
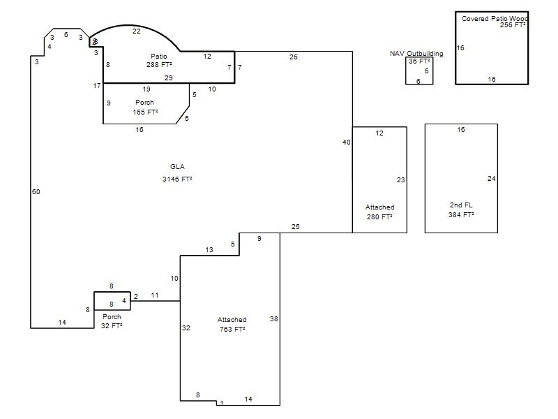
| Photo & Sketch (if available) | Comp Sales (ordered by relevancy) |
|
||||||||||||||||||
|
||||||||||||||||||||
| Value History (*The County Treasurer 405-713-1300 posts & collects actual tax amounts. Contact information HERE) | |||||||||||||
|---|---|---|---|---|---|---|---|---|---|---|---|---|---|
| Year | Market Value | Taxable Mkt Value | Gross Assessed | Exemption | Net Assessed | Millage | Est. Tax | Tax Savings | |||||
|
2026 |
730,500 |
567,463 |
62,420 |
1,000 |
61,420 |
105.16 |
$6,459 |
$1,991 |
|||||
|
2025 |
683,000 |
550,935 |
60,602 |
1,000 |
59,602 |
105.16 |
$6,268 |
$1,633 |
|||||
|
2024 |
673,000 |
534,889 |
58,837 |
1,000 |
57,837 |
105.03 |
$6,075 |
$1,701 |
|||||
|
2023 |
678,500 |
519,310 |
57,123 |
1,000 |
56,123 |
104.24 |
$5,850 |
$1,930 |
|||||
|
2022 |
561,000 |
504,185 |
55,460 |
1,000 |
54,460 |
104.64 |
$5,699 |
$759 |
|||||
| Property Account Status/Adjustments/Exemptions | ||
|---|---|---|
| Account # | Exemption Description | Amount |
|
R205941280 |
3% Cap Homestead |
0 |
|
R205941280 |
Homestead |
1,000 |
| Property Deed Transaction History (Recorded in the County Clerk's Office) | |||||||
|---|---|---|---|---|---|---|---|
| Date | Type | Book | Page | Price | Grantor | Grantee | |
|
9/28/2005 |
|
Deeds |
$45,000 |
CHITWOOD FARMS LLC |
GONZALEZ ROBERTO G TRS |
||
| Last Mailed Notice of Value (N.O.V.) Information/History | ||||||||
|---|---|---|---|---|---|---|---|---|
| Year | Date | Market Value | Taxable Market Value | Gross Assessed | Exemption | Net Assessed | ||
|
2026 |
02/06/2026 |
730,500 |
567,463 |
62,420 |
1,000 |
61,420 |
||
|
2025 |
01/31/2025 |
683,000 |
550,935 |
60,602 |
1,000 |
59,602 |
||
|
2024 |
01/22/2024 |
673,000 |
534,889 |
58,837 |
1,000 |
57,837 |
||
|
2023 |
01/23/2023 |
678,500 |
519,310 |
57,123 |
1,000 |
56,123 |
||
|
2022 |
02/22/2022 |
561,000 |
504,185 |
55,460 |
1,000 |
54,460 |
||
| Property Building Permit History | ||||||
|---|---|---|---|---|---|---|
| Issued | Permit # | Provided by | Bldg # | Description | Est Construction Cost | Status |
|
9/30/2005 |
10313286 |
EDMOND |
1 |
Main Dwellin |
250,000 |
Inactive |
| Click button on building number to access detailed information: | ||||||
|---|---|---|---|---|---|---|
| Bldg # | Vacant/Improved Land | Bldg Description | Year Built | SqFt | # Stories | |
|
1 |
Improved |
1½ Story Fin |
2006 |
3,530 |
1.5 Stories |
|