|
|
|
| Larry Stein Oklahoma County Assessor (405) 713-1200 - Public Access System |
|
|
|
|
|
|
| Real Property Display - Screen Produced 4/7/2026 9:32:53 AM | ||||
|---|---|---|---|---|
| Account: R205941390 | Type: Residential | Location: |
2216 CRESTWOOD DR |
|
| Building Name/Occupant: |
|
EDMOND |
||
| Owner Name 1: | ROBNETT RANDALL C |
Parcel PIN#: |
3224-20-594-1390 |
|
| Owner Name 2: | 1/4 section #: |
3224 |
||
| Owner Name 3: | Parent Acct: |
3223-16-869-0071 |
||
| Billing Address: | 2216 CRESTWOOD DR | Tax District: |
|
|
| City, State, Zip | JONES, OK 73049 | School System: |
Edmond #12 |
|
|
Country: (If noted) |
Land Size: |
0.9292 Acres |
||
|
Land Value: 109,285 |
|
|||
|
Sect 6-T13N-R1W Qtr NW |
CHITWOOD FARMS I
Block
002
Lot
019
|
|||
| Full Legal Description: CHITWOOD FARMS I 002 019 |
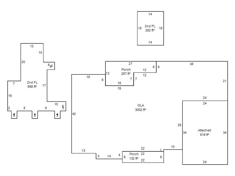
| Photo & Sketch (if available) | Comp Sales (ordered by relevancy) |
|
||||||||||||||||||
|
||||||||||||||||||||
| Value History (*The County Treasurer 405-713-1300 posts & collects actual tax amounts. Contact information HERE) | |||||||||||||
|---|---|---|---|---|---|---|---|---|---|---|---|---|---|
| Year | Market Value | Taxable Mkt Value | Gross Assessed | Exemption | Net Assessed | Millage | Est. Tax | Tax Savings | |||||
|
2026 |
816,500 |
712,801 |
78,407 |
0 |
78,407 |
105.16 |
$8,245 |
$1,200 |
|||||
|
2025 |
780,500 |
678,859 |
74,673 |
0 |
74,673 |
105.16 |
$7,853 |
$1,176 |
|||||
|
2024 |
766,000 |
646,533 |
71,118 |
0 |
71,118 |
105.03 |
$7,470 |
$1,380 |
|||||
|
2023 |
767,500 |
615,746 |
67,731 |
0 |
67,731 |
104.24 |
$7,060 |
$1,740 |
|||||
|
2022 |
636,000 |
586,425 |
64,506 |
0 |
64,506 |
104.64 |
$6,750 |
$571 |
|||||
| Property Account Status/Adjustments/Exemptions | ||
|---|---|---|
| Account # | Exemption Description | Amount |
|
R205941390 |
5% Capped Account |
0 |
| Property Deed Transaction History (Recorded in the County Clerk's Office) | ||||||||||
|---|---|---|---|---|---|---|---|---|---|---|
| Date | Type | Book | Page | Price | Grantor | Grantee | ||||
|
7/17/2025 |
|
Hmstd Off & |
$0 |
ROBNETT RANDALL C & LORA A |
ROBNETT RANDALL C |
|||||
|
2/14/2019 |
|
Deeds |
$0 |
ROBNETT RANDALL C |
ROBNETT RANDALL C & LORA A |
|||||
|
11/2/2018 |
|
Deeds |
$0 |
ROBNETT RANDALL C |
ROBNETT RANDALL C |
|||||
|
4/18/2018 |
|
Deeds |
$0 |
ROBNETT RANDALL C & RENEE |
ROBNETT RANDALL C |
|||||
|
8/18/2017 |
|
Deeds |
$535,000 |
BLACK TRAVIS K |
ROBNETT RANDALL C & RENEE |
|||||
| Last Mailed Notice of Value (N.O.V.) Information/History | ||||||||
|---|---|---|---|---|---|---|---|---|
| Year | Date | Market Value | Taxable Market Value | Gross Assessed | Exemption | Net Assessed | ||
|
2026 |
02/06/2026 |
816,500 |
712,801 |
78,407 |
0 |
78,407 |
||
|
2025 |
01/31/2025 |
780,500 |
678,859 |
74,673 |
0 |
74,673 |
||
|
2024 |
01/22/2024 |
766,000 |
646,533 |
71,118 |
0 |
71,118 |
||
|
2023 |
01/23/2023 |
767,500 |
615,746 |
67,731 |
0 |
67,731 |
||
|
2022 |
02/22/2022 |
636,000 |
586,425 |
64,506 |
0 |
64,506 |
||
| Property Building Permit History | ||||||
|---|---|---|---|---|---|---|
| Issued | Permit # | Provided by | Bldg # | Description | Est Construction Cost | Status |
|
8/3/2020 |
S20-00080 |
|
1 |
Swimming Pool |
72,000 |
Inactive |
|
9/30/2005 |
10313327 |
EDMOND |
1 |
Main Dwellin |
288,000 |
Inactive |
| Click button on building number to access detailed information: | ||||||
|---|---|---|---|---|---|---|
| Bldg # | Vacant/Improved Land | Bldg Description | Year Built | SqFt | # Stories | |
|
1 |
Improved |
1½ Story Fin |
2006 |
3,952 |
1.5 Stories |
|