|
|
|
| Larry Stein Oklahoma County Assessor (405) 713-1200 - Public Access System |
|
|
|
|
|
|
| Real Property Display - Screen Produced 4/3/2026 2:15:32 PM | ||||
|---|---|---|---|---|
| Account: R183047000 | Type: Residential | Location: |
1901 E WOODLAND RD |
|
| Building Name/Occupant: |
|
EDMOND |
||
| Owner Name 1: | GORDON CARYN MARIE |
Parcel PIN#: |
3424-18-304-7000 |
|
| Owner Name 2: | 1/4 section #: |
3424 |
||
| Owner Name 3: | Parent Acct: |
|
||
| Billing Address: | 1901 WOODLAND RD | Tax District: |
|
|
| City, State, Zip | EDMOND, OK 73013-6650 | School System: |
Edmond #12 |
|
|
Country: (If noted) |
Land Size: |
0.2169 Acres |
||
|
Land Value: 54,810 |
|
|||
|
Sect 6-T13N-R2W Qtr NW |
FOREST OAKS 1ST AMD
Block
007
Lot
009
|
|||
| Full Legal Description: FOREST OAKS 1ST AMD 007 009 |
| Photo & Sketch (if available) | Comp Sales (ordered by relevancy) |
|
||||||||||||||||||
|
||||||||||||||||||||
| Value History (*The County Treasurer 405-713-1300 posts & collects actual tax amounts. Contact information HERE) | |||||||||||||
|---|---|---|---|---|---|---|---|---|---|---|---|---|---|
| Year | Market Value | Taxable Mkt Value | Gross Assessed | Exemption | Net Assessed | Millage | Est. Tax | Tax Savings | |||||
|
2026 |
263,500 |
213,446 |
23,478 |
1,000 |
22,478 |
105.16 |
$2,364 |
$684 |
|||||
|
2025 |
265,500 |
207,230 |
22,794 |
1,000 |
21,794 |
105.16 |
$2,292 |
$779 |
|||||
|
2024 |
259,000 |
201,195 |
22,130 |
1,000 |
21,130 |
105.03 |
$2,219 |
$773 |
|||||
|
2023 |
251,500 |
195,335 |
21,486 |
1,000 |
20,486 |
104.24 |
$2,136 |
$748 |
|||||
|
2022 |
217,000 |
189,646 |
20,860 |
1,000 |
19,860 |
104.64 |
$2,078 |
$419 |
|||||
| Property Account Status/Adjustments/Exemptions | ||
|---|---|---|
| Account # | Exemption Description | Amount |
|
R183047000 |
3% Cap Homestead |
0 |
|
R183047000 |
Homestead |
1,000 |
| Property Deed Transaction History (Recorded in the County Clerk's Office) | ||||||||||
|---|---|---|---|---|---|---|---|---|---|---|
| Date | Type | Book | Page | Price | Grantor | Grantee | ||||
|
3/21/2011 |
|
Deeds |
$0 |
GORDON JAMES D & CARYN MARIE |
GORDON CARYN MARIE |
|||||
|
4/18/1994 |
|
Historical |
$103,000 |
KNUDSON DENNIS & SHEILA |
GORDON JAMES D & CARYN MARIE |
|||||
|
8/31/1990 |
|
Historical |
$88,000 |
WINKLE DAVID E & ANN CONDIT |
KNUDSON DENNIS & SHEILA |
|||||
|
10/12/1988 |
|
Historical |
$92,500 |
HAILEY WILLIAM L & GLENNA J |
WINKLE DAVID E & ANN CONDIT |
|||||
|
8/5/1987 |
|
Historical |
$95,500 |
JEWELL KIRK A |
HAILEY WILLIAM L & GLENNA J |
|||||
| Last Mailed Notice of Value (N.O.V.) Information/History | ||||||||
|---|---|---|---|---|---|---|---|---|
| Year | Date | Market Value | Taxable Market Value | Gross Assessed | Exemption | Net Assessed | ||
|
2026 |
02/06/2026 |
263,500 |
213,446 |
23,478 |
1,000 |
22,478 |
||
|
2025 |
01/31/2025 |
265,500 |
207,230 |
22,794 |
1,000 |
21,794 |
||
|
2024 |
01/22/2024 |
259,000 |
201,195 |
22,130 |
1,000 |
21,130 |
||
|
2023 |
01/23/2023 |
251,500 |
195,335 |
21,486 |
1,000 |
20,486 |
||
|
2022 |
02/22/2022 |
217,000 |
189,646 |
20,859 |
1,000 |
19,859 |
||
| Property Building Permit History | |||||||||||
|---|---|---|---|---|---|---|---|---|---|---|---|
| Issued | Permit # | Provided by | Bldg # | Description | Est Construction Cost | Status | |||||
| No Building Permit records returned. | |||||||||||
| Click button on building number to access detailed information: | ||||||
|---|---|---|---|---|---|---|
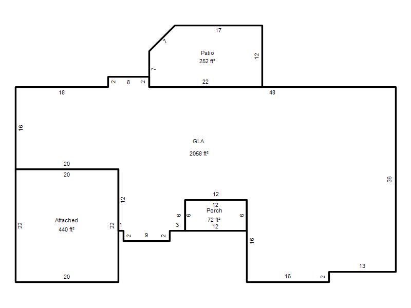
| Bldg # | Vacant/Improved Land | Bldg Description | Year Built | SqFt | # Stories | |
|
1 |
Improved |
Ranch 1 Story |
1978 |
2,058 |
1 Stories |
|