|
|
|
| Larry Stein Oklahoma County Assessor (405) 713-1200 - Public Access System |
|
|
|
|
|
|
| Real Property Display - Screen Produced 4/3/2026 2:42:34 PM | ||||
|---|---|---|---|---|
| Account: R183225010 | Type: Residential | Location: |
2004 RIDGECREST RD |
|
| Building Name/Occupant: |
|
EDMOND |
||
| Owner Name 1: | BARNES KAREN L TRUST |
Parcel PIN#: |
3424-18-322-5010 |
|
| Owner Name 2: | 1/4 section #: |
3424 |
||
| Owner Name 3: | Parent Acct: |
|
||
| Billing Address: | 2004 RIDGECREST RD | Tax District: |
|
|
| City, State, Zip | EDMOND, OK 73013-6661 | School System: |
Edmond #12 |
|
|
Country: (If noted) |
Land Size: |
0.2277 Acres |
||
|
Land Value: 44,631 |
|
|||
|
Sect 6-T13N-R2W Qtr NW |
FOREST OAKS 2ND
Block
012
Lot
002
|
|||
| Full Legal Description: FOREST OAKS 2ND 012 002 |
| Photo & Sketch (if available) | Comp Sales (ordered by relevancy) |
|
||||||||||||||||||
|
||||||||||||||||||||
| Value History (*The County Treasurer 405-713-1300 posts & collects actual tax amounts. Contact information HERE) | |||||||||||||
|---|---|---|---|---|---|---|---|---|---|---|---|---|---|
| Year | Market Value | Taxable Mkt Value | Gross Assessed | Exemption | Net Assessed | Millage | Est. Tax | Tax Savings | |||||
|
2026 |
287,500 |
263,551 |
28,990 |
0 |
28,990 |
105.16 |
$3,049 |
$277 |
|||||
|
2025 |
289,500 |
251,001 |
27,609 |
0 |
27,609 |
105.16 |
$2,903 |
$445 |
|||||
|
2024 |
282,500 |
239,049 |
26,295 |
0 |
26,295 |
105.03 |
$2,762 |
$502 |
|||||
|
2023 |
273,000 |
227,666 |
25,042 |
0 |
25,042 |
104.24 |
$2,611 |
$520 |
|||||
|
2022 |
236,500 |
216,825 |
23,850 |
0 |
23,850 |
104.64 |
$2,496 |
$226 |
|||||
| Property Account Status/Adjustments/Exemptions | ||
|---|---|---|
| Account # | Exemption Description | Amount |
|
R183225010 |
5% Capped Account |
0 |
| Property Deed Transaction History (Recorded in the County Clerk's Office) | ||||||||||
|---|---|---|---|---|---|---|---|---|---|---|
| Date | Type | Book | Page | Price | Grantor | Grantee | ||||
|
3/18/1993 |
|
Historical |
$0 |
BARNES KAREN L |
BARNES KAREN L TRUST |
|||||
|
12/31/1991 |
|
Historical |
$105,000 |
GARRETT JOE H & DANA L |
BARNES KAREN L |
|||||
|
1/2/1990 |
|
Historical |
$107,000 |
TINNEY THOMAS JORDAN & MARY E |
GARRETT JOE H & DANA L |
|||||
|
9/2/1987 |
|
Historical |
$110,000 |
STEVE ARNETT HOMES INC |
TINNEY THOMAS JORDAN & MARY E |
|||||
|
12/1/1986 |
|
Historical |
$0 |
ARNETT & TURNER BUILDING CO |
STEVE ARNETT HOMES INC |
|||||
| Last Mailed Notice of Value (N.O.V.) Information/History | ||||||||
|---|---|---|---|---|---|---|---|---|
| Year | Date | Market Value | Taxable Market Value | Gross Assessed | Exemption | Net Assessed | ||
|
2026 |
02/06/2026 |
287,500 |
263,551 |
28,990 |
0 |
28,990 |
||
|
2025 |
01/31/2025 |
289,500 |
251,001 |
27,609 |
0 |
27,609 |
||
|
2024 |
01/22/2024 |
282,500 |
239,049 |
26,295 |
0 |
26,295 |
||
|
2023 |
01/23/2023 |
273,000 |
227,666 |
25,042 |
0 |
25,042 |
||
|
2022 |
02/22/2022 |
236,500 |
216,825 |
23,850 |
0 |
23,850 |
||
| Property Building Permit History | |||||||||||
|---|---|---|---|---|---|---|---|---|---|---|---|
| Issued | Permit # | Provided by | Bldg # | Description | Est Construction Cost | Status | |||||
| No Building Permit records returned. | |||||||||||
| Click button on building number to access detailed information: | ||||||
|---|---|---|---|---|---|---|
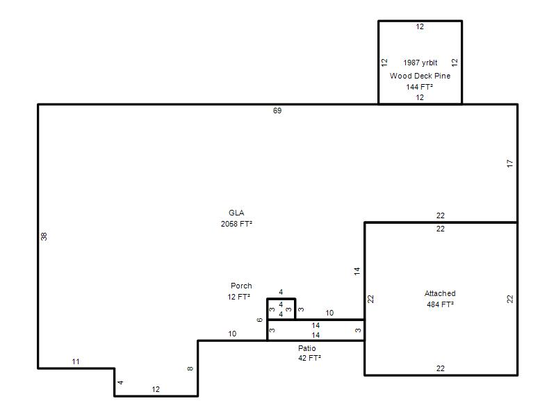
| Bldg # | Vacant/Improved Land | Bldg Description | Year Built | SqFt | # Stories | |
|
1 |
Improved |
Ranch 1 Story |
1987 |
2,058 |
1 Stories |
|