|
|
|
| Larry Stein Oklahoma County Assessor (405) 713-1200 - Public Access System |
|
|
|
|
|
|
| Real Property Display - Screen Produced 4/7/2026 10:34:55 AM | ||||
|---|---|---|---|---|
| Account: R182135000 | Type: Residential | Location: |
3401 RIDGEWOOD DR |
|
| Building Name/Occupant: |
|
EDMOND |
||
| Owner Name 1: | MCBRIDE JIM L & DARLENE |
Parcel PIN#: |
3432-18-213-5000 |
|
| Owner Name 2: | 1/4 section #: |
3432 |
||
| Owner Name 3: | Parent Acct: |
|
||
| Billing Address: | 3401 RIDGEWOOD DR | Tax District: |
|
|
| City, State, Zip | EDMOND, OK 73013-8072 | School System: |
Edmond #12 |
|
|
Country: (If noted) |
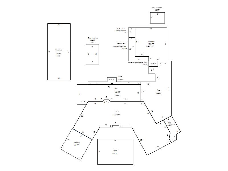
Land Size: |
0.8900 Acres |
||
|
Land Value: 107,156 |
|
|||
|
Sect 8-T13N-R2W Qtr NW |
WOODRUFFS TALL OAKS # 4
Block
003
Lot
002
|
|||
| Full Legal Description: WOODRUFFS TALL OAKS # 4 003 002 |
| Photo & Sketch (if available) | Comp Sales (ordered by relevancy) |
|
||||||||||||||||||
|
||||||||||||||||||||
| Value History (*The County Treasurer 405-713-1300 posts & collects actual tax amounts. Contact information HERE) | |||||||||||||
|---|---|---|---|---|---|---|---|---|---|---|---|---|---|
| Year | Market Value | Taxable Mkt Value | Gross Assessed | Exemption | Net Assessed | Millage | Est. Tax | Tax Savings | |||||
|
2026 |
1,087,000 |
633,540 |
69,689 |
1,000 |
68,689 |
105.16 |
$7,223 |
$5,351 |
|||||
|
2025 |
1,093,500 |
633,540 |
69,689 |
1,000 |
68,689 |
105.16 |
$7,223 |
$5,426 |
|||||
|
2024 |
1,042,500 |
633,540 |
69,689 |
1,000 |
68,689 |
105.03 |
$7,214 |
$4,830 |
|||||
|
2023 |
727,000 |
533,540 |
58,689 |
1,000 |
57,689 |
104.24 |
$6,014 |
$2,323 |
|||||
|
2022 |
629,500 |
533,540 |
58,689 |
1,000 |
57,689 |
104.64 |
$6,037 |
$1,209 |
|||||
| Property Account Status/Adjustments/Exemptions | ||
|---|---|---|
| Account # | Exemption Description | Amount |
|
R182135000 |
Freeze Senior Valuation |
0 |
|
R182135000 |
3% Cap Homestead |
0 |
|
R182135000 |
Homestead |
1,000 |
| Property Deed Transaction History (Recorded in the County Clerk's Office) | ||||||||||
|---|---|---|---|---|---|---|---|---|---|---|
| Date | Type | Book | Page | Price | Grantor | Grantee | ||||
|
8/3/2015 |
|
Deeds |
$565,000 |
MCCALISTER ANGELA & BRIAN |
MCBRIDE JIM L & DARLENE |
|||||
|
12/4/2013 |
|
Other |
$0 |
STAMMER ARLENE TRS STAMMER ARLENE REV TRUST |
MCCALISTER ANGELA & BRIAN |
|||||
|
8/30/1999 |
|
Deeds |
$0 |
STAMMER ARLENE & JAMES CO TRS |
STAMMER ARLENE TRS |
|||||
|
3/10/1994 |
|
Historical |
$0 |
LYONS ARLENE |
STAMMER ARLENE & JAMES CO TRS |
|||||
|
1/9/1989 |
|
Historical |
$0 |
HOLTZ ARTHUR L & LAURA M |
LYONS ARLENE |
|||||
| Last Mailed Notice of Value (N.O.V.) Information/History | ||||||||
|---|---|---|---|---|---|---|---|---|
| Year | Date | Market Value | Taxable Market Value | Gross Assessed | Exemption | Net Assessed | ||
|
2025 |
03/28/2025 |
1,093,500 |
633,540 |
69,689 |
1,000 |
68,689 |
||
|
2024 |
03/01/2024 |
1,042,500 |
633,540 |
69,689 |
1,000 |
68,689 |
||
|
2023 |
01/23/2023 |
727,000 |
533,540 |
58,689 |
1,000 |
57,689 |
||
|
2022 |
02/22/2022 |
629,500 |
533,540 |
58,689 |
1,000 |
57,689 |
||
|
2021 |
02/24/2021 |
553,500 |
533,540 |
58,689 |
1,000 |
57,689 |
||
| Property Building Permit History | ||||||
|---|---|---|---|---|---|---|
| Issued | Permit # | Provided by | Bldg # | Description | Est Construction Cost | Status |
|
1/18/2023 |
B22-01306 |
|
1 |
Garage |
52,000 |
Inactive |
|
2/24/2017 |
10493121 |
EDMOND |
1 |
Add On |
12,500 |
Inactive |
|
7/30/2006 |
10326554 |
EDMOND |
1 |
Remodeled |
125,000 |
Inactive |
|
3/15/1993 |
10257405 |
EDMOND |
1 |
Add On |
41,000 |
Inactive |
| Click button on building number to access detailed information: | ||||||
|---|---|---|---|---|---|---|
| Bldg # | Vacant/Improved Land | Bldg Description | Year Built | SqFt | # Stories | |
|
1 |
Improved |
1½ Story Fin |
1977 |
5,979 |
1.5 Stories |
|